Arthur Loyd Bordeaux fait partie du 1er réseau national de conseil en immobilier d'entreprise (plus de 75 implantations et 440 collaborateurs sur toute la France et DOM TOM).En tant que spécialiste ...
En savoir plus

557 m²
HT HC
Location activité/entrepôt - 557 m²
Mérignac (33700)
Dernière mise à jour : Hier
Location entrepôt clé en main à Mérignac
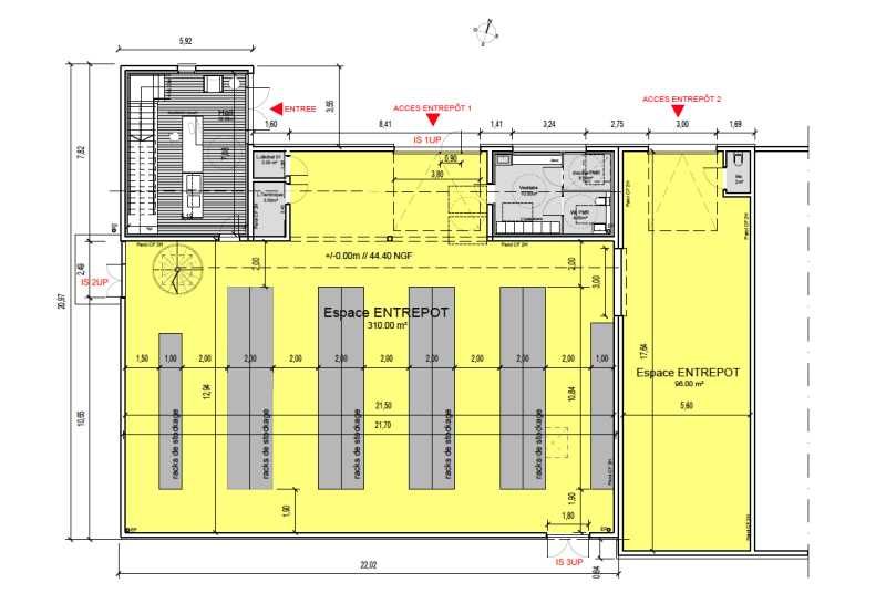
Arthur Loyd Bordeaux vous présente une opportunité exceptionnelle de location d'un entrepôt clé en main à Mérignac (Dassault), niché dans un site sécurisé et clos. Avec une surface généreuse de 576m2, dont 430m2 dédiés au stockage pur et 127m2 aménageables en bureaux, cet entrepôt offre une solution polyvalente pour les entreprises en quête d'un espace fonctionnel et moderne.
Sa localisation stratégique, à seulement 3 minutes de l'aéroport de Bordeaux-Mérignac et au coeur du pôle aéronautique, en fait un choix idéal pour les entreprises opérant dans ce secteur. De plus, l'accès facilité pour les poids lourds et la disponibilité d'un grand nombre de places de stationnement sur site garantissent une accessibilité optimale pour vos opérations logistiques.
Les avantages ne s'arrêtent pas là : cet entrepôt offre la possibilité de créer un quai selon vos besoins spécifiques. De plus, en fonction de votre activité, l'autoconsommation d'énergie grâce aux panneaux photovoltaïques est envisageable, ce qui constitue une solution à la fois écologique et économique.
À l'étage, les bureaux sont totalement modulables, offrant ainsi une liberté d'aménagement selon vos besoins. De plus, les équipements disponibles sur place, tels que la salle de repos, la cuisine, les vestiaires et une agréable terrasse extérieure de 19m2, contribuent à créer un environnement de travail confortable et propice à la productivité.
En résumé, cet entrepôt à louer à Mérignac offre une combinaison parfaite de fonctionnalité, d'accessibilité et de modernité pour répondre aux exigences les plus élevées des entreprises d'aujourd'hui.
Régime Fiscal : T.V.A.
Dépôt de garantie : 3 mois de loyer HT/HC
Honoraires : 30% HT du loyer annuel de base HT HC à charge du preneur
Prestations :
Accessibilité:
Bus (BUS-11, BUS-39-30)
Afficher notre barème d'honoraires.
Les informations sur les risques auxquels ce bien est exposé sont disponibles sur le site Géorisques : www.georisques.gouv.fr
Arthur Loyd Bordeaux vous présente une opportunité exceptionnelle de location d'un entrepôt clé en main à Mérignac (Dassault), niché dans un site sécurisé et clos. Avec une surface généreuse de 576m2, dont 430m2 dédiés au stockage pur et 127m2 aménageables en bureaux, cet entrepôt offre une solution polyvalente pour les entreprises en quête d'un espace fonctionnel et moderne.
Sa localisation stratégique, à seulement 3 minutes de l'aéroport de Bordeaux-Mérignac et au coeur du pôle aéronautique, en fait un choix idéal pour les entreprises opérant dans ce secteur. De plus, l'accès facilité pour les poids lourds et la disponibilité d'un grand nombre de places de stationnement sur site garantissent une accessibilité optimale pour vos opérations logistiques.
Les avantages ne s'arrêtent pas là : cet entrepôt offre la possibilité de créer un quai selon vos besoins spécifiques. De plus, en fonction de votre activité, l'autoconsommation d'énergie grâce aux panneaux photovoltaïques est envisageable, ce qui constitue une solution à la fois écologique et économique.
À l'étage, les bureaux sont totalement modulables, offrant ainsi une liberté d'aménagement selon vos besoins. De plus, les équipements disponibles sur place, tels que la salle de repos, la cuisine, les vestiaires et une agréable terrasse extérieure de 19m2, contribuent à créer un environnement de travail confortable et propice à la productivité.
En résumé, cet entrepôt à louer à Mérignac offre une combinaison parfaite de fonctionnalité, d'accessibilité et de modernité pour répondre aux exigences les plus élevées des entreprises d'aujourd'hui.
| Étage | Type | Surfaces | Dispo | Loyer | Charges | Type de bailRév. annuelle |
|---|---|---|---|---|---|---|
| Bureaux | 127 | 12 mois après accord | 110 HT/HC/m²/an | 3-6-9 ansILAT Indice des Loyers des Activités Tertiaires | ||
| 1 | Terrasse | 19 | 12 mois après accord | 110 HT/HC/m²/an | 3-6-9 ansILAT Indice des Loyers des Activités Tertiaires | |
| RDC | Activités | 430 | 12 mois après accord | 110 HT/HC/m²/an | 3-6-9 ansILAT Indice des Loyers des Activités Tertiaires |
Régime Fiscal : T.V.A.
Dépôt de garantie : 3 mois de loyer HT/HC
Honoraires : 30% HT du loyer annuel de base HT HC à charge du preneur
Prestations :
- Site clos et sécurisé
- Grande capacité de stationnements
- Facilité d'accès PL
- Création d'un quai possible
- 430 m2 de stockage pur
- Agencement libre des bureaux à l'étage
- Vestiaires, sanitaires, cuisine et salle de repos
- Belle luminosité
- Belles prestations au niveau des équipements
- Panneaux photovoltaïques
- Grande terrasse extérieure de 19 m2 en R+1
- 2 portes sectionnelles 4x4 m
- Accès à l'entrepôt par une passerelle intérieure
- HSP Haut : 8 m
- Au coeur du pôle aéronautique et à 3mn de l'aéroport de Bordeaux-Mérignac
- Surface RDC : 463,5 m²
- Ossature : Métallique
- Couverture : Bac acier
Accessibilité:
Bus (BUS-11, BUS-39-30)
Afficher notre barème d'honoraires.
Les informations sur les risques auxquels ce bien est exposé sont disponibles sur le site Géorisques : www.georisques.gouv.fr
Voir plus
Afficher les consommations énergétiques
Favoris
Exporter
Appeler
Contacter
Signaler cette annonce
