Conseil en immobilier d'entreprise, Cushman & Wakefield est un acteur incontournable au rayonnement international. Cushman & Wakefield offre des solutions dans toutes les étapes que comporte un p ...
En savoir plus

171 m²
HT HC
Location bureau - 171 m²
Paris 8 (75008)
Dernière mise à jour : Il y a 2 jours
Bureaux à louer à proximité d'Opéra
Cushman & Wakefield vous propose de découvrir une opportunité locative de bureaux à proximité immédiate de Madeleine et Opéra.
Situés rue des Mathurins, dans le 8 arrondissement de Paris, ces locaux bénéficient d'une excellente desserte grâce aux différents hubs de transport tels que Saint-Lazare, Auber et Havre-Caumartin.
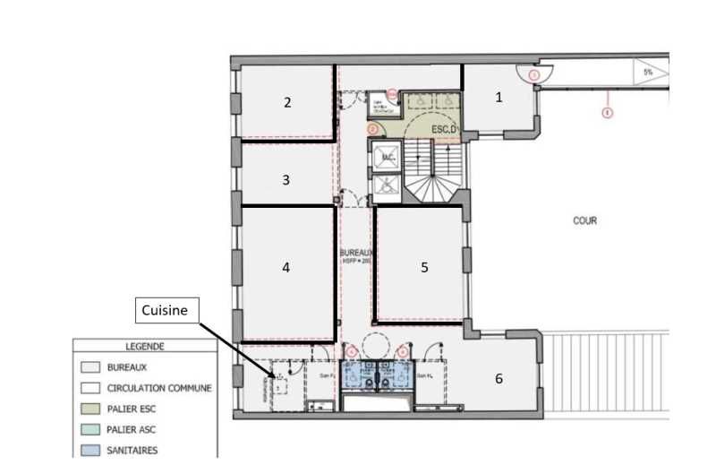
Les bureaux sont rénovés et climatisés et développent environ 172 m².
Nichés dans un immeuble en pierre de taille, ces bureaux offrent des parties communes de très bon standing ainsi qu'une charmante cour arborée.
Cette offre est disponible immédiatement sous bail commercial 3-6-9.
Pour toutes visites : 01 41 02 71 01 / [email protected]
Impôt Foncier : 45 €//m²/an
Régime Fiscal : T.V.A.
Dépôt de garantie : 3 mois de loyer HT/HC
Paiement Loyer : Trimestriel
Honoraires : à la charge du preneur
Taxe Bureau : 25 €/m²/an
Information sur le Bail :
Le montant des charges comprend une partie des fluides, assurance et frais de gestion
Prestations :
Accessibilité:
Métro Saint-Lazare (lignes 3-12-13-14)
RER Haussmann Saint-Lazare (RER E)
SNCF Gare Saint Lazare
Bus Lignes 24-32-53-66-94
Les informations sur les risques auxquels ce bien est exposé sont disponibles sur le site Géorisques : www.georisques.gouv.fr
Cushman & Wakefield vous propose de découvrir une opportunité locative de bureaux à proximité immédiate de Madeleine et Opéra.
Situés rue des Mathurins, dans le 8 arrondissement de Paris, ces locaux bénéficient d'une excellente desserte grâce aux différents hubs de transport tels que Saint-Lazare, Auber et Havre-Caumartin.
Les bureaux sont rénovés et climatisés et développent environ 172 m².
Nichés dans un immeuble en pierre de taille, ces bureaux offrent des parties communes de très bon standing ainsi qu'une charmante cour arborée.
Cette offre est disponible immédiatement sous bail commercial 3-6-9.
Pour toutes visites : 01 41 02 71 01 / [email protected]
| Étage | Type | Surfaces | Dispo | Loyer | Charges | Type de bailRév. annuelle |
|---|---|---|---|---|---|---|
| 5 | Bureaux | 171 | 640 HT/HC/m²/an | 75,21 HT/m²/an | 3-6-9 ansSur l'indice ILAT |
Impôt Foncier : 45 €//m²/an
Régime Fiscal : T.V.A.
Dépôt de garantie : 3 mois de loyer HT/HC
Paiement Loyer : Trimestriel
Honoraires : à la charge du preneur
Taxe Bureau : 25 €/m²/an
Information sur le Bail :
Le montant des charges comprend une partie des fluides, assurance et frais de gestion
Prestations :
- Immeuble labellisé BBC
- Certification HQE - BREEAM Excellent
- Parties communes de standing
- Accessibilité PMR
- Fibre optique
- 2 ascenseurs
- Réseau CPCU Climespace
- Cour arborée
- Plusieurs places de parking dans l'immeuble
- Configuration actuelle : 5 espaces cloisonnés, 1 petit open space, grande cuisine
- Baie de brassage
- Full open space possible
- Rafraîchissement prévu (nouvelle moquette, peinture)
Accessibilité:
Métro Saint-Lazare (lignes 3-12-13-14)
RER Haussmann Saint-Lazare (RER E)
SNCF Gare Saint Lazare
Bus Lignes 24-32-53-66-94
Les informations sur les risques auxquels ce bien est exposé sont disponibles sur le site Géorisques : www.georisques.gouv.fr
Voir plus
Afficher les consommations énergétiques
Localisation et transport aux alentours
- Havre Caumartin263m (4min à pied)39
- Saint-Lazare280m (4min à pied)312131414N
- Madeleine323m (5min à pied)81214
- Auber380m (6min à pied)A
- Haussmann - Saint-Lazare397m (6min à pied)E
- Paris Saint-Lazare426m (6min à pied)JL
Favoris
Exporter
Appeler
Contacter
Signaler cette annonce
