Size Real Estate est une société de conseil en immobilier d’entreprise. Nous vous accompagnons dans tous vos projets immobiliers à Paris ou en première couronne. De la recherche de bureaux à la loc ...
En savoir plus

236 m²
HT HC
Location bureau - 236 m²
Paris 8 (75008)
Dernière mise à jour : Il y a 2 jours
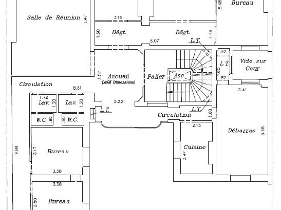
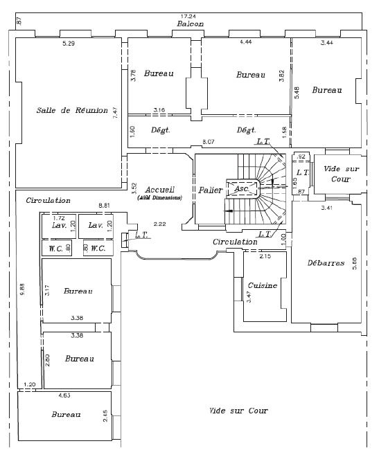
Bureaux rue du Faubourg Saint-Honoré
En plein coeur du Quartier Central des Affaires, à deux pas de la Place de la Concorde et de la Madeleine, SIZE REAL ESTATE vous propose une surface de bureaux à la location au 5ème étage d'un immeuble de standing avec hôtesse d'accueil. Les bureaux donnent sur la rue du Faubourg Saint-Honoré et bénéficient de beaux volumes, de pièces nobles et d'un grand balcon filant.
Disponible immédiatement. Contact : Nicolas PILLIARD au 06.86.21.83.74
Construction : Bel immeuble Haussmannien
État de l'immeuble : Très bon état
Date (dernière mise à jour) : 2025-10-07
Bail : Commercial 3 6 9
Honoraires / Location: 15 % HT du loyer annuel HT HC À la charge du preneur
Commentaires: Assurance : 593,29 EUR (soit 2.85 EUR/m²)
Prestations :
- Bel immeuble Haussmannien
-
- Hôtesse d'accueil
- 1 ascenseur
- Chauffage collectif
-
- État des locaux : Bon état
- Bureaux au 5ème étage organisés en :
- - 1 bel espace accueil avec bow-window
- - 1 open space
- - 3 bureaux sur rue
- -3 bureaux sur cour
- - 1 kitchenette
-
- Moulures et cheminées.
- Parquet sur la moitié de la surface.
- Double sanitaires
Tableau de Surfaces :
Conditions juridiques et financères :
Charges : 2187.72
Accessibilité :
Métro : Madeleine (8, 12 et 14)
- RER : Auber (A) à 700 m
- Bus : 42, 73, 84 et 94
En plein coeur du Quartier Central des Affaires, à deux pas de la Place de la Concorde et de la Madeleine, SIZE REAL ESTATE vous propose une surface de bureaux à la location au 5ème étage d'un immeuble de standing avec hôtesse d'accueil. Les bureaux donnent sur la rue du Faubourg Saint-Honoré et bénéficient de beaux volumes, de pièces nobles et d'un grand balcon filant.
Disponible immédiatement. Contact : Nicolas PILLIARD au 06.86.21.83.74
Construction : Bel immeuble Haussmannien
État de l'immeuble : Très bon état
Date (dernière mise à jour) : 2025-10-07
Bail : Commercial 3 6 9
Honoraires / Location: 15 % HT du loyer annuel HT HC À la charge du preneur
Commentaires: Assurance : 593,29 EUR (soit 2.85 EUR/m²)
Prestations :
- Bel immeuble Haussmannien
-
- Hôtesse d'accueil
- 1 ascenseur
- Chauffage collectif
-
- État des locaux : Bon état
- Bureaux au 5ème étage organisés en :
- - 1 bel espace accueil avec bow-window
- - 1 open space
- - 3 bureaux sur rue
- -3 bureaux sur cour
- - 1 kitchenette
-
- Moulures et cheminées.
- Parquet sur la moitié de la surface.
- Double sanitaires
Tableau de Surfaces :
| Etage | Type de bien | Surface | Dispo | |
| 5 | Bureaux | 236 m² | Immédiate |
Conditions juridiques et financères :
Charges : 2187.72
Accessibilité :
Métro : Madeleine (8, 12 et 14)
- RER : Auber (A) à 700 m
- Bus : 42, 73, 84 et 94
Voir plus
Afficher les consommations énergétiques
Localisation et transport aux alentours
Favoris
Exporter
Appeler
Contacter
Signaler cette annonce










