Conseil en immobilier d'entreprise, Cushman & Wakefield est un acteur incontournable au rayonnement international. Cushman & Wakefield offre des solutions dans toutes les étapes que comporte un p ...
En savoir plus



2 895 m² divisible dès 124 m²
HT HC
LE PRIMATVERA - Location bureau - 2895 m²
Lyon 3 (69003)
Dernière mise à jour : Il y a 3 jours
Bureaux d'exception à la Part-Dieu
Immeuble LE PRIMATVERA
Cushman & Wakefield vous propose LE PRIMATVERA - Bureaux neufs à louer - Coeur Part-Dieu (69003)
Découvrez vos futurs bureaux lyonnais disponibles à la location au coeur du 2eme quartier d'affaires de France.
Situés le long de la rue Garibaldi - fraichement aménagée - ces bureaux à louer disposent d'une implantation stratégique au pied du tramway T1, à deux pas de la gare Part-Dieu et des voies de mobilités douces. La proximité immédiate des commerces (Halles Paul Bocuse. ), restaurants et des services du quotidien, confère également à ces bureaux une situation privilégiée.
Ouvert sur son quartier, cet immeuble tertiaire à louer propose plus de 1 500 m² d'espaces extérieurs : des loggias à chaque niveau, des terrasses, un jardin intérieur et un rooftop accessible.
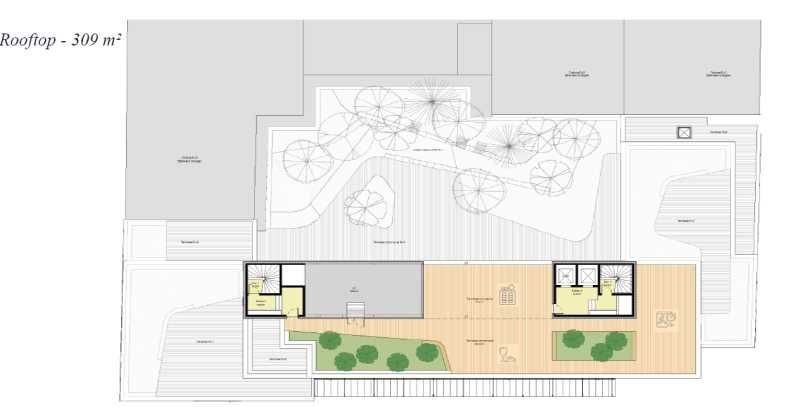
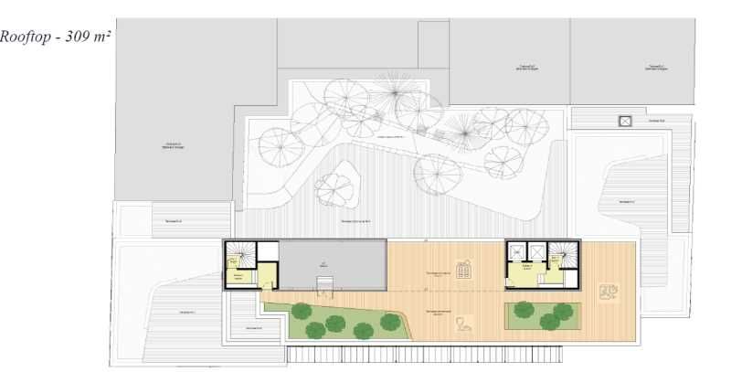
Plus de 300 m² offrant un spectacle unique à vos salariés : un panorama sur les toits de Lyon, la colline de Fourvière et la chaine des Alpes. Vous pourrez même à l'occasion apercevoir le Mont-Blanc !
Développant l'esprit "Oïkos" ("Maison" dans la Grèce antique), l'immeuble se veut ouvert à tous : un lieu de vie, de travail et de partage où les espaces de bureaux côtoient les espaces d'échanges et de repos.
Répondant aux attentes des nouvelles générations de collaborateurs, cet immeuble de bureaux est certifié BREEAM Excellent et Well Gold dévoilant une démarche environnementale forte. Une réhabilitation conçue dans le respect de ses utilisateurs, de ses voisins et de la planète.
Baignés de lumière naturelle, les bureaux encore disponibles à la location sont conçus pour s'adapter à vos usages et répondre aux plus hauts niveaux d'exigences techniques.
N'hésitez pas à nous contacter pour visiter cette magnifique réhabilitation à louer ou à nous contacter pour plus d'informations !
Impôt Foncier : 25,1 €//m²/an
Régime Fiscal : T.V.A.
Dépôt de garantie : 3 mois de loyer HT/HC
Paiement Loyer : Trimestriel
Honoraires : 15 % HT du loyer annuel HT/HC à la charge du preneur.
Information sur le Bail :
Loyer terrasse : 165 euros HT/HC Assurance bailleur refacturable : 4 euros HT/m²
Prestations :
Accessibilité:
Métro Part Dieu ( ligne B)
Bus Lignes C9 et C13
Tram T1-T3-T4
SNCF Gare Part Dieu à environ 500 m
Les informations sur les risques auxquels ce bien est exposé sont disponibles sur le site Géorisques : www.georisques.gouv.fr
Immeuble LE PRIMATVERA
Cushman & Wakefield vous propose LE PRIMATVERA - Bureaux neufs à louer - Coeur Part-Dieu (69003)
Découvrez vos futurs bureaux lyonnais disponibles à la location au coeur du 2eme quartier d'affaires de France.
Situés le long de la rue Garibaldi - fraichement aménagée - ces bureaux à louer disposent d'une implantation stratégique au pied du tramway T1, à deux pas de la gare Part-Dieu et des voies de mobilités douces. La proximité immédiate des commerces (Halles Paul Bocuse. ), restaurants et des services du quotidien, confère également à ces bureaux une situation privilégiée.
Ouvert sur son quartier, cet immeuble tertiaire à louer propose plus de 1 500 m² d'espaces extérieurs : des loggias à chaque niveau, des terrasses, un jardin intérieur et un rooftop accessible.
Plus de 300 m² offrant un spectacle unique à vos salariés : un panorama sur les toits de Lyon, la colline de Fourvière et la chaine des Alpes. Vous pourrez même à l'occasion apercevoir le Mont-Blanc !
Développant l'esprit "Oïkos" ("Maison" dans la Grèce antique), l'immeuble se veut ouvert à tous : un lieu de vie, de travail et de partage où les espaces de bureaux côtoient les espaces d'échanges et de repos.
Répondant aux attentes des nouvelles générations de collaborateurs, cet immeuble de bureaux est certifié BREEAM Excellent et Well Gold dévoilant une démarche environnementale forte. Une réhabilitation conçue dans le respect de ses utilisateurs, de ses voisins et de la planète.
Baignés de lumière naturelle, les bureaux encore disponibles à la location sont conçus pour s'adapter à vos usages et répondre aux plus hauts niveaux d'exigences techniques.
N'hésitez pas à nous contacter pour visiter cette magnifique réhabilitation à louer ou à nous contacter pour plus d'informations !
| Étage | Type | Surfaces | Dispo | Loyer | Charges | Type de bailRév. annuelle |
|---|---|---|---|---|---|---|
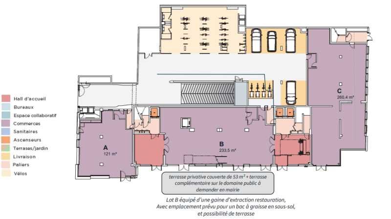
| RdC | Locaux Commerciaux | 272 | 370 HT/HC/m²/an | 6-9 ansSur l'indice ILAT | ||
| RdC | Locaux Commerciaux | 124,2 | 370 HT/HC/m²/an | 6-9 ansSur l'indice ILAT | ||
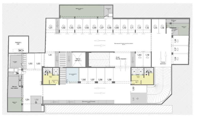
| R+1 | Bureaux | 293,6 | 350 HT/HC/m²/an | 32 HT/m²/an | 6-9 ansSur l'indice ILAT | |
| R+1 | Bureaux | 260,9 | 350 HT/HC/m²/an | 32 HT/m²/an | 6-9 ansSur l'indice ILAT | |
| R+1 | Bureaux | 154,6 | 350 HT/HC/m²/an | 32 HT/m²/an | 6-9 ansSur l'indice ILAT | |
| R+2 | Bureaux | 486,6 | 350 HT/HC/m²/an | 32 HT/m²/an | 6-9 ansSur l'indice ILAT | |
| R+2 | Bureaux | 408,2 | 350 HT/HC/m²/an | 32 HT/m²/an | 6-9 ansSur l'indice ILAT | |
| R+3 | Bureaux | 486,6 | 350 HT/HC/m²/an | 32 HT/m²/an | 6-9 ansSur l'indice ILAT | |
| R+3 | Bureaux | 408,2 | 350 HT/HC/m²/an | 32 HT/m²/an | 6-9 ansSur l'indice ILAT | |
| R+9 | Autre | 309,3 | 6-9 ansSur l'indice ILAT | |||
| Sup. Disp. | Arch./Reser. | 13,7 | 150 HT/HC/m²/an | 6-9 ansSur l'indice ILAT | ||
| Sous-Sol | Parkings | 2000 HT/HC/U/an | 6-9 ansSur l'indice ILAT | |||
| Sous-Sol | Parkings | 500 HT/HC/U/an | 6-9 ansSur l'indice ILAT |
Impôt Foncier : 25,1 €//m²/an
Régime Fiscal : T.V.A.
Dépôt de garantie : 3 mois de loyer HT/HC
Paiement Loyer : Trimestriel
Honoraires : 15 % HT du loyer annuel HT/HC à la charge du preneur.
Information sur le Bail :
Loyer terrasse : 165 euros HT/HC Assurance bailleur refacturable : 4 euros HT/m²
Prestations :
- Certifications visées : BREEAM EXCELLENT et WELL GOLD
- Création de terrasses/Rooftop
- Services pour les utilisateurs de l'immeuble, ouverts à l'extérieur
- Accès Personnes Mobilités Réduites
- Contrôle d'accès extérieur
- Ascenseurs : 1 duplex Nord - 1 simple Sud - 1 élévateur Espace restauration
- Loggias et/ou terrasses privatives à tous les étages
- Commerces en RDC.
- 74 places dont 20 bornes de recharges électriques
- Capacitaire 1pers/10 m²
- Plateaux de bureaux à simple circulation conçus pour permettre une grande flexibilité d'aménagement
- 100% des surfaces en 1er jour
- Flexibilité d'implantation du cloisonnement
- Stores extérieurs motorisés toutes expositions
- Confort optimal :
- Traitement thermique d'ambiance par plafond rayonnant
- Ventilation mécanique à faible vitesse de déplacement
- Hauteur libre Bureaux :
- Faux plancher technique
- R+1 : 382 m² jardin paysager
- 218 m² terrasse
- Surface RDC : 396,2 m²
Accessibilité:
Métro Part Dieu ( ligne B)
Bus Lignes C9 et C13
Tram T1-T3-T4
SNCF Gare Part Dieu à environ 500 m
Les informations sur les risques auxquels ce bien est exposé sont disponibles sur le site Géorisques : www.georisques.gouv.fr
51 Parking(s) en sous-sol 17 Parking(s) moto
Voir plus
Afficher les consommations énergétiques
Localisation et transport aux alentours
- Part-Dieu - Servient287m (4min à pied)1
- Palais de Justice - Mairie du 3ème321m (5min à pied)1
Favoris
Exporter
Appeler
Contacter
Signaler cette annonce
