Depuis 2003, KEOPS Toulouse accompagne les entreprises dans leurs projets immobiliers sur toute l’aire urbaine toulousaine.Notre équipe de professionnels passionnés met à votre service sa connaissa ...
En savoir plus

458 m²
HT HC
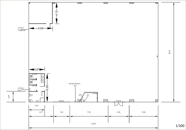
Location activité/entrepôt - 458 m²
Toulouse (31000)
Dernière mise à jour : Hier
Local d'activités à louer situé au coeur de la ZI de Larrieu, au sud de Toulouse
Accès : par A64 sortie n° 38 "Saint-Simon" Par route d'Espagne Bus lignes n° 50, 117 et Lineo 5
Dans un ensemble immobilier, local d'activités d'une surface de 458 m²Une partie bureaux de 83 m² avec 4 bureaux, sanitaires, doucheUne partie dépôt de 199 m² avec rideau métallique électriqueUne partie atelier de 94 m²Une mezzanine de 82 m²Local situé en bordure d'un axe fréquentéBâtiment type structure métallique, bardage double peau
Accès : par A64 sortie n° 38 "Saint-Simon" Par route d'Espagne Bus lignes n° 50, 117 et Lineo 5
Dans un ensemble immobilier, local d'activités d'une surface de 458 m²Une partie bureaux de 83 m² avec 4 bureaux, sanitaires, doucheUne partie dépôt de 199 m² avec rideau métallique électriqueUne partie atelier de 94 m²Une mezzanine de 82 m²Local situé en bordure d'un axe fréquentéBâtiment type structure métallique, bardage double peau
Voir plus
Afficher les consommations énergétiques
Localisation et transport aux alentours
Favoris
Exporter
Appeler
Contacter
Signaler cette annonce
