Depuis 2003, KEOPS Toulouse accompagne les entreprises dans leurs projets immobiliers sur toute l’aire urbaine toulousaine.Notre équipe de professionnels passionnés met à votre service sa connaissa ...
En savoir plus

180 m²
HT HC
Location activité/entrepôt - 180 m²
Toulouse (31000)
Dernière mise à jour : Il y a 2 jours
Local d'activités à louer, idéalement situé au nord de Toulouse, à proximité immédiate du périphérique et de l'A62
Impôt Foncier : 1500 €/Euros / an
Régime Fiscal : T.V.A.
Dépôt de garantie : 3 mois de loyer HT HC
Honoraires : 15 % HT du loyer annuel HT HC à la charge du preneur
Prestations :
Accessibilité:
Autoroute Par périphérique sortie n° 12 "Les Izards"
Aéroport Aéroport de Toulouse-Blagnac (France)
Bus Toulouse - Glacière (Ligne 372, Ligne 377)
SNCF Lalande-Église (Gare SNCF)
Autoroute A 62 (Entrée Périphérique Extérieur A620), A 62 (Sortie Périphérique Extérieur A620), A 620 (Entrée), A 620, Périphérique Intérieur (Sortie), Périphérique Intérieur (Entrée A62)
Rocade Échangeur A621 Blagnac (Périphérique Toulouse)
Borne de recharge Hôtel Ibis Style Toulouse (Bornes de recharge)
Les informations sur les risques auxquels ce bien est exposé sont disponibles sur le site Géorisques : www.georisques.gouv.fr
| Étage | Type | Surfaces | Dispo | Loyer | Charges | Type de bailRév. annuelle |
|---|---|---|---|---|---|---|
| Activités | 180 | Immédiate | 126,67 HT HC/ m²/ an | 440 HT / an | Commercial 3/6/9 ansIndexation ILAT (indice des Loyers et Activités Tertiaires) |
Impôt Foncier : 1500 €/Euros / an
Régime Fiscal : T.V.A.
Dépôt de garantie : 3 mois de loyer HT HC
Honoraires : 15 % HT du loyer annuel HT HC à la charge du preneur
Prestations :
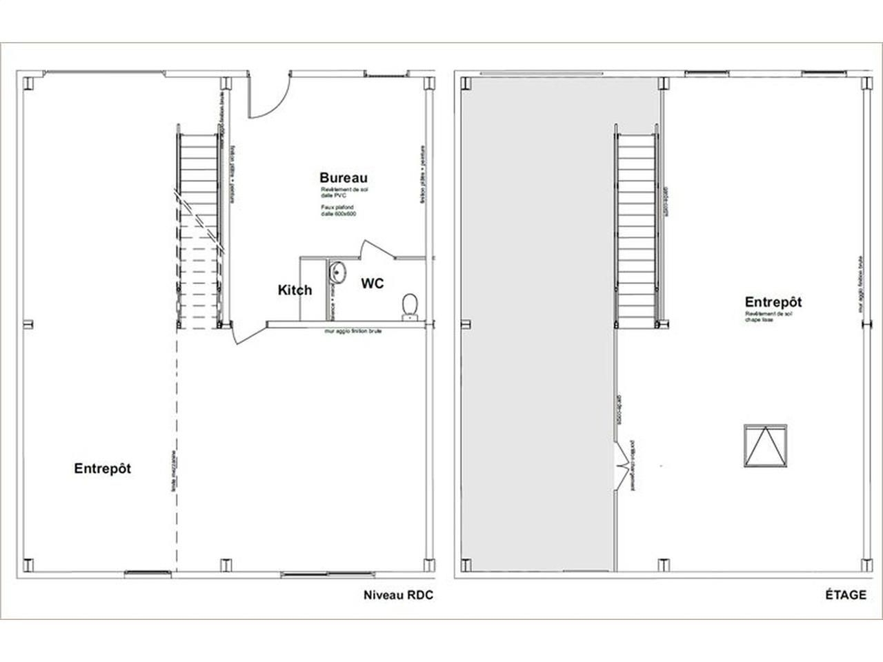
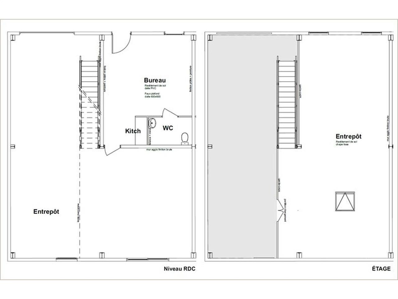
- Dans un ensemble immobilier, local d'activités à louer, avec de belles prestations, et idéalement situé
- Une partie bureaux de 30 m² climatisée, éclairage LED Sanitaires et coin kitchenette
- Une partie dépôt de 90 m² avec portes sectionnelle électrique
- Electricité en triphasé
- Dalle béton
- Eclairage LED
- Une mezzanine de 60 m² Bac acier + dalle béton
- Trappes de désenfumage
- 3 places de parking par lot
Accessibilité:
Autoroute Par périphérique sortie n° 12 "Les Izards"
Aéroport Aéroport de Toulouse-Blagnac (France)
Bus Toulouse - Glacière (Ligne 372, Ligne 377)
SNCF Lalande-Église (Gare SNCF)
Autoroute A 62 (Entrée Périphérique Extérieur A620), A 62 (Sortie Périphérique Extérieur A620), A 620 (Entrée), A 620, Périphérique Intérieur (Sortie), Périphérique Intérieur (Entrée A62)
Rocade Échangeur A621 Blagnac (Périphérique Toulouse)
Borne de recharge Hôtel Ibis Style Toulouse (Bornes de recharge)
Les informations sur les risques auxquels ce bien est exposé sont disponibles sur le site Géorisques : www.georisques.gouv.fr
Voir plus
Afficher les consommations énergétiques
Localisation et transport aux alentours
Favoris
Exporter
Appeler
Contacter
Signaler cette annonce










