

134 m²
HT HC
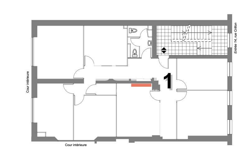
Location bureau - 134 m²
Lyon 6 (69006)
Dernière mise à jour : Il y a 2 jours
Découvrez une opportunité unique d'implanter votre entreprise au coeur de Lyon 6e dans un espace de bureaux de 134 m², alliant charme d'antan et fonctionnalité moderne. Situé au premier étage d'un immeuble mixte datant de 1920, cet espace sans ascenseur vous séduira par son caractère authentique et son bon état d'entretien. Profitez d'un cadre de travail inspirant, où le cachet de l'ancien se marie harmonieusement avec les besoins contemporains des entreprises. Cet espace non divisible est idéal pour les sociétés en quête d'une adresse prestigieuse et d'une ambiance de travail stimulante. Niché dans un quartier dynamique, cet emplacement stratégique vous offre une proximité immédiate avec les commodités locales, facilitant ainsi le quotidien de vos collaborateurs. Que vous soyez une start-up en pleine croissance ou une entreprise bien établie, ces bureaux sauront répondre à vos exigences. Ne manquez pas cette chance de donner une nouvelle dimension à votre activité dans un environnement qui reflète votre ambition et votre succès. Contactez-nous dès aujourd'hui pour organiser une visite et laissez-vous séduire par le potentiel de cet espace unique.
Impôt Foncier : 1500 €/euros/HT
Régime Fiscal : T.V.A.
Dépôt de garantie : 3 mois de loyer HT/HC
Honoraires : 20% à la charge du preneur.
Prestations :
Accessibilité:
Métro Foch (E)
Autoroute Boulevard Laurent Bonnevay
SNCF GARE DE PART DIEU
Les informations sur les risques auxquels ce bien est exposé sont disponibles sur le site Géorisques : www.georisques.gouv.fr
| Étage | Type | Surfaces | Dispo | Loyer | Charges | Type de bailRév. annuelle |
|---|---|---|---|---|---|---|
| 1 | Bureaux | 134 | 156,72 HT/HC/m²/an | 3-6-9 ansILAT Indice des Loyers des Activités Tertiaires |
Impôt Foncier : 1500 €/euros/HT
Régime Fiscal : T.V.A.
Dépôt de garantie : 3 mois de loyer HT/HC
Honoraires : 20% à la charge du preneur.
Prestations :
- Moquette
- Faux plafond
- Climatisation
- Bon état d'entretien
- Pas d'autre occupant sur le palier
- Immeuble mixte/habitation
Accessibilité:
Métro Foch (E)
Autoroute Boulevard Laurent Bonnevay
SNCF GARE DE PART DIEU
Les informations sur les risques auxquels ce bien est exposé sont disponibles sur le site Géorisques : www.georisques.gouv.fr
Voir plus
Afficher les consommations énergétiques
Localisation et transport aux alentours
Favoris
Exporter
Appeler
Contacter
Signaler cette annonce