Conseil en immobilier d'entreprise, Cushman & Wakefield est un acteur incontournable au rayonnement international. Cushman & Wakefield offre des solutions dans toutes les étapes que comporte un p ...
En savoir plus



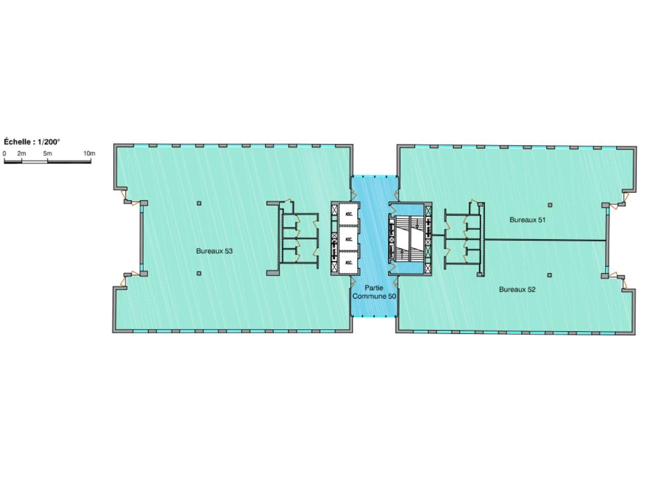
1 028 m² divisible dès 186 m²
HT HC
CITY ONE - Location bureau - 1028 m²
Lyon 6 (69006)
Dernière mise à jour : Il y a 6 mois
Cité internationale - Bureaux rénovés à la location 69006
Immeuble CITY ONE
À louer, au coeur de la prestigieuse Cité Internationale, un plateau de bureaux de 280 m² non divisibles, situé dans l'immeuble City One, offrant un environnement de travail exceptionnel en bord de Rhône.
Ce secteur, reconnu pour son architecture moderne signée Renzo Piano et sa mixité unique entre bureaux, hôtels, restaurants, salle de spectacle et espaces verts du parc de la Tête d'Or, constitue une adresse de référence pour les entreprises en quête d'image et de confort.
L'immeuble fait actuellement l'objet d'une rénovation complète visant à offrir des prestations haut de gamme. Le hall d'accueil et les sanitaires du rez-de-chaussée ont été intégralement repensés en 2025, tandis que les parties communes des étages bénéficieront d'une modernisation en 2026. Les plateaux rénovés, sont livrés nus pour permettre un aménagement sur mesure, adaptés aux besoins spécifiques de chaque preneur.
Le plateau proposé, situé au 5? étage, dispose d'un faux-plafond acoustique, d'un faux-plancher technique et d'une climatisation réversible. Sa configuration facilite un agencement optimal, qu'il s'agisse d'open space ou de bureaux cloisonnés. Les larges baies vitrées offrent une belle luminosité naturelle.
Accessible facilement en transports en commun grâce aux lignes C1, C4 et C5, et à proximité des grands axes, City One allie emplacement stratégique et cadre de travail prestigieux. Le loyer est fixé à 250 euros HT/HC/m²/an, avec des charges de 45 euros HT/m²/an, impôt foncier et TEOM en sus.
Disponible immédiatement, ce bureau représente une opportunité rare de s'installer dans un immeuble emblématique de Lyon, en pleine modernisation.
N'hésitez pas à me contacter si vous souhaitez plus d'informations.
Impôt Foncier : 28 €//m²/an
Régime Fiscal : T.V.A.
Dépôt de garantie : 3 mois de loyer HT/HC
Paiement Loyer : Trimestriel
Honoraires : 15 % HT du loyer annuel HT/HC à la charge du preneur.
Information sur le Bail :
Assurance : 1,6 euros/m²
Prestations :
Accessibilité:
Bus Lignes C1-C4-C5
Les informations sur les risques auxquels ce bien est exposé sont disponibles sur le site Géorisques : www.georisques.gouv.fr
Immeuble CITY ONE
À louer, au coeur de la prestigieuse Cité Internationale, un plateau de bureaux de 280 m² non divisibles, situé dans l'immeuble City One, offrant un environnement de travail exceptionnel en bord de Rhône.
Ce secteur, reconnu pour son architecture moderne signée Renzo Piano et sa mixité unique entre bureaux, hôtels, restaurants, salle de spectacle et espaces verts du parc de la Tête d'Or, constitue une adresse de référence pour les entreprises en quête d'image et de confort.
L'immeuble fait actuellement l'objet d'une rénovation complète visant à offrir des prestations haut de gamme. Le hall d'accueil et les sanitaires du rez-de-chaussée ont été intégralement repensés en 2025, tandis que les parties communes des étages bénéficieront d'une modernisation en 2026. Les plateaux rénovés, sont livrés nus pour permettre un aménagement sur mesure, adaptés aux besoins spécifiques de chaque preneur.
Le plateau proposé, situé au 5? étage, dispose d'un faux-plafond acoustique, d'un faux-plancher technique et d'une climatisation réversible. Sa configuration facilite un agencement optimal, qu'il s'agisse d'open space ou de bureaux cloisonnés. Les larges baies vitrées offrent une belle luminosité naturelle.
Accessible facilement en transports en commun grâce aux lignes C1, C4 et C5, et à proximité des grands axes, City One allie emplacement stratégique et cadre de travail prestigieux. Le loyer est fixé à 250 euros HT/HC/m²/an, avec des charges de 45 euros HT/m²/an, impôt foncier et TEOM en sus.
Disponible immédiatement, ce bureau représente une opportunité rare de s'installer dans un immeuble emblématique de Lyon, en pleine modernisation.
N'hésitez pas à me contacter si vous souhaitez plus d'informations.
| Étage | Type | Surfaces | Dispo | Loyer | Charges | Type de bailRév. annuelle |
|---|---|---|---|---|---|---|
| 6 | Bureaux | 562 | 1er avril 2026 | 260 HT/HC/m²/an | 35,1 HT/m²/an | 3-6-9 ansSur l'indice ILAT |
| 5 | Bureaux | 280 | Immédiate | 260 HT/HC/m²/an | 35,1 HT/m²/an | 3-6-9 ansSur l'indice ILAT |
| RdC | Bureaux | 186 | Immédiate | 210 HT/HC/m²/an | 35,1 HT/m²/an | 3-6-9 ansSur l'indice ILAT |
Impôt Foncier : 28 €//m²/an
Régime Fiscal : T.V.A.
Dépôt de garantie : 3 mois de loyer HT/HC
Paiement Loyer : Trimestriel
Honoraires : 15 % HT du loyer annuel HT/HC à la charge du preneur.
Information sur le Bail :
Assurance : 1,6 euros/m²
Prestations :
- Hall et les sanitaires du RDC en rénovation (prévue été 2024)
- Parties communes des étages en rénovation (2025)
- Rénovation intégrale en cours sur tous les niveaux
- Hall entièrement rénové avec espaces Lounge et tisanerie.
- Plateaux livrés nus à aménager
- Faux-plafond acoustique
- Faux-plancher technique
- Climatisation réversible
- Plateau facilement aménageable
- Lot RDC avec accès directe sur l'extérieur
- Surface RDC : 186 m²
Accessibilité:
Bus Lignes C1-C4-C5
Les informations sur les risques auxquels ce bien est exposé sont disponibles sur le site Géorisques : www.georisques.gouv.fr
Voir plus
Afficher les consommations énergétiques
Localisation et transport aux alentours
Favoris
Exporter
Appeler
Contacter
Signaler cette annonce









