Créée en mai 2012, Wellstone est une société de conseil en immobilier d'entreprise qui accompagne ses clients propriétaires, investisseurs et utilisateurs dans leurs différents projets immobiliers ...
En savoir plus

1 046 m²
HT HC
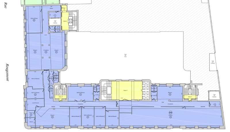
Location bureau - 1046 m²
Paris 9 (75009)
Dernière mise à jour : Il y a 2 jours
Au pied du métro Bonne Nouvelle et en plein sur les Grands Boulevards, Wellstone vous propose de venir découvrir un plateau de bureaux à louer récemment rénové et très flexible d'aménagement.
Immeuble de service et d'excellent standing, ces bureaux sont idéal pour toute société souhaitant être dans un quartier vivant et dynamique au centre de Paris !
Impôt Foncier : 18,03 €/m²/an
Régime Fiscal : T.V.A.
Dépôt de garantie : 3 mois de loyer HT/HC
Honoraires : A la charge du preneur.
Taxe Bureau : 25,77 €/m²/an
Prestations :
Accessibilité:
Metro Auber (A)
Metro Bonne Nouvelle (8, 9)
Metro Bourse (3)
Bus Grands Boulevards (Ligne 85, Ligne 74, Ligne 32, Ligne N16, Ligne N15), Poissonnière - Bonne Nouvelle (Ligne 20, Ligne 39)
Métro Sentier (Ligne 3), Bonne Nouvelle (Ligne 8, Ligne 9)
Les informations sur les risques auxquels ce bien est exposé sont disponibles sur le site Géorisques : www.georisques.gouv.fr
Immeuble de service et d'excellent standing, ces bureaux sont idéal pour toute société souhaitant être dans un quartier vivant et dynamique au centre de Paris !
| Étage | Type | Surfaces | Dispo | Loyer | Charges | Type de bailRév. annuelle |
|---|---|---|---|---|---|---|
| 4 | Bureaux | 1046 | Immédiate | 830 m²/an HT HC | 89,68 m²/an HT | 6-9 ansILAT |
Impôt Foncier : 18,03 €/m²/an
Régime Fiscal : T.V.A.
Dépôt de garantie : 3 mois de loyer HT/HC
Honoraires : A la charge du preneur.
Taxe Bureau : 25,77 €/m²/an
Prestations :
- Parties communes de très bon standing
- Grand Hall d'accueil
- Hôtesse d'accueil
- Palier semi-privatif
- Locaux calmes et lumineux en excellent état
- Locataire unique sur l'étage
- Belle hauteur sous plafond
- Câblage informatique existant
- Fibre optique
- Climatisation
- Salle de sport dans l'immeuble
- Cours de yoga et de pilates
Accessibilité:
Metro Auber (A)
Metro Bonne Nouvelle (8, 9)
Metro Bourse (3)
Bus Grands Boulevards (Ligne 85, Ligne 74, Ligne 32, Ligne N16, Ligne N15), Poissonnière - Bonne Nouvelle (Ligne 20, Ligne 39)
Métro Sentier (Ligne 3), Bonne Nouvelle (Ligne 8, Ligne 9)
Les informations sur les risques auxquels ce bien est exposé sont disponibles sur le site Géorisques : www.georisques.gouv.fr
Voir plus
Afficher les consommations énergétiques
Localisation et transport aux alentours
- Grands Boulevards164m (2min à pied)89
- Bonne Nouvelle312m (5min à pied)89
- Sentier381m (6min à pied)3
Favoris
Exporter
Appeler
Contacter
Signaler cette annonce
