Conseil en immobilier d'entreprise, Cushman & Wakefield est un acteur incontournable au rayonnement international. Cushman & Wakefield offre des solutions dans toutes les étapes que comporte un p ...
En savoir plus

194 m²
HT HC
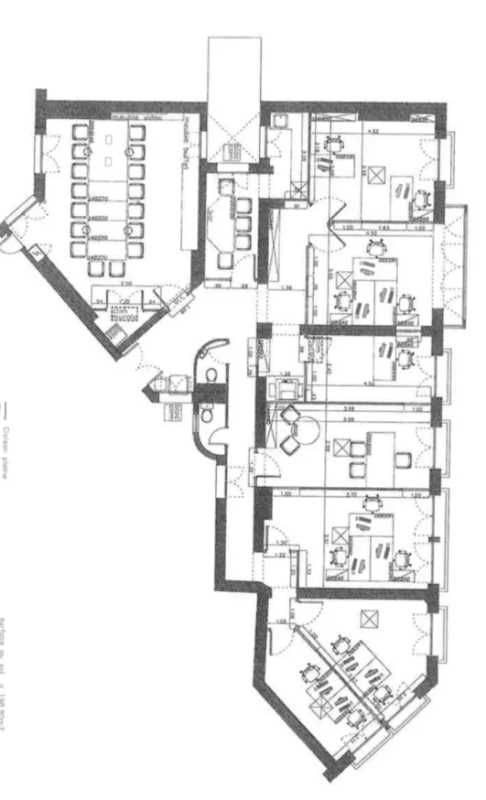
Location bureau - 194 m²
Paris 8 (75008)
Dernière mise à jour : Il y a 2 jours
Bureaux haut de gamme à louer - Paris 8e, Triangle d'Or
Dans un immeuble de prestige situé rue Marbeuf, 194 m² de bureaux lumineux et élégants vous attendent. L'espace offre un cadre de travail optimal : 7 bureaux indépendants, une grande salle de réception, un espace d'accueil soigné, belle hauteur sous plafond, climatisation et câblage périphérique. Balcon accessible pour pause ou respiration urbaine. Un environnement propice au confort, à la concentration et à l'image de marque. Disponible immédiatement, avec 1 place de parking en sous-sol en sus.
Impôt Foncier : 63,35 €//m²/an
Régime Fiscal : T.V.A.
Dépôt de garantie : 3 mois de loyer HT/HC
Paiement Loyer : Trimestriel
Honoraires : à la charge du preneur
Taxe Bureau : 25,31 €/m²/an
Prestations :
Accessibilité:
Métro Alma Marceau (ligne 9)
RER Pont de l'Alma (RER C)
Les informations sur les risques auxquels ce bien est exposé sont disponibles sur le site Géorisques : www.georisques.gouv.fr
Dans un immeuble de prestige situé rue Marbeuf, 194 m² de bureaux lumineux et élégants vous attendent. L'espace offre un cadre de travail optimal : 7 bureaux indépendants, une grande salle de réception, un espace d'accueil soigné, belle hauteur sous plafond, climatisation et câblage périphérique. Balcon accessible pour pause ou respiration urbaine. Un environnement propice au confort, à la concentration et à l'image de marque. Disponible immédiatement, avec 1 place de parking en sous-sol en sus.
| Étage | Type | Surfaces | Dispo | Loyer | Charges | Type de bailRév. annuelle |
|---|---|---|---|---|---|---|
| 3 | Bureaux | 194 | 750 HT/HC/m²/an | 40 HT/m²/an | 3-6-9 ansSur l'indice ILC | |
| Sous-Sol | Parkings | 3-6-9 ansSur l'indice ILC |
Impôt Foncier : 63,35 €//m²/an
Régime Fiscal : T.V.A.
Dépôt de garantie : 3 mois de loyer HT/HC
Paiement Loyer : Trimestriel
Honoraires : à la charge du preneur
Taxe Bureau : 25,31 €/m²/an
Prestations :
- Bel immeuble en pierre de taille
- Parties communes de très bon standing
- Fibre optique
- Gardien
- Ascenseur
- Parking au pied de l'immeuble
- Espace d'accueil
- 7 bureaux
- 1 grande salle de réception
- Balcon
- Parquet sur la partie avant de la surface
- Belle hauteur sous plafond
- Climatisation
- Câblage périphérique
- Surface RDC : 0 m²
Accessibilité:
Métro Alma Marceau (ligne 9)
RER Pont de l'Alma (RER C)
Les informations sur les risques auxquels ce bien est exposé sont disponibles sur le site Géorisques : www.georisques.gouv.fr
Voir plus
Afficher les consommations énergétiques
Localisation et transport aux alentours
Favoris
Exporter
Appeler
Contacter
Signaler cette annonce
