Créée en mai 2012, Wellstone est une société de conseil en immobilier d'entreprise qui accompagne ses clients propriétaires, investisseurs et utilisateurs dans leurs différents projets immobiliers ...
En savoir plus

114 m²
HT HC
Location bureau - 114 m²
Paris 8 (75008)
Dernière mise à jour : Il y a 2 jours
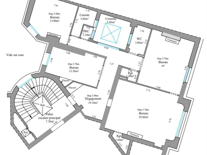
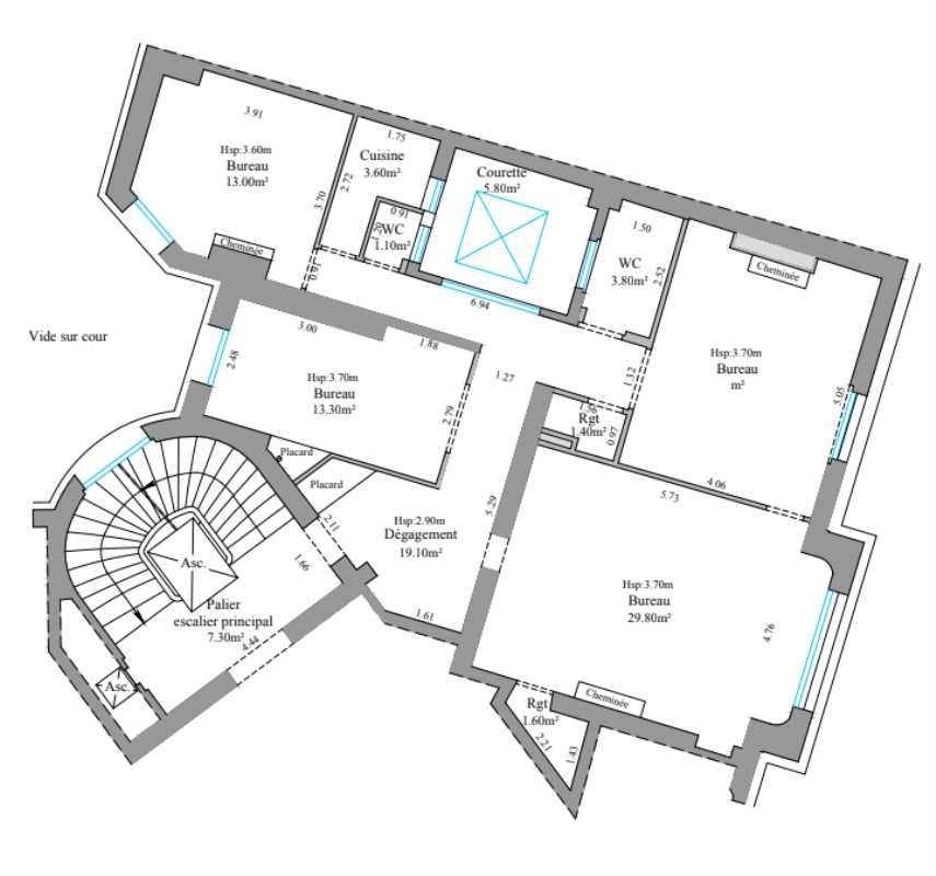
Wellstone vous propose à la location un plateau en parquet, moulures et cheminée de très grand standing et climatisé. L'immeuble extrêmement bien localisé et d'excellent standing donne sur l'entrée du Parc Monceau. Le lot est en parfait état et bénéficie d'un plan efficace et d'une hauteur sous plafond de 3.70 mètres.
Impôt Foncier : 19 €/m²/an
Régime Fiscal : C.R.L. (2,5%)
Dépôt de garantie : 3 mois de loyer HT/HC
Honoraires : A la charge du preneur.
Taxe Bureau : 25,77 €/m²/an
Information sur le Bail :
Taxe balayage 2023 : 1 euros/m²
Prestations :
Accessibilité:
Metro Villiers (3, 2)
Metro Monceau (2)
Les informations sur les risques auxquels ce bien est exposé sont disponibles sur le site Géorisques : www.georisques.gouv.fr
| Étage | Type | Surfaces | Dispo | Loyer | Charges | Type de bailRév. annuelle |
|---|---|---|---|---|---|---|
| 2 | Bureaux | 114 | 1er trimestre 2025 | 730 m²/an HT HC | 54 m²/an HT | 3-6-9 ansILAT |
Impôt Foncier : 19 €/m²/an
Régime Fiscal : C.R.L. (2,5%)
Dépôt de garantie : 3 mois de loyer HT/HC
Honoraires : A la charge du preneur.
Taxe Bureau : 25,77 €/m²/an
Information sur le Bail :
Taxe balayage 2023 : 1 euros/m²
Prestations :
- Parties communes de très bon standing
- Locaux en parfait état
- Surface organisée en 1 accueil, 4 bureaux cloisonnés dont 1 très grand, 1 kitchenette
- Deux bureaux donnent sur l'entrée végétalisée et calme du Parc Monceau (avenue Velasquez)
- Très belle hauteur sous plafond : 3.70 m
- Parquet, moulures, cheminées
- Câblage
- Chauffage central
- Contrôle d'accès
- Fibre optique
Accessibilité:
Metro Villiers (3, 2)
Metro Monceau (2)
Les informations sur les risques auxquels ce bien est exposé sont disponibles sur le site Géorisques : www.georisques.gouv.fr
Voir plus
Afficher les consommations énergétiques
Localisation et transport aux alentours
Favoris
Exporter
Appeler
Contacter
Signaler cette annonce










