Créée en mai 2012, Wellstone est une société de conseil en immobilier d'entreprise qui accompagne ses clients propriétaires, investisseurs et utilisateurs dans leurs différents projets immobiliers ...
En savoir plus

613 m² divisible dès 299 m²
HT HC
Location bureau - 613 m²
Paris 8 (75008)
Dernière mise à jour : Il y a 2 mois
A proximité immédiate de la place Saint Augustin et de la gare Saint Lazare, Wellstone vous propose à la location, dans un bel immeuble de style Art Déco, 2 plateaux de 300m² chacun en excellent état d'usage. Ces bureaux pouvant s'aménager à la fois en espaces ouverts ou en bureaux cloisonnés conviendront parfaitement à toutes activités liées aux conseils ou à la finance.
Impôt Foncier : 31,47 €/m²/an
Régime Fiscal : T.V.A.
Dépôt de garantie : 3 mois de loyer HT/HC
Honoraires : A la charge du preneur.
Taxe Bureau : 25,77 €/m²/an
Information sur le Bail :
Loyer réserve : 350 euros/m²/an HT HC
Prestations :
Accessibilité:
Metro Miromesnil (9, 13)
Les informations sur les risques auxquels ce bien est exposé sont disponibles sur le site Géorisques : www.georisques.gouv.fr
| Étage | Type | Surfaces | Dispo | Loyer | Charges | Type de bailRév. annuelle |
|---|---|---|---|---|---|---|
| 3 | Bureaux | 299 | 1er janvier 2026 | 650 m²/an HT HC | 93,64 m²/an HT | 3-6-9 ansILAT |
| 1 | Bureaux | 314 | Immédiate | 620 m²/an HT HC | 79,61 m²/an HT | 3-6-9 ansILAT |
| 1SS | Archives | 57,35 | Immédiate | 3-6-9 ansILAT | ||
| SS | Parkings | Immédiate | 2680 place/an HT HC | 3-6-9 ansILAT |
Impôt Foncier : 31,47 €/m²/an
Régime Fiscal : T.V.A.
Dépôt de garantie : 3 mois de loyer HT/HC
Honoraires : A la charge du preneur.
Taxe Bureau : 25,77 €/m²/an
Information sur le Bail :
Loyer réserve : 350 euros/m²/an HT HC
Prestations :
- Parties communes de bon standing
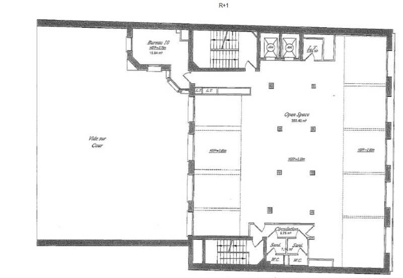
- 1er étage :
- Surface organisée en espace ouvert et 1 bureau
- 3ème étage :
- Surface organisée en espace ouvert, 2 bureaux et une cuisine aménagée
- Climatisation
- Faux plancher technique
Accessibilité:
Metro Miromesnil (9, 13)
Les informations sur les risques auxquels ce bien est exposé sont disponibles sur le site Géorisques : www.georisques.gouv.fr
Voir plus
Afficher les consommations énergétiques
Localisation et transport aux alentours
Favoris
Exporter
Appeler
Contacter
Signaler cette annonce
