Créée en mai 2012, Wellstone est une société de conseil en immobilier d'entreprise qui accompagne ses clients propriétaires, investisseurs et utilisateurs dans leurs différents projets immobiliers ...
En savoir plus

440 m²
HT HC
Location bureau - 440 m²
Paris 18 (75018)
Dernière mise à jour : Il y a 2 jours
Au pied du Sacré-Coeur, Wellstone vous propose un plateau entièrement rénové il y a 2 ans. Ces bureaux traversants extrêmement lumineux avec une vue imprenable sur le Sacré Coeur vous plairont par leur efficacité, modernité et leur charme.
Ce plateau conviendra à toute entreprise dans la tech, le conseil ou encore la communication.
A visiter sans tarder !
Impôt Foncier : 19,74 €/m²/an
Régime Fiscal : T.V.A.
Dépôt de garantie : 3 mois de loyer HT/HC
Honoraires : A la charge du preneur.
Taxe Bureau : 21,7 €/m²/an
Information sur le Bail :
Sous-location totale ou partielle possible
Prestations :
Accessibilité:
Metro Anvers (2)
Metro Barbès-Rochechouart (2,4)
Les informations sur les risques auxquels ce bien est exposé sont disponibles sur le site Géorisques : www.georisques.gouv.fr
Ce plateau conviendra à toute entreprise dans la tech, le conseil ou encore la communication.
A visiter sans tarder !
| Étage | Type | Surfaces | Dispo | Loyer | Charges | Type de bailRév. annuelle |
|---|---|---|---|---|---|---|
| 5 | Bureaux | 440 | Immédiate | 858 m²/an HT HC | 55,6 m²/an HT | 3-6-9 ansILAT |
Impôt Foncier : 19,74 €/m²/an
Régime Fiscal : T.V.A.
Dépôt de garantie : 3 mois de loyer HT/HC
Honoraires : A la charge du preneur.
Taxe Bureau : 21,7 €/m²/an
Information sur le Bail :
Sous-location totale ou partielle possible
Prestations :
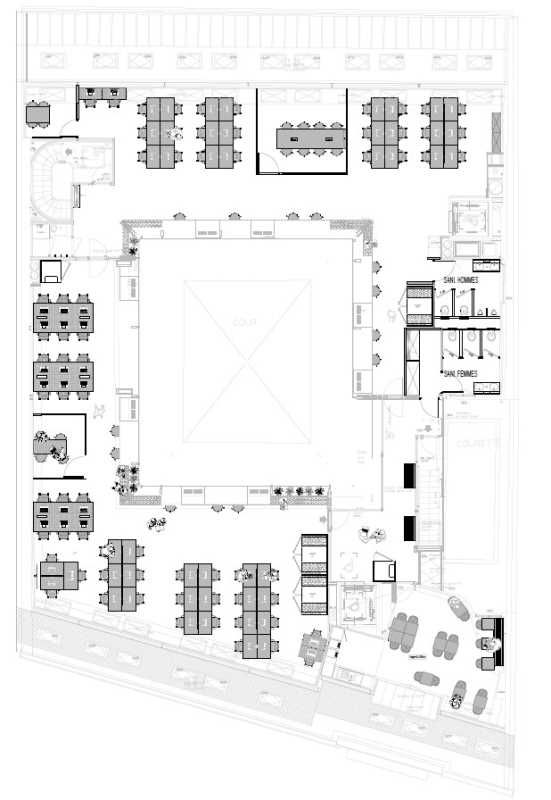
- Immeuble style industriel en très bon état
- Parties communes de très bon standing, avec accès sécurisé
- Surface en excellent état, récemment rénovée, organisée en :
- 1 accueil
- 4 open spaces
- 3 salles de réunion
- 1 cuisine équipée avec balcon
- sanitaires + douches
- Climatisation réversible
- Câblage/fibre optique
- Ascenseur
- Très grande flexibilité d'aménagement
- Possibilité de conserver le mobilier
- Très belle luminosité
- Vue imprenable sur le Sacré Coeur et les toits de Paris.
Accessibilité:
Metro Anvers (2)
Metro Barbès-Rochechouart (2,4)
Les informations sur les risques auxquels ce bien est exposé sont disponibles sur le site Géorisques : www.georisques.gouv.fr
Voir plus
Afficher les consommations énergétiques
Localisation et transport aux alentours
Favoris
Exporter
Appeler
Contacter
Signaler cette annonce
