BNP Paribas Real Estate, N°1 de la transaction en immobilier d''entreprise en France, vous propose un accompagnement de qualité pour l''acquisition, la vente ou la location d''un bien immobilier.Vo ...
En savoir plus

1 248 m²
HT HC
Location bureau - 1248 m²
Paris 16 (75016)
Dernière mise à jour : Hier
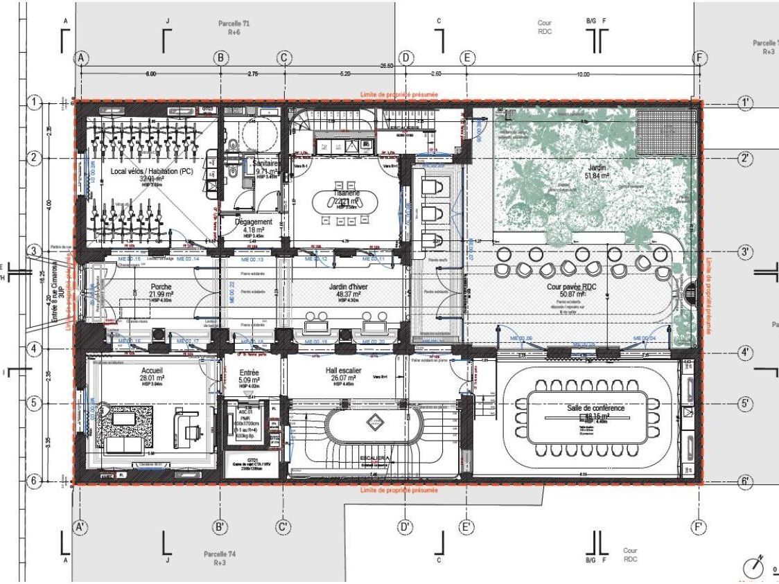
Quartier Central des Affaires, Paris 16ème , entre l'avenue Kléber et la place Victor Hugo, nous vous proposons à la location cet Hôtel particulier "pierre de taille" construit à la fin XIXème siècle par l'architecte Jacques Hermant. Il fait l'objet aujourd'hui d'une restructuration menée par le Studio Vincent Eschalier,.une restructuration haut de gamme comprenant des matériaux nobles, une cour intérieure privative ainsi qu'une terrasse aménagée et végétalisée en R+3. La livraison de l'immeuble est prévue en mars 2026. 1 248 m² (SDP) à usage de bureaux, Capacitaire : 200 personnes
LOCATION DE BUREAUX PARIS 16
IMMEUBLE INDEPENDANT
Quartier Central des Affaires
Paris 16ème
entre l'avenue Kléber et la place Victor Hugo
Hôtel particulier "pierre de taille" construit à la fin XIXème siècle par l'architecte Jacques Hermant en cours de restructuration menée par le Studio Vincent Eschalier,.une restructuration haut de gamme comprenant des matériaux nobles, une cour intérieure privative paysagée ainsi qu'une terrasse aménagée et végétalisée en R+3.
- 1 248 m² (SDP) à usage de BUREAUX A LOUER
- capacitaire (code du travail) : 200 personnes
- Grande modularité
- Certification BREEAM RFO niveau excellent
- Escalier monumental
- Ascenseur
- Parquets et moulures
- Larges fenêtres
- Grande hauteur sous plafond
- Chaud et froid ventilo-convecteurs en allège
- Climatisation 3 tubes
- Parquet chêne type Versailles et lame
- Récupération des eaux de pluie
- GBT et CTA en sous-sol
DISPONIBILITE : mars 2026
Disponibilité: ImmédiateHonoraires: Nous consulter. à la signature du bail
| Fiche technique du bien | |
|---|---|
| Métro | M6 BOISSIERE |
| RER | A CHARLES DE GAULLE ETOILE |
| Bus | 22.30.82 |
| Accès Pers. Mobilité Réduite | Oui |
| Immeuble | Hôtel particulier |
| Etat de l'immeuble | Restructuré avec PC pour T1 2026 |
| Etat des locaux | Restructuré avec PC |
| Parking(s) | Local vélos au RDC |
| Immeuble indépendant | Oui |
| Gestion technique centralisée | Oui |
| Ascenseur(s) | 1 |
| Hall d'accueil | Indépendant |
| Aménagement des bureaux | Cloisonnés/Ouverts |
| Hauteur sous-plafond | entre 3,73 m et 4,10 m selon les niveaux |
| Sol bureaux | Parquet en chêne |
| Autre élément bureau | Espaces patrimoniaux conservés |
Voir plus
Afficher les consommations énergétiques
Localisation et transport aux alentours
Favoris
Exporter
Appeler
Contacter
Signaler cette annonce










