Conseil en immobilier d'entreprise, Cushman & Wakefield est un acteur incontournable au rayonnement international. Cushman & Wakefield offre des solutions dans toutes les étapes que comporte un p ...
En savoir plus

122 m²
HT HC
Location bureau - 122 m²
Paris 16 (75016)
Dernière mise à jour : Il y a 3 jours
À LOUER - Bureaux avec cour végétalisée - 3 rue Copernic, Paris 16e
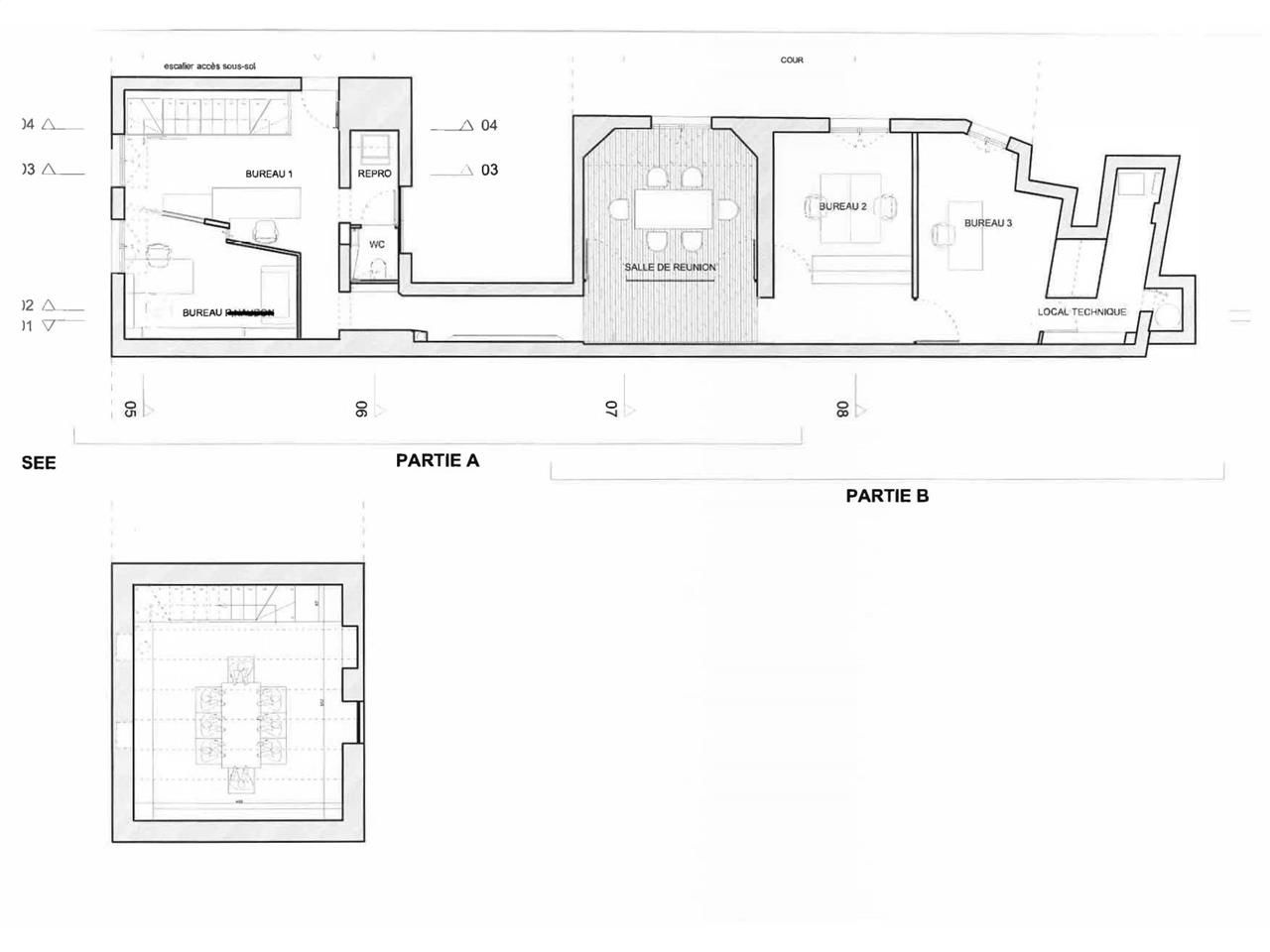
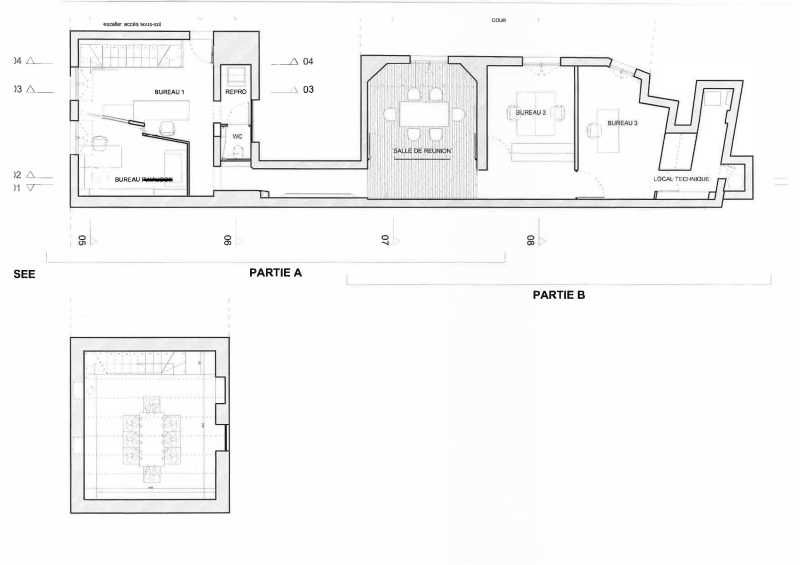
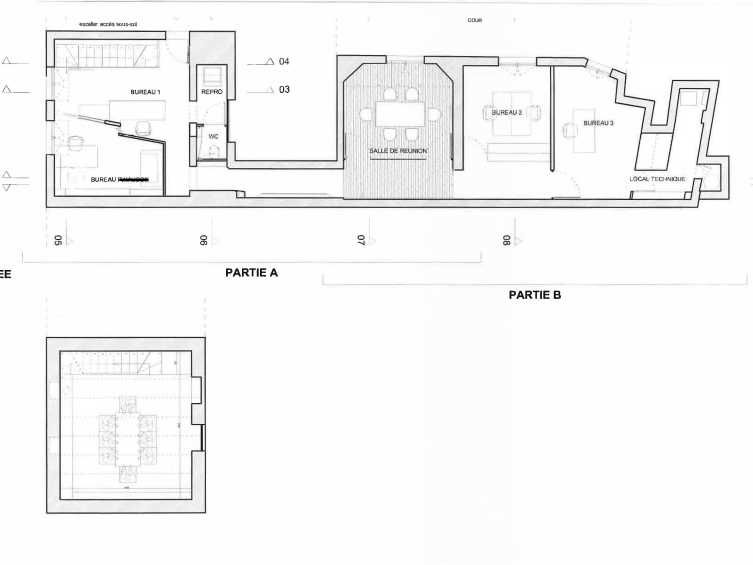
Idéalement situé au coeur du 16e arrondissement, découvrez un bel espace de bureaux en rez-de-chaussée en très bon état offrant un cadre de travail moderne et chaleureux.
- Organisation des espaces :
Un espace d'accueil fonctionnel
3 bureaux lumineux
1 salle de réunion
1 espace reprographie
1 espace complémentaire avec cuisine équipée.
- Un cadre privilégié : cour intérieure accessible, végétalisée, apportant calme et convivialité au quotidien.
- Flexibilité locative : bureaux disponibles en bail professionnel.
Une opportunité rare d'installer vos équipes dans un espace clé en main, alliant modernité, confort et localisation prestigieuse dans le 16e arrondissement.
Contactez-nous dès maintenant pour organiser une visite.
Régime Fiscal : T.V.A.
Dépôt de garantie : 3 mois de loyer HT/HC
Honoraires : à la charge du preneur
Information sur le Bail :
Bail professionnel
Prestations :
Accessibilité:
Métro Boissière (6)
Métro Victor Hugo (Ligne 2)
RER Charles De Gaulle-Etoile (Rer A)
Bus Lignes 22-30-82
Les informations sur les risques auxquels ce bien est exposé sont disponibles sur le site Géorisques : www.georisques.gouv.fr
Idéalement situé au coeur du 16e arrondissement, découvrez un bel espace de bureaux en rez-de-chaussée en très bon état offrant un cadre de travail moderne et chaleureux.
- Organisation des espaces :
Un espace d'accueil fonctionnel
3 bureaux lumineux
1 salle de réunion
1 espace reprographie
1 espace complémentaire avec cuisine équipée.
- Un cadre privilégié : cour intérieure accessible, végétalisée, apportant calme et convivialité au quotidien.
- Flexibilité locative : bureaux disponibles en bail professionnel.
Une opportunité rare d'installer vos équipes dans un espace clé en main, alliant modernité, confort et localisation prestigieuse dans le 16e arrondissement.
Contactez-nous dès maintenant pour organiser une visite.
| Étage | Type | Surfaces | Dispo | Loyer | Charges | Type de bailRév. annuelle |
|---|---|---|---|---|---|---|
| RdC | Bureaux | 122 | 610 HT/HC/m²/an | civilSur l'indice ILAT |
Régime Fiscal : T.V.A.
Dépôt de garantie : 3 mois de loyer HT/HC
Honoraires : à la charge du preneur
Information sur le Bail :
Bail professionnel
Prestations :
- Immeuble mixte de standing
- Belles parties communes
- Gardienne pour assurer la sécurité et l'entretien
- Un bel espace accueil - 3 bureaux cloisonnés - une salle de réunion - un espace cuisine - 2 sanitaires
- La surface est entièrement câblée et il est possible d'avoir le mobilier
- Idéal pour toutes activités libérales
- Mobilier intégré
- Deux entrées dans la surface
- Local reprographie
- Baie de brassage
- Espace cuisine + salle déjeuner au sous-sol
- Surface RDC : 122 m²
Accessibilité:
Métro Boissière (6)
Métro Victor Hugo (Ligne 2)
RER Charles De Gaulle-Etoile (Rer A)
Bus Lignes 22-30-82
Les informations sur les risques auxquels ce bien est exposé sont disponibles sur le site Géorisques : www.georisques.gouv.fr
Voir plus
Afficher les consommations énergétiques
Localisation et transport aux alentours
- Boissière276m (4min à pied)6
- Kléber335m (5min à pied)6
- Iéna526m (8min à pied)9
Favoris
Exporter
Appeler
Contacter
Signaler cette annonce










