Nous sommes Immprove, une grande équipe de plus de 200 experts en immobilier d’entreprise, implantés localement avec plus de 20 agences sur tout le territoire.Depuis 2009, notre proximité, notre ét ...
En savoir plus

1 380 m² divisible dès 230 m²
HT HC
Location bureau - 1380 m²
Paris 16 (75016)
Dernière mise à jour : Il y a 10 jours
Loocaux lumineux PMR Paris 16
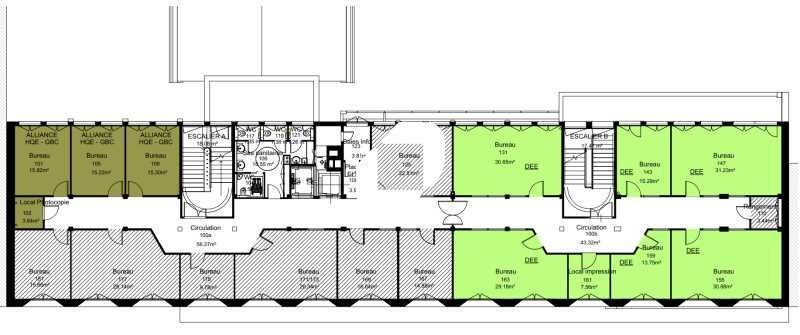
A proximité de la Maison de la Radio, Immprove vous propose à la location deux plateaux d'environ 575 m² au 2ème et au 4ème étages ainsi que des bureaux de 230m² environ au 1er étage. Les locaux sont PMR et disposent de la climatisation. Ils sont traversants. Possibilité de décloisonner. Les charges comprennent les coûts de fonctionnement de l'immeuble, impôts, taxes et assurance immeuble. Grand rooftop vue Tour Eiffel accessible à tous les locataires.
Impôt Foncier : 25 €/
Régime Fiscal : T.V.A. (20%)
Dépôt de garantie : 3 mois de loyer HT HC
Honoraires : 15% du loyer annuel HT HC
Taxe Bureau : 25,77 €/m²/an
Prestations :
Accessibilité:
RER Avenue du Président Kennedy (C)
RER Boulainvilliers (C)
RER Javel (C)
Metro Jasmin, Ranelagh (9)
Metro Javel André Citroën (10)
Metro La Muette (9)
Metro Mirabeau (10)
Les informations sur les risques auxquels ce bien est exposé sont disponibles sur le site Géorisques : www.georisques.gouv.fr
A proximité de la Maison de la Radio, Immprove vous propose à la location deux plateaux d'environ 575 m² au 2ème et au 4ème étages ainsi que des bureaux de 230m² environ au 1er étage. Les locaux sont PMR et disposent de la climatisation. Ils sont traversants. Possibilité de décloisonner. Les charges comprennent les coûts de fonctionnement de l'immeuble, impôts, taxes et assurance immeuble. Grand rooftop vue Tour Eiffel accessible à tous les locataires.
| Étage | Type | Surfaces | Dispo | Loyer | Charges | Type de bailRév. annuelle |
|---|---|---|---|---|---|---|
| 4 | Bureaux | 575 | Immédiate | 480 m²/an HT HC | 81,33 m²/an HT | Bail commercial 3-6-9 ou Bail Dérogatoireselon l'indice des loyers des activités tertiaires (ILAT) |
| 2 | Bureaux | 575 | 1er mai 2025 | 480 m²/an HT HC | 81,33 m²/an HT | Bail commercial 3-6-9 ou Bail Dérogatoireselon l'indice des loyers des activités tertiaires (ILAT) |
| 1 | Bureaux | 230 | Immédiate | 480 m²/an HT HC | 81,33 m²/an HT | Bail commercial 3-6-9 ou Bail Dérogatoireselon l'indice des loyers des activités tertiaires (ILAT) |
| Parkings | Immédiate | 1815 place/an HT HC | Bail commercial 3-6-9 ou Bail Dérogatoireselon l'indice des loyers des activités tertiaires (ILAT) |
Impôt Foncier : 25 €/
Régime Fiscal : T.V.A. (20%)
Dépôt de garantie : 3 mois de loyer HT HC
Honoraires : 15% du loyer annuel HT HC
Taxe Bureau : 25,77 €/m²/an
Prestations :
- Immeuble de bureaux moderne
- Contrôle d'accès
- Hôtesse d'accueil
- Accès P.M.R.
- 2 Ascenseurs
- Chauffage immeuble
- Fibre optique
- Climatisation
- Bureaux cloisonnés
- Locaux traversants
- Décloisonnement possible
- Locaux rationnels et modulables
- Terrasse commune
- Salle de réunion
- Faux plafonds
- Moquette
- Cuisine
- Sanitaires privatifs
Accessibilité:
RER Avenue du Président Kennedy (C)
RER Boulainvilliers (C)
RER Javel (C)
Metro Jasmin, Ranelagh (9)
Metro Javel André Citroën (10)
Metro La Muette (9)
Metro Mirabeau (10)
Les informations sur les risques auxquels ce bien est exposé sont disponibles sur le site Géorisques : www.georisques.gouv.fr
Voir plus
Afficher les consommations énergétiques
Localisation et transport aux alentours
- Boulainvilliers502m (8min à pied)C
- Ranelagh532m (8min à pied)9
Favoris
Exporter
Appeler
Contacter
Signaler cette annonce
