Besoin d'un conseil en immobilier ? Nous sommes une équipe dédiée à 100% à nos clients utilisateurs avec des services variés (stratégie immobilière, recherche immobilière, renégociation de bail, dé ...
En savoir plus



5 299 m² divisible dès 983 m²
HT HC
TOUR DE LYON - Location bureau - 5299 m²
Paris 12 (75012)
Dernière mise à jour : Il y a 2 mois
A louer: 5 299 m² de bureaux à Paris 12ème
Immeuble TOUR DE LYON
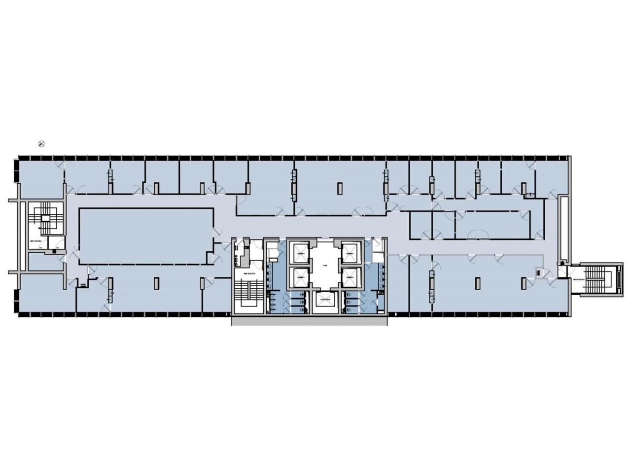
Savills vous propose à la location 4 plateaux de bureaux rénovés de 1 079 m² et un plateau de 983 m² au pied de la Gare de Lyon dans le 12ème arrondissement de Paris.
La Tour de Lyon se situe dans un quartier très dynamique et bénéficie d'une localisation idéale très bien desservie par les transports en commun.
Les plateaux sont fonctionnels, lumineux et rénovés dans un immeuble de services comprenant : hôtesse d'accueil, salles de réunions ainsi qu'un espace de restauration.
Disponibilité : immédiate
Impôt Foncier : 30 €/HT-HC/m²/an
Régime Fiscal : T.V.A.
Dépôt de garantie : 3 mois de loyer HT HC
Honoraires : 15% HT du loyer annuel HT HC à la charge du preneur
Taxe Bureau : 21,7 €/m²/an
Information sur le Bail :
Taxe parkings : 2,92 euros Taxe additionnelle sur les parkings : 4,98 euros
Prestations :
Accessibilité:
Métro Gare de Lyon (1, 14), Quai de la Rapée (5)
RER Gare de Lyon (E), Paris Austerlitz souterrain (C), Paris Gare de Lyon souterrain (A)
Bus PONT D'AUSTERLITZ - QUAI DE LA RAPEE (24), VAN GOGH (24, 63), GARE DE LYON - DIDEROT (29, 57, 61, 91, BALABUS), GARE DE LYON - VAN GOGH (20, 65, 87)
Train Paris Gare de Lyon (SNCF), Paris Gare de Lyon souterrain (H, T4)
Les informations sur les risques auxquels ce bien est exposé sont disponibles sur le site Géorisques : www.georisques.gouv.fr
Immeuble TOUR DE LYON
Savills vous propose à la location 4 plateaux de bureaux rénovés de 1 079 m² et un plateau de 983 m² au pied de la Gare de Lyon dans le 12ème arrondissement de Paris.
La Tour de Lyon se situe dans un quartier très dynamique et bénéficie d'une localisation idéale très bien desservie par les transports en commun.
Les plateaux sont fonctionnels, lumineux et rénovés dans un immeuble de services comprenant : hôtesse d'accueil, salles de réunions ainsi qu'un espace de restauration.
Disponibilité : immédiate
| Étage | Type | Surfaces | Dispo | Loyer | Charges | Type de bailRév. annuelle |
|---|---|---|---|---|---|---|
| 11 | Bureaux | 1079 | Immédiate | 500 HT/HC/m²/an | 106 m²/an HT | 3-6-9 ansILAT Indice des Loyers des Activités Tertiaires |
| 10 | Bureaux | 1079 | Immédiate | 500 HT/HC/m²/an | 106 m²/an HT | 3-6-9 ansILAT Indice des Loyers des Activités Tertiaires |
| 8 | Bureaux | 1079 | Immédiate | 500 HT/HC/m²/an | 106 m²/an HT | 3-6-9 ansILAT Indice des Loyers des Activités Tertiaires |
| 7 | Bureaux | 1079 | Immédiate | 500 HT/HC/m²/an | 106 m²/an HT | 3-6-9 ansILAT Indice des Loyers des Activités Tertiaires |
| 2 | Bureaux | 983 | Immédiate | 450 HT/HC/m²/an | 106 m²/an HT | 3-6-9 ansILAT Indice des Loyers des Activités Tertiaires |
| Parkings | Immédiate | 1500 HT/HC/U/an | 3-6-9 ansILAT Indice des Loyers des Activités Tertiaires |
Impôt Foncier : 30 €/HT-HC/m²/an
Régime Fiscal : T.V.A.
Dépôt de garantie : 3 mois de loyer HT HC
Honoraires : 15% HT du loyer annuel HT HC à la charge du preneur
Taxe Bureau : 21,7 €/m²/an
Information sur le Bail :
Taxe parkings : 2,92 euros Taxe additionnelle sur les parkings : 4,98 euros
Prestations :
- Immeuble de bureaux au pied de le Gare de Lyon
- Hall totalement rénové
- Hôtesse d'accueil
- PC Sécurité 24/24
- Building Manager sur site
- Salles de réunion mutualisées
- Réflexion en cours concernant la réalisation d'un espace polyvalent de restauration et de travail de type coworking
- Parking privatif en sous-sol
- R+7 : rénové
- R+8 : rénové
- R+10 et R+11 : en bon état
- Double exposition
- Emplacements de stationnement dans le
- sous-sol de la tour
Accessibilité:
Métro Gare de Lyon (1, 14), Quai de la Rapée (5)
RER Gare de Lyon (E), Paris Austerlitz souterrain (C), Paris Gare de Lyon souterrain (A)
Bus PONT D'AUSTERLITZ - QUAI DE LA RAPEE (24), VAN GOGH (24, 63), GARE DE LYON - DIDEROT (29, 57, 61, 91, BALABUS), GARE DE LYON - VAN GOGH (20, 65, 87)
Train Paris Gare de Lyon (SNCF), Paris Gare de Lyon souterrain (H, T4)
Les informations sur les risques auxquels ce bien est exposé sont disponibles sur le site Géorisques : www.georisques.gouv.fr
Emplacement(s) de Parking: 43 en sous-sol
Voir plus
Afficher les consommations énergétiques
Localisation et transport aux alentours
- Gare de Lyon298m (4min à pied)114AD
- Paris-Gare de Lyon516m (8min à pied)R
Favoris
Exporter
Appeler
Contacter
Signaler cette annonce
