BNP Paribas Real Estate, N°1 de la transaction en immobilier d''entreprise en France, vous propose un accompagnement de qualité pour l''acquisition, la vente ou la location d''un bien immobilier.Vo ...
En savoir plus

2 967 m²
Loyer sur demande
Location bureau - 2967 m²
Paris 11 (75011)
Dernière mise à jour : Il y a 3 jours
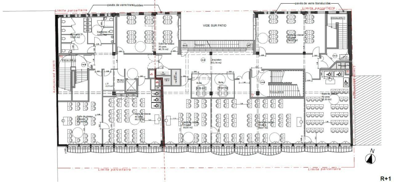
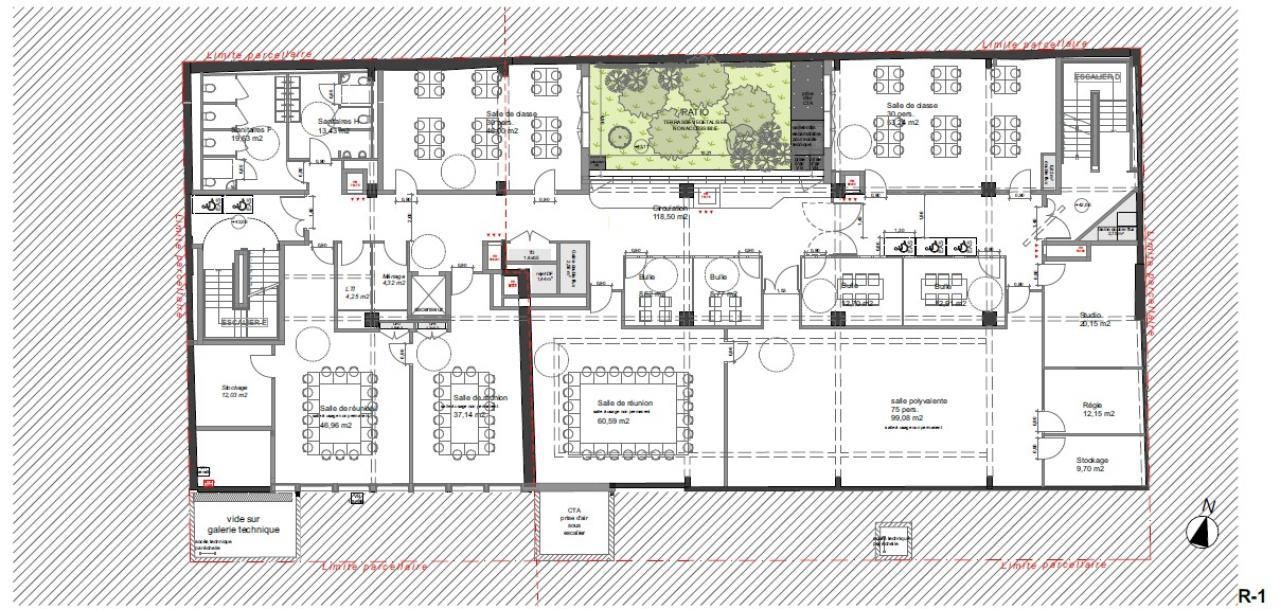
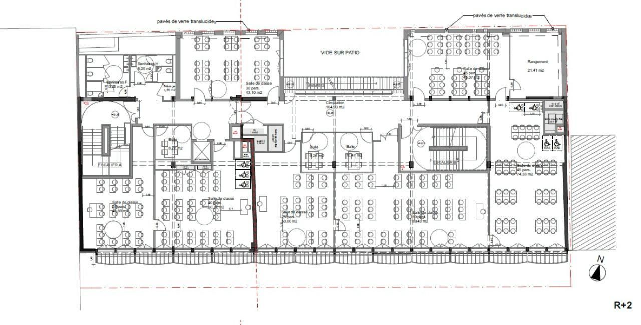
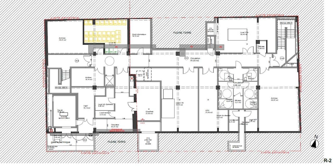
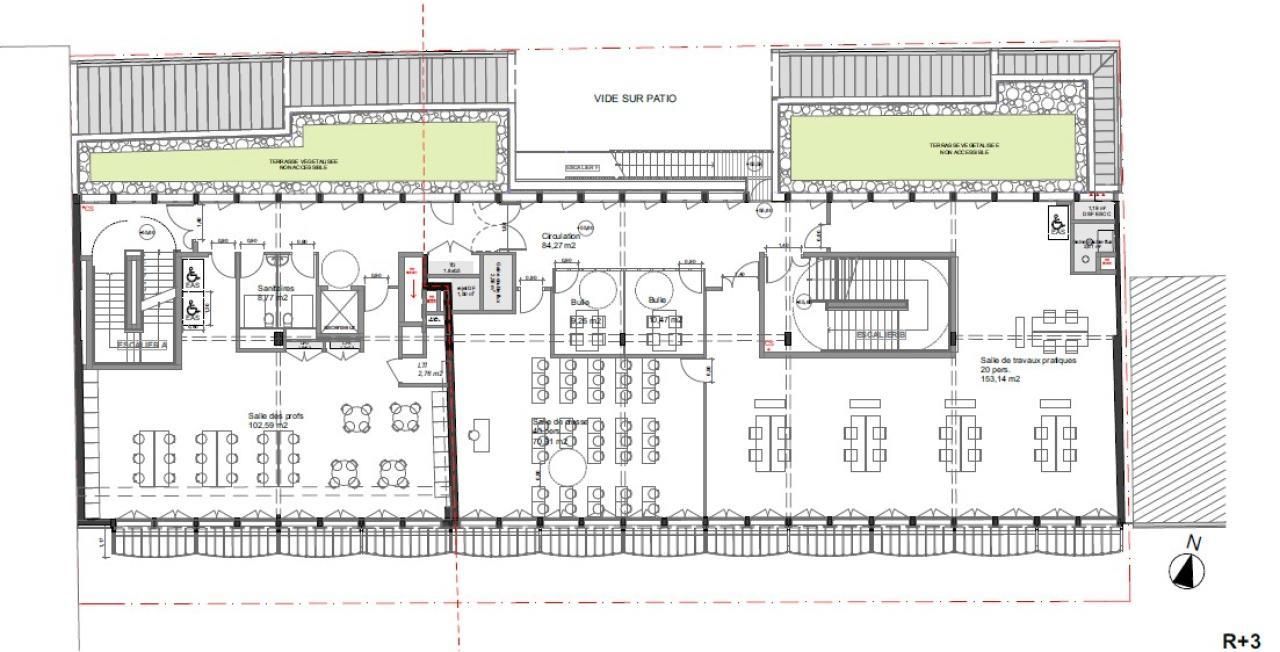
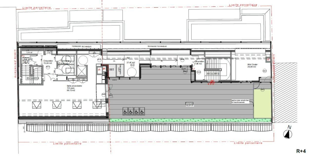
Immeuble indépendant EICSP d'env 3500 m² qui va faire l'objet d'une restructuration. Classement ERP2 / Type R Capacitaire : 920 personnes
Immeuble situé au pied du métro "Rue des Boulets" (ligne 9), connexion directe avec Place de la Nation (RER A, lignes de métro 1/2/6).
Projet de réhabilitation d'un immeuble indépendant d'une surface totale d'env 3500 m².
Très belle terrasse au 4ème étage.
Etage courant d'env 600 m², plateau traversant.
Surfaces rationnelles et lumineuses
Disponibilité: 01/06/2027
Honoraires: Nous consulter. à la signature du bail
| Fiche technique du bien | |
|---|---|
| Métro | Lignes 1, 2, 6, 9 / Station Nation |
| RER | A Station Nation |
| Etat de l'immeuble | Restructuré avec PC |
| Immeuble indépendant | Oui |
| Type chauffage | Individuel |
| Climatisation | Réversible |
| Ascenseur(s) | Oui |
| Hall d'accueil | Oui |
| Fenêtres | Oui |
| Faux plafond | Oui |
| Eclairage Bureaux | Luminaires encastrés |
| Sanitaire(s) | Oui |
Afficher les consommations énergétiques
Favoris
Exporter
Appeler
Contacter
Signaler cette annonce
