Size Real Estate est une société de conseil en immobilier d’entreprise. Nous vous accompagnons dans tous vos projets immobiliers à Paris ou en première couronne. De la recherche de bureaux à la loc ...
En savoir plus

273 m²
HT HC
Location bureau - 273 m²
Paris 1 (75001)
Dernière mise à jour : Il y a 2 jours
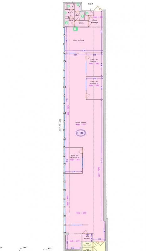
Bureaux à louer de 273m2
En plein coeur de la rue Saint-Honoré, SIZE Real Estate vous propose une surface de bureaux à la location.
Les bureaux, d'une superficie de 273 m², ont été récemment rénovés.
Ils bénéficient de la climatisation, d'un plan sans contraintes porteuses et sont organisés en mixte open space / salles de réunion.
Locaux livrés meublés et équipés si besoin.
Disponible immédiatement.
Contact : Benjamin Bonfils 06.68.38.11.22
Construction : Immeuble de bon standing
Bâtiment traversant
État de l'immeuble : Bon état
Parking intérieur : 32
Date (dernière mise à jour) : 2025-10-06
Bail : Commercial 3 6 9
Honoraires / Location: 15 % HT du loyer annuel HT HC À la charge du preneur
Commentaires: Primes d'assurance 2025 : 0,27 EUR/m2/an HT ;
Provision de travaux d'entretien courant 2025 : 13,20 EUR/m2/an HT ;
Prestations :
- Immeuble de bon standing
- Bâtiment traversant
-
- Parties communes rénovées
- Visiophone / Digicode / Interphone
- Gardien
- Bel hall d'accueil
- 3 ascenseurs
- Fibre optique / ORANGE
-
- État des locaux : Bon état
- Bureaux lumineux
- Excellente flexibilité / Peu de contraintes porteuses
- Belle hauteur sous plafond
- Câblage informatique cat. 6
- Baie de brassage
- Chauffage électrique individuel
- Climatisation double flux
- Nombreuses fenêtres
Tableau de Surfaces :
Conditions juridiques et financères :
Charges : 1960.413
Accessibilité :
Métro : Tuileries (1) à 180 m, Palais Royal (1) à 300 m, Opéra (3, 7, 8) à 650 m
RER : Musée d'Orsay (C) à 800 m
Bus : 21, 27, 72, 68, 95
Vélib' : en face de l'immeuble
En plein coeur de la rue Saint-Honoré, SIZE Real Estate vous propose une surface de bureaux à la location.
Les bureaux, d'une superficie de 273 m², ont été récemment rénovés.
Ils bénéficient de la climatisation, d'un plan sans contraintes porteuses et sont organisés en mixte open space / salles de réunion.
Locaux livrés meublés et équipés si besoin.
Disponible immédiatement.
Contact : Benjamin Bonfils 06.68.38.11.22
Construction : Immeuble de bon standing
Bâtiment traversant
État de l'immeuble : Bon état
Parking intérieur : 32
Date (dernière mise à jour) : 2025-10-06
Bail : Commercial 3 6 9
Honoraires / Location: 15 % HT du loyer annuel HT HC À la charge du preneur
Commentaires: Primes d'assurance 2025 : 0,27 EUR/m2/an HT ;
Provision de travaux d'entretien courant 2025 : 13,20 EUR/m2/an HT ;
Prestations :
- Immeuble de bon standing
- Bâtiment traversant
-
- Parties communes rénovées
- Visiophone / Digicode / Interphone
- Gardien
- Bel hall d'accueil
- 3 ascenseurs
- Fibre optique / ORANGE
-
- État des locaux : Bon état
- Bureaux lumineux
- Excellente flexibilité / Peu de contraintes porteuses
- Belle hauteur sous plafond
- Câblage informatique cat. 6
- Baie de brassage
- Chauffage électrique individuel
- Climatisation double flux
- Nombreuses fenêtres
Tableau de Surfaces :
| Etage | Type de bien | Surface | Dispo | |
| 3 | Bureaux | 273 m² | Immédiate |
Conditions juridiques et financères :
Charges : 1960.413
Accessibilité :
Métro : Tuileries (1) à 180 m, Palais Royal (1) à 300 m, Opéra (3, 7, 8) à 650 m
RER : Musée d'Orsay (C) à 800 m
Bus : 21, 27, 72, 68, 95
Vélib' : en face de l'immeuble
32 parking(s) extérieur
Voir plus
Afficher les consommations énergétiques
Localisation et transport aux alentours
Favoris
Exporter
Appeler
Contacter
Signaler cette annonce
