Nous sommes Immprove, une grande équipe de plus de 200 experts en immobilier d’entreprise, implantés localement avec plus de 20 agences sur tout le territoire.Depuis 2009, notre proximité, notre ét ...
En savoir plus

83 m²
HT HC
Location bureau - 83 m²
Paris 9 (75009)
Dernière mise à jour : Il y a 3 jours
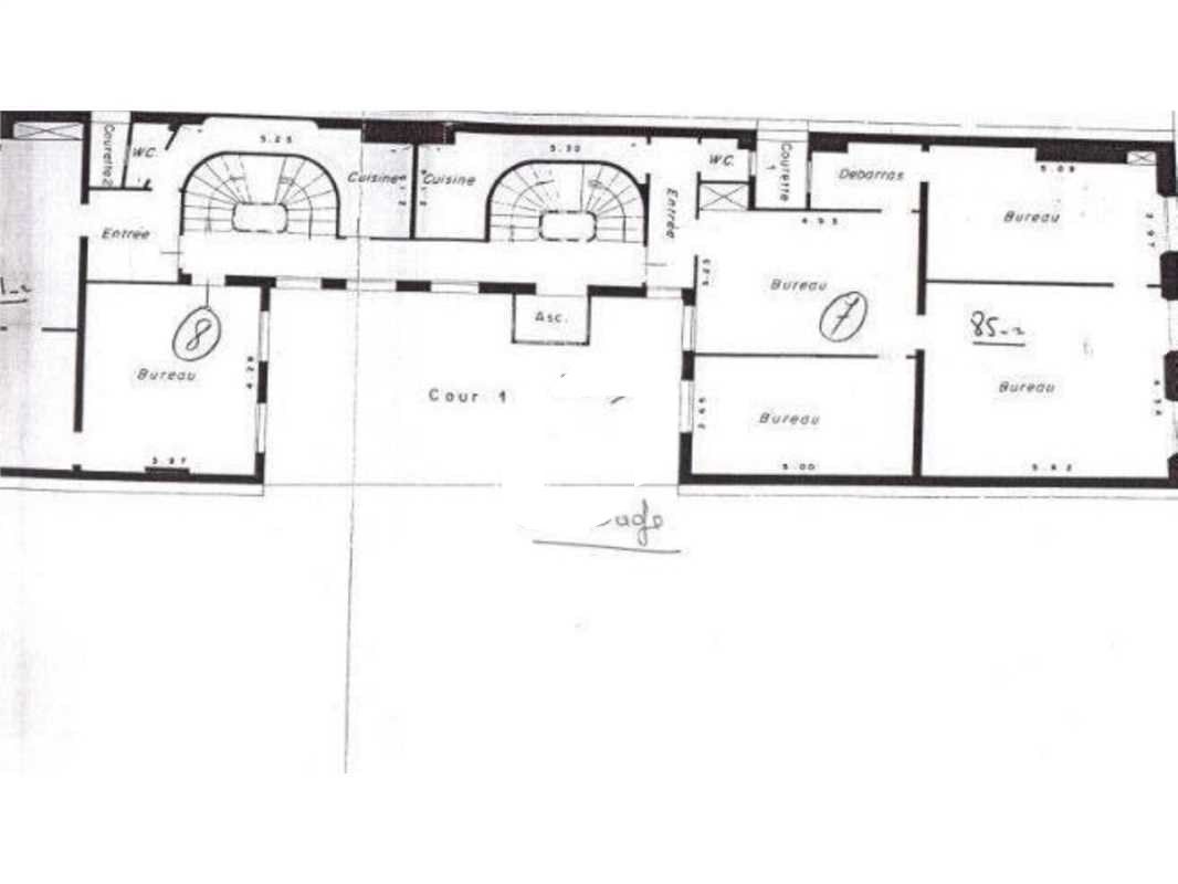
A proximité immédiate du métro Richelieu-Drouot, IMMPROVE vous propose une surface de bureaux d'environ 84 m² à la location en bail commercial 3/6/9 ans.
Cette surface se compose deux trois bureaux, un open space, une kitchenette et des sanitaires privatifs. Elle se situe au 3ème étage avec ascenseur.
Impôt Foncier : 29,34 €/m²/ an HT
Régime Fiscal : T.V.A. (20%)
Dépôt de garantie : 3 mois de loyer HT HC
Honoraires : 30% HT du loyer annuel HT HC à la charge du preneur
Prestations :
Accessibilité:
Bus Pigalle (30), Cadet (26, 43), Trinité (N01), Carrefour de Châteaudun (32, 45), Provence - Drouot (74, 85), Chaussée d'Antin (68), Opéra (21, 66, ROISSYBUS), Rochechouart - Martyrs (54, N02), Opéra - Rue Halevy (52), Richelieu - Drouot (20, 39, N16, N15), Opéra - 4 Septembre (27, 95), Richelieu - 4 Septembre (29), Le Peletier (40)
SNCF Haussmann-St-Lazare (Gare SNCF)
Métro Notre-Dame-de-Lorette (12), Grands Boulevards (8), Pigalle (2), Richelieu - Drouot (9), Bourse (3), Le Peletier (7)
RER Haussmann Saint-Lazare (E), Auber (A)
Transilien Gare de l'Est (TER), Gare du Nord (TER), Paris Gare du Nord (TER), Paris Saint-Lazare (TER)
Les informations sur les risques auxquels ce bien est exposé sont disponibles sur le site Géorisques : www.georisques.gouv.fr
Cette surface se compose deux trois bureaux, un open space, une kitchenette et des sanitaires privatifs. Elle se situe au 3ème étage avec ascenseur.
| Étage | Type | Surfaces | Dispo | Loyer | Charges | Type de bailRév. annuelle |
|---|---|---|---|---|---|---|
| 3 | Bureaux | 83 | Février 2026 | 560 m²/an HT HC | 38,74 m²/an HT | Bail Commercial 3-6-9 ansselon l'indice des loyers des activités tertiaires (ILAT) |
Impôt Foncier : 29,34 €/m²/ an HT
Régime Fiscal : T.V.A. (20%)
Dépôt de garantie : 3 mois de loyer HT HC
Honoraires : 30% HT du loyer annuel HT HC à la charge du preneur
Prestations :
- Immeuble ancien
- Façade en pierres de taille
- Parties communes de bon standing
- Ascenseur
- Digicode
- Chauffage collectif urbain
- Fibre optique
- Locaux aménagés en :
- 2 open space
- 1 bureau cloisonné
- 1 salle de réunion
- Moulures et cheminées
- Sol PVC
- Goulottes périphériques
- Cuisine
Accessibilité:
Bus Pigalle (30), Cadet (26, 43), Trinité (N01), Carrefour de Châteaudun (32, 45), Provence - Drouot (74, 85), Chaussée d'Antin (68), Opéra (21, 66, ROISSYBUS), Rochechouart - Martyrs (54, N02), Opéra - Rue Halevy (52), Richelieu - Drouot (20, 39, N16, N15), Opéra - 4 Septembre (27, 95), Richelieu - 4 Septembre (29), Le Peletier (40)
SNCF Haussmann-St-Lazare (Gare SNCF)
Métro Notre-Dame-de-Lorette (12), Grands Boulevards (8), Pigalle (2), Richelieu - Drouot (9), Bourse (3), Le Peletier (7)
RER Haussmann Saint-Lazare (E), Auber (A)
Transilien Gare de l'Est (TER), Gare du Nord (TER), Paris Gare du Nord (TER), Paris Saint-Lazare (TER)
Les informations sur les risques auxquels ce bien est exposé sont disponibles sur le site Géorisques : www.georisques.gouv.fr
Voir plus
Afficher les consommations énergétiques
Favoris
Exporter
Appeler
Contacter
Signaler cette annonce
