Size Real Estate est une société de conseil en immobilier d’entreprise. Nous vous accompagnons dans tous vos projets immobiliers à Paris ou en première couronne. De la recherche de bureaux à la loc ...
En savoir plus

315 m²
HT HC
Location bureau - 315 m²
Paris 11 (75011)
Dernière mise à jour : Il y a 2 jours
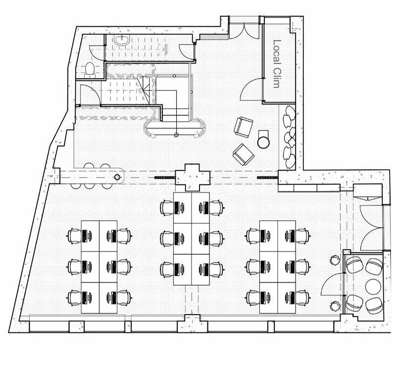
Bureaux à louer de 315m2
En plein coeur du 11ème arrondissement de Paris et à proximité de la Place de la Bastille, SIZE Real Estate vous propose une surface de bureaux à la location en triplex. Les bureaux peuvent être loués aussi bien en bail commercial qu'en prestation de services.
Surface prévue pour 32 à 36 postes.
Disponible au 01/01/2026.
Construction :
État de l'immeuble : Bon état
Date (dernière mise à jour) : 2025-10-23
Bail : Contrat de prestations de services
Honoraires / Location: À la charge du preneur
Commentaires: Loyer mensuel de 15.500EUR HT, comprenant mobilier, électricité, internet, ménage, charges, ...
Tout inclus
Prestations :
- RDC + 1er étage + Sous-sol
-
- Capacité : environ 36 postes
- Salles de réunion : 3 au RDC et 1er étage, 3 supplémentaires au sous-sol
- Le sous-sol comprend : Une grande agora / salle de présentation, une cuisine équipée, une douche, 3 WC, Un local technique
- Climatisation
- Fibre
- Alarme
- Contrôle d'accès par badge
- Casiers individuels
- Local vélos
Tableau de Surfaces :
Accessibilité :
Métro :
- Richard Lenoir : Ligne 5
- Chemin Vert : Ligne 8
- Voltaire : Ligne 9
- Bastille : Lignes 1, 5 et 8
En plein coeur du 11ème arrondissement de Paris et à proximité de la Place de la Bastille, SIZE Real Estate vous propose une surface de bureaux à la location en triplex. Les bureaux peuvent être loués aussi bien en bail commercial qu'en prestation de services.
Surface prévue pour 32 à 36 postes.
Disponible au 01/01/2026.
Construction :
État de l'immeuble : Bon état
Date (dernière mise à jour) : 2025-10-23
Bail : Contrat de prestations de services
Honoraires / Location: À la charge du preneur
Commentaires: Loyer mensuel de 15.500EUR HT, comprenant mobilier, électricité, internet, ménage, charges, ...
Tout inclus
Prestations :
- RDC + 1er étage + Sous-sol
-
- Capacité : environ 36 postes
- Salles de réunion : 3 au RDC et 1er étage, 3 supplémentaires au sous-sol
- Le sous-sol comprend : Une grande agora / salle de présentation, une cuisine équipée, une douche, 3 WC, Un local technique
- Climatisation
- Fibre
- Alarme
- Contrôle d'accès par badge
- Casiers individuels
- Local vélos
Tableau de Surfaces :
| Etage | Type de bien | Surface | Dispo | |
| RDC - 1er - Sous-sol | Bureaux | 315 m² | 01/01/2026 |
Accessibilité :
Métro :
- Richard Lenoir : Ligne 5
- Chemin Vert : Ligne 8
- Voltaire : Ligne 9
- Bastille : Lignes 1, 5 et 8
Voir plus
Afficher les consommations énergétiques
Localisation et transport aux alentours
Favoris
Exporter
Appeler
Contacter
Signaler cette annonce
