BNP Paribas Real Estate, N°1 de la transaction en immobilier d''entreprise en France, vous propose un accompagnement de qualité pour l''acquisition, la vente ou la location d''un bien immobilier.Vo ...
En savoir plus

3 297 m² divisible dès 192 m²
HT HC
Location bureau - 3297 m²
Paris 9 (75009)
Dernière mise à jour : Il y a 30 jours
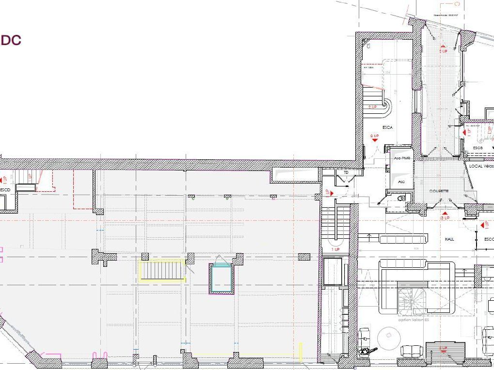
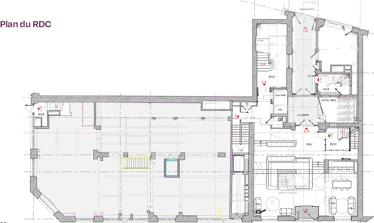
Au coeur du 9ème arrondissement, au pied du métro Le Peletier, au 22 rue de Provence, nous vous proposons ce bel immeuble traversant entre la rue Le Peletier, la rue Chauchat et la rue de Provence. Il développe une superficie de bureaux d'environ 3 280 m² répartis du rez-de-chaussée au 7ème étage . Un projet de restructuration ambitieux est en cours, visant la réunion de 3 batiments aux styles architecturaux distincts dont un immeuble Art Déco au cachet unique.
- Paris 9ème
- Immeuble indépendant
- 3 280 m² de bureaux restructurés
- Capacitaire sécuritaire : 400 personnes
- Disponibilité : Mars 2025
- Double accès au bureau (19 rue Chauchat et 32 rue Le Peletier)
- Accès PMR
- 2 ascenseurs dont un PMR
- Climatisation, CTA, ventilation naturelle
- CPCU et Fraicheur de Paris
- Vestiaires/douches
- Local vélos de 44 m² au R-1
- Terrasse au R+7
- Terrasse au R+8 de 150 m² (effectif 50 personnes)
- Labels et certifications visés : décret tertiaire 2040, Breeam Excellent, WiredScore Gold, Osmoz
Honoraires: Nous consulter. à la signature du bail
| Fiche technique du bien | |
|---|---|
| Métro | M7 Le Peletier au pied de l'immeuble |
| Métro | M12 Notre Dame de Lorette 3 min |
| Métro | M8 Richelieu Drouot 3 min |
| RER | A Auber par la ligne 8 du métro |
| Bus | Oui |
| Gare | Saint Lazare |
| Accès Pers. Mobilité Réduite | Oui |
| Etat de l'immeuble | Restructuré avec PC |
| Immeuble indépendant | au style Art Déco |
| Type chauffage | Individuel |
| Climatisation | Oui |
| Accueil | Hall traversant Rue Le Peletier Rue Chauchat |
| Sécurité | Contrôle d'accès |
| Ascenseur(s) | 2 dont 1 PMR |
| Hall d'accueil | Indépendant |
| Linéaire de façade | 60,00 mètre(s) sur rue |
| Aménagement des bureaux | Espaces Ouverts |
| Hauteur sous-plafond | 3,50 |
| Eclairage Bureaux | Luminaires encastrés |
| Orientation façade | RUE & COUR |
Voir plus
Afficher les consommations énergétiques
Localisation et transport aux alentours
Favoris
Exporter
Appeler
Contacter
Signaler cette annonce










