Conseil en immobilier d'entreprise, Cushman & Wakefield est un acteur incontournable au rayonnement international. Cushman & Wakefield offre des solutions dans toutes les étapes que comporte un p ...
En savoir plus

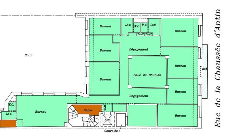
259 m² divisible dès 29 m²
HT HC
Location bureau - 259 m²
Paris 9 (75009)
Dernière mise à jour : Il y a 1 mois
À la recherche de bureaux à louer à Paris ? Ne cherchez plus !
CW vous propose une opportunité unique avec ces 230 m² non divisibles, idéalement situés pour accueillir votre entreprise.
Ces espaces modernes et lumineux offrent un environnement de travail optimal pour booster la productivité de vos équipes.
Ne manquez pas cette occasion de vous installer dans un emplacement stratégique au coeur de la capitale.
Contactez-nous dès maintenant pour plus d'informations et pour organiser une visite.
Impôt Foncier : 27,08 €//m²/an
Régime Fiscal : T.V.A.
Honoraires : à la charge du preneur
Taxe Bureau : 23,42 €/m²/an
Prestations :
Accessibilité:
Métro Havre-Caumartin (lignes 3-9)
Métro Trinité-d'Estienne d'Orves (ligne 12)
RER Auber (RER A)
Bus Lignes 26-68-81
velib 79 rue de la Victoire
Les informations sur les risques auxquels ce bien est exposé sont disponibles sur le site Géorisques : www.georisques.gouv.fr
CW vous propose une opportunité unique avec ces 230 m² non divisibles, idéalement situés pour accueillir votre entreprise.
Ces espaces modernes et lumineux offrent un environnement de travail optimal pour booster la productivité de vos équipes.
Ne manquez pas cette occasion de vous installer dans un emplacement stratégique au coeur de la capitale.
Contactez-nous dès maintenant pour plus d'informations et pour organiser une visite.
| Étage | Type | Surfaces | Dispo | Loyer | Charges | Type de bailRév. annuelle |
|---|---|---|---|---|---|---|
| R+2 | Bureaux | 230 | 730 HT/HC/m²/an | 68 HT/m²/an | 3-6-9 ansSur l'indice ILAT | |
| RdC | Bureaux | 29 | 550 HT/HC/m²/an | 68 HT/m²/an | 3-6-9 ansSur l'indice ILAT |
Impôt Foncier : 27,08 €//m²/an
Régime Fiscal : T.V.A.
Honoraires : à la charge du preneur
Taxe Bureau : 23,42 €/m²/an
Prestations :
- Immeuble de standing bénéficiant d'une double adresse
- Parties communes en très bon état
- Accès sécurisé (digicode/interphone)
- Palier privatif (côté chaussée d'Antin)
- Double batterie d'ascenseurs
- Fibre optique
- Belle cour arborée
- Parking Indigo Paris Passage du Havre
- Locaux traversants
- Locaux livrés décloisonnés
- Reprise des peintures
- Aucune contrainte porteuse
- Cuisine
- Climatisation
- Archives
- Surface RDC : 29 m²
Accessibilité:
Métro Havre-Caumartin (lignes 3-9)
Métro Trinité-d'Estienne d'Orves (ligne 12)
RER Auber (RER A)
Bus Lignes 26-68-81
velib 79 rue de la Victoire
Les informations sur les risques auxquels ce bien est exposé sont disponibles sur le site Géorisques : www.georisques.gouv.fr
5 Parking(s) intérieur(s) 29
Voir plus
Afficher les consommations énergétiques
Localisation et transport aux alentours
Favoris
Exporter
Appeler
Contacter
Signaler cette annonce










