Créée en mai 2012, Wellstone est une société de conseil en immobilier d'entreprise qui accompagne ses clients propriétaires, investisseurs et utilisateurs dans leurs différents projets immobiliers ...
En savoir plus

107 m²
HT HC
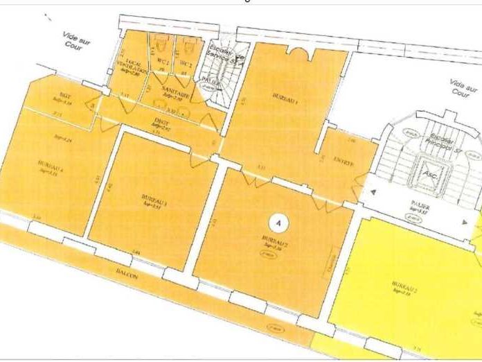
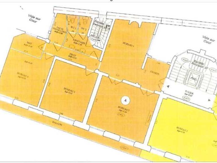
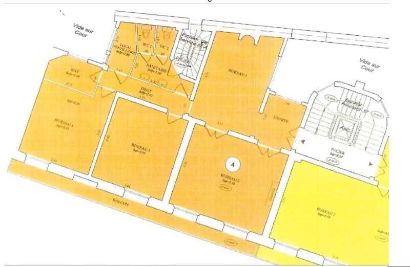
Location bureau - 107 m²
Paris 9 (75009)
Dernière mise à jour : Il y a 2 jours
A quelques pas de la gare Saint-Lazare, Wellstone vous propose à la location 96 m² de bureaux dans un bel immeuble haussmannien. Ces bureaux conviendront parfaitement entre autres à toutes activités dites libérales ou liées aux conseils. Le standing de l'immeuble, le balcon filant et le charme de l'ancien sont autant d'atouts qui vous séduiront dès la première visite.
Impôt Foncier : 9,32 €/m²/an
Régime Fiscal : T.V.A.
Dépôt de garantie : 3 mois de loyer HT/HC
Honoraires : A la charge du preneur.
Prestations :
Accessibilité:
Metro Trinité (12)
Metro Saint-Lazare (3,12,13,14)
Les informations sur les risques auxquels ce bien est exposé sont disponibles sur le site Géorisques : www.georisques.gouv.fr
| Étage | Type | Surfaces | Dispo | Loyer | Charges | Type de bailRév. annuelle |
|---|---|---|---|---|---|---|
| 2 | Bureaux | 107,4 | Immédiate | 580 m²/an HT HC | 47,5 m²/an HT | 3-6-9 ansILAT |
Impôt Foncier : 9,32 €/m²/an
Régime Fiscal : T.V.A.
Dépôt de garantie : 3 mois de loyer HT/HC
Honoraires : A la charge du preneur.
Prestations :
- Parties communes de bon standing
- Locaux en très bon état
- Surface organisée en 1 accueil, 3 bureaux cloisonnés, 1 salle de réunion et 1 kitchenette
- Parquet, moulures, cheminées
- Climatisation
- Balcon filant
Accessibilité:
Metro Trinité (12)
Metro Saint-Lazare (3,12,13,14)
Les informations sur les risques auxquels ce bien est exposé sont disponibles sur le site Géorisques : www.georisques.gouv.fr
Voir plus
Afficher les consommations énergétiques
Localisation et transport aux alentours
Favoris
Exporter
Appeler
Contacter
Signaler cette annonce










