BNP Paribas Real Estate, N°1 de la transaction en immobilier d''entreprise en France, vous propose un accompagnement de qualité pour l''acquisition, la vente ou la location d''un bien immobilier.Vo ...
En savoir plus

2 821 m²
Loyer sur demande
Location bureau - 2821 m²
Paris 8 (75008)
Dernière mise à jour : Il y a 2 jours
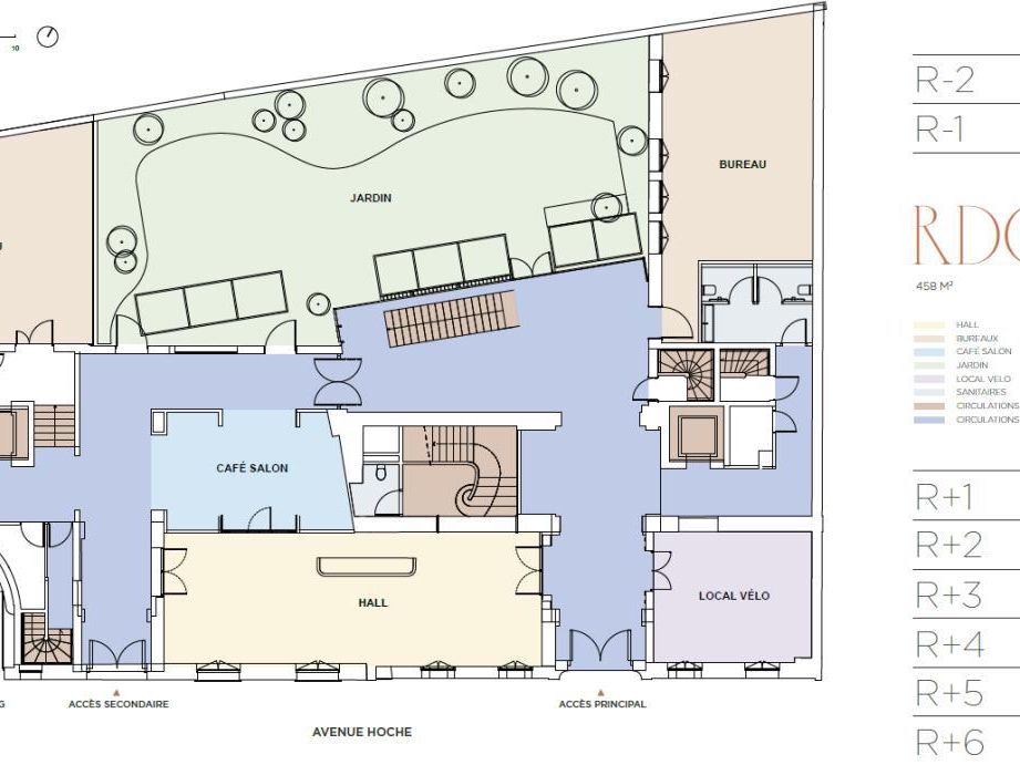
A proximité immédiate de la Place de l'Etoile et du Parc Monceau, nous vous proposons à la location un magnifique hôtel particulier disposant de 2 821 m² de bureaux. Bureaux lumineux, salle de réception prestigieuse au 1er étage, cour privative, terrasses et balcons. L'ensemble fera l'objet d'une nouvelle rénovation pour une livraison prévisionnelle au T1 2027.
QUARTIER CENTRAL DES AFFAIRES
LOCATION DE BUREAUX PARIS ETOILE
IMMEUBLE INDEPENDANT
2 821 m2 SURFACE DE BUREAUX
environ 500 m2 SURFACE DES PLATEAUX
4 ESPACES EXTERIEURS
123 m2 SURFACE VEGETALISEE
80 m2 SURFACE DU ROOFTOP
320 personnes CAPACITAIRE
19 PLACES DE PARKING
16 EMPLACEMENTS POUR VELOS
Livraison rénové : au T1 2027
Disponibilité: 31/03/2027Honoraires: Nous consulter. à la signature du bail
| Fiche technique du bien | |
|---|---|
| Métro | M12 "Mairie d'Issy" |
| RER | A |
| Bus | 123-190-290 |
| Desserte routière | Quai de Seine, BP |
| Aéroport | Héliport d'Issy |
| Gare | Oui |
| Accès Pers. Mobilité Réduite | Oui |
| Label actuel | Breeam |
| Immeuble | Hôtel particulier Haussmannien |
| Etat de l'immeuble | Récent |
| Parking(s) | 22 Places |
| Immeuble indépendant | Oui |
| Climatisation | Air rafraîchi |
| Accueil | Hôtesses |
| Sécurité | Contrôle d'accès |
| Ascenseur(s) | 3 |
| Faux plancher | Oui |
| Faux plafond | Oui |
| Hauteur sous-plafond | 2,60 mètre(s) entre 2,63 et 3,10 m |
| Autre élément bureau | Entrée principale 20Hoche, secondaire au 20 bis |
| Orientation façade | SUR RUE |
Voir plus
Afficher les consommations énergétiques
Localisation et transport aux alentours
Favoris
Exporter
Appeler
Contacter
Signaler cette annonce










