Conseil en immobilier d'entreprise, Cushman & Wakefield est un acteur incontournable au rayonnement international. Cushman & Wakefield offre des solutions dans toutes les étapes que comporte un p ...
En savoir plus

57 m²
HT HC
Location bureau - 57 m²
Paris 2 (75002)
Dernière mise à jour : Il y a 3 jours
Bureaux à louer rue Volney
Cushman & Wakefield vous propose deux plateaux de bureaux situés dans un immeuble de standing, en plein coeur de Paris, à proximité de l'Opéra et de la place Vendôme. Cet emplacement stratégique offre une excellente accessibilité et un cadre de travail prestigieux.
Au 1er étage, un espace entièrement rénové se compose de deux open spaces, d'une kitchenette et de la climatisation, garantissant un confort optimal pour vos équipes.
Au 3e étage, un plateau en bon état offre un cadre lumineux et fonctionnel avec trois open spaces, un bureau cloisonné, une cuisine équipée, une kitchenette et de nombreux rangements. Ce niveau se distingue par son balcon filant et ses nombreuses fenêtres, apportant une belle luminosité et un cadre de travail agréable.
Une opportunité idéale pour une entreprise recherchant des bureaux flexibles et bien situés.
Contactez-nous dès maintenant pour organiser une visite.
Régime Fiscal : T.V.A.
Honoraires : à la charge du preneur
Information sur le Bail :
Charges + Taxe foncière annuelle : 6 800 euros
Prestations :
Accessibilité:
Métro Opéra (lignes 3, 7, 8)
Métro Madeleine (lignes (8, 12, 14)
RER Auber (RER A)
Bus Lignes 20-21-27-32-42-45-52-66-68-95
Les informations sur les risques auxquels ce bien est exposé sont disponibles sur le site Géorisques : www.georisques.gouv.fr
Cushman & Wakefield vous propose deux plateaux de bureaux situés dans un immeuble de standing, en plein coeur de Paris, à proximité de l'Opéra et de la place Vendôme. Cet emplacement stratégique offre une excellente accessibilité et un cadre de travail prestigieux.
Au 1er étage, un espace entièrement rénové se compose de deux open spaces, d'une kitchenette et de la climatisation, garantissant un confort optimal pour vos équipes.
Au 3e étage, un plateau en bon état offre un cadre lumineux et fonctionnel avec trois open spaces, un bureau cloisonné, une cuisine équipée, une kitchenette et de nombreux rangements. Ce niveau se distingue par son balcon filant et ses nombreuses fenêtres, apportant une belle luminosité et un cadre de travail agréable.
Une opportunité idéale pour une entreprise recherchant des bureaux flexibles et bien situés.
Contactez-nous dès maintenant pour organiser une visite.
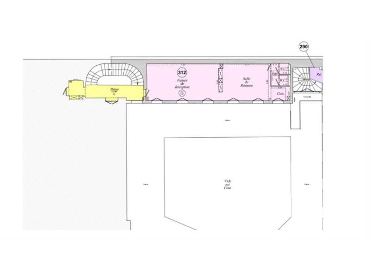
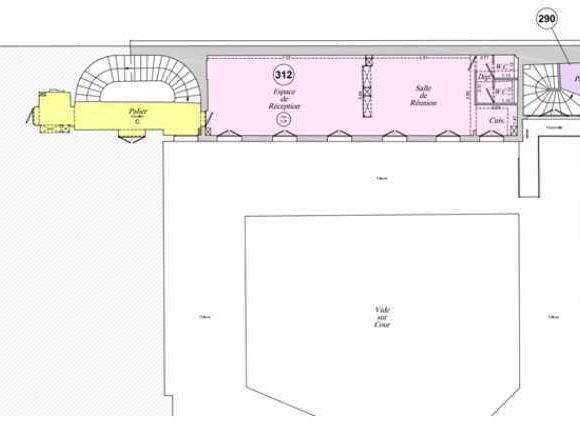
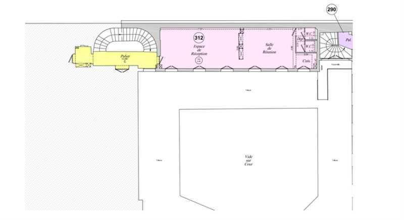
| Étage | Type | Surfaces | Dispo | Loyer | Charges | Type de bailRév. annuelle |
|---|---|---|---|---|---|---|
| 1 | Bureaux | 57 | 650 HT/HC/m²/an | 70 HT/m²/an | 3-6-9 ansSur l'indice ILAT |
Régime Fiscal : T.V.A.
Honoraires : à la charge du preneur
Information sur le Bail :
Charges + Taxe foncière annuelle : 6 800 euros
Prestations :
- Immeuble Haussmannien de standing
- Cour végétalisée
- Parties communes entièrement rénovées
- Contrôle d'accès
- Gardien
- Hôtesse d'accueil
- Ascenseur
- Chauffage central
- Fibre optique
- Surface rénovée
- Deux open spaces
- Deux sanitaires
- Kitchenette
- Climatisation
Accessibilité:
Métro Opéra (lignes 3, 7, 8)
Métro Madeleine (lignes (8, 12, 14)
RER Auber (RER A)
Bus Lignes 20-21-27-32-42-45-52-66-68-95
Les informations sur les risques auxquels ce bien est exposé sont disponibles sur le site Géorisques : www.georisques.gouv.fr
Voir plus
Afficher les consommations énergétiques
Localisation et transport aux alentours
- Opéra224m (3min à pied)378
- Auber302m (5min à pied)A
- Havre Caumartin441m (7min à pied)39
- Chaussée d'Antin La Fayette449m (7min à pied)79
- Madeleine546m (8min à pied)81214
Favoris
Exporter
Appeler
Contacter
Signaler cette annonce










