Besoin d'un conseil en immobilier ? Nous sommes une équipe dédiée à 100% à nos clients utilisateurs avec des services variés (stratégie immobilière, recherche immobilière, renégociation de bail, dé ...
En savoir plus

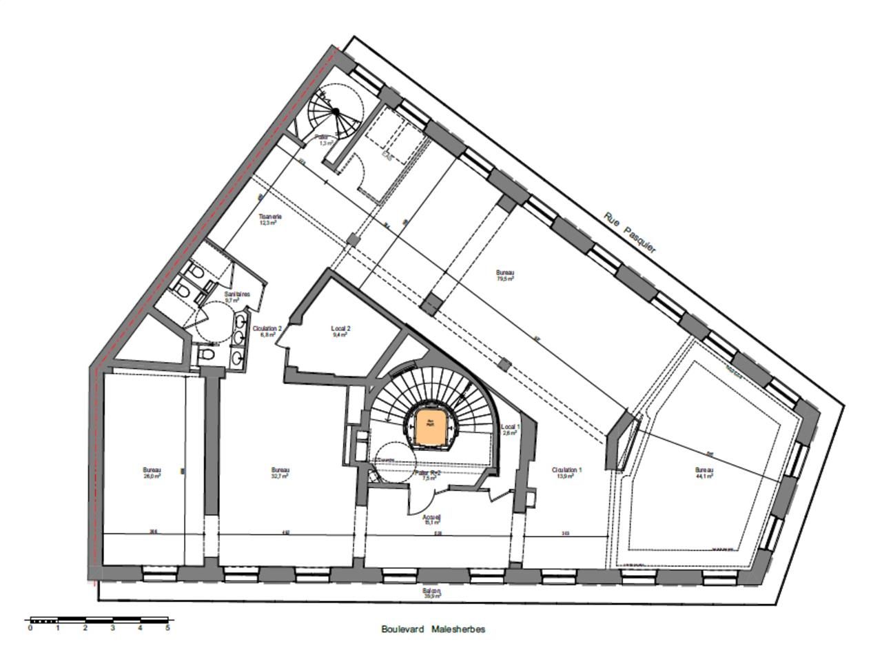
822 m² divisible dès 270 m²
HT HC
Location bureau - 822 m²
Paris 8 (75008)
Dernière mise à jour : Il y a 2 mois
A louer : 821 m² (divisibles à partir de 270 m²) à Paris 8, face à la Madeleine
Savills vous propose à la location 821 m² de bureaux, divisibles à partir de 270 m², idéalement situé à face à la Madeleine.
Au sein d'un immeuble haussmannien d'angle prestigieux, découvrez des espaces communs et privatifs entièrement rénovés et climatisés.
Les plateaux fonctionnent en espaces ouverts et disposent d'une bonne flexibilité d'aménagement.
Disponibilité : septembre 2025
Contactez-nous vite pour organiser une visite !
Régime Fiscal : T.V.A.
Dépôt de garantie : 3 mois de loyer HT HC
Honoraires : A la charge du preneur.
Taxe Bureau : 25,77 €/m²/an
Information sur le Bail :
Assurances / m² : 1,9 euros
Prestations :
Accessibilité:
Bus MADELEINE (24, 42, 52, 94), ANJOU - CHAUVEAU LAGARDE (84)
Métro Madeleine (12, 14, 8), Havre-Caumartin (3), Saint-Augustin (9)
RER Auber (A)
Train Haussmann Saint-Lazare (E), Paris Saint-Lazare (J, L)
Les informations sur les risques auxquels ce bien est exposé sont disponibles sur le site Géorisques : www.georisques.gouv.fr
Savills vous propose à la location 821 m² de bureaux, divisibles à partir de 270 m², idéalement situé à face à la Madeleine.
Au sein d'un immeuble haussmannien d'angle prestigieux, découvrez des espaces communs et privatifs entièrement rénovés et climatisés.
Les plateaux fonctionnent en espaces ouverts et disposent d'une bonne flexibilité d'aménagement.
Disponibilité : septembre 2025
Contactez-nous vite pour organiser une visite !
| Étage | Type | Surfaces | Dispo | Loyer | Charges | Type de bailRév. annuelle |
|---|---|---|---|---|---|---|
| 3 | Bureaux | 273,6 | 01/01/2026 | 950 m²/an/HT-HC | 67,9 m²/an HT | 3-6-9 ansILAT Indice des Loyers des Activités Tertiaires |
| 2 | Bureaux | 275,6 | 01/01/2026 | 950 m²/an/HT-HC | 67,9 m²/an HT | 3-6-9 ansILAT Indice des Loyers des Activités Tertiaires |
| 1 | Bureaux | 272,4 | 01/01/2026 | 900 m²/an/HT-HC | 67,9 m²/an HT | 3-6-9 ansILAT Indice des Loyers des Activités Tertiaires |
Régime Fiscal : T.V.A.
Dépôt de garantie : 3 mois de loyer HT HC
Honoraires : A la charge du preneur.
Taxe Bureau : 25,77 €/m²/an
Information sur le Bail :
Assurances / m² : 1,9 euros
Prestations :
- Immeuble Haussmannien restructuré
- Façade ravalé
- Parties communes rénovées et d'excellent standing
- Bureaux prestigieux idéalement situés face à la place de la Madeleine
- Accès sécurisé : Interphone - Digicode
- Ascenseur neuf
- Rénovation lourde des espaces privatifs et communs avec un niveau de finition haut de gamme
- Bureaux d'angle lumineux pour un environnement de travail agréable
- Faux plafond moderne en aluminium
- Faux plancher technique
- Moquette
- Climatisation réversible neuve
- Goulottes périphériques et pré câblage
- Plateau ouverts sans contraintes porteuses pour une flexibilité maximale
- Belle hauteur sous plafond (environ 3 mètres)
- Balcon filant au 2ème étage sur les 3 façades
Accessibilité:
Bus MADELEINE (24, 42, 52, 94), ANJOU - CHAUVEAU LAGARDE (84)
Métro Madeleine (12, 14, 8), Havre-Caumartin (3), Saint-Augustin (9)
RER Auber (A)
Train Haussmann Saint-Lazare (E), Paris Saint-Lazare (J, L)
Les informations sur les risques auxquels ce bien est exposé sont disponibles sur le site Géorisques : www.georisques.gouv.fr
Voir plus
Afficher les consommations énergétiques
Localisation et transport aux alentours
- Madeleine305m (5min à pied)81214
- Saint-Augustin400m (6min à pied)9
- Concorde507m (8min à pied)1812
Favoris
Exporter
Appeler
Contacter
Signaler cette annonce










