BNP Paribas Real Estate, N°1 de la transaction en immobilier d''entreprise en France, vous propose un accompagnement de qualité pour l''acquisition, la vente ou la location d''un bien immobilier.Vo ...
En savoir plus

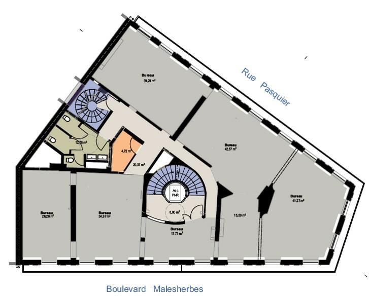
822 m² divisible dès 272 m²
HT HC
Location bureau - 822 m²
Paris 8 (75008)
Dernière mise à jour : Il y a 10 mois
Au sein d'un immeuble Haussmannien restructuré, nous vous proposons à la location une surface de bureaux de 821,60 m² divisibles répartis sur 3 niveaux Facade et parties communes d'excellent standing et proximité immédiate de la place de la Madeleine Au sein d'un immeuble Haussmannien restructuré, nous vous proposons à la location une surface de bureaux de 821,60 m² divisibles répartis sur 3 niveaux Facade et parties communes d'excellent standing et proximité immédiate de la place de la Madeleine. Capacitaire de 26 collaborateurs par étage Prestations : Climatisation réversible double-flux / Peu de contrainte d'aménagement / Balcon filant sur rue / Surface traversante et lumineuse / belle hauteur sous plafond / Cuisine
Disponibilité: Immédiate
Honoraires: Nous consulter. à la signature du bail
Honoraires: Nous consulter. à la signature du bail
| Fiche technique du bien | |
|---|---|
| Métro | M8 Station: Madeleine +M14 +M12 |
| Métro | M9 Station: Saint Augustin |
| Métro | M3 Station: Havre-Caumartin |
| Bus | Station: Madeleine : 24 42 52 94 |
| Etat de l'immeuble | Restructuré avec PC Immeuble Haussmanien |
| Climatisation | Réversible |
| Linéaire de façade | 20,00 mètre(s) |
| Sanitaire(s) | 3 Par étage |
| Autre élément bureau | Accès PMR |
| Autre élément bureau | Plateau rénové avec peu de contraintes porteuses |
| Orientation façade | RUE & COUR |
Voir plus
Afficher les consommations énergétiques
Surfaces divisibles : 3
| Surface | LoyerHT/HC/m²/an | Étage / Batiment | Infos complémentaires |
| 272 m² | N.C | 1 | OLBUR2423151/1 |
| 276 m² | N.C | 2 | OLBUR2423151/1 |
| 274 m² | N.C | 3 | OLBUR2423151/1 |
Localisation et transport aux alentours
- Madeleine314m (5min à pied)81214
- Saint-Augustin406m (6min à pied)9
- Concorde493m (7min à pied)1812
Favoris
Exporter
Appeler
Contacter
Signaler cette annonce
