Conseil en immobilier d'entreprise, Cushman & Wakefield est un acteur incontournable au rayonnement international. Cushman & Wakefield offre des solutions dans toutes les étapes que comporte un p ...
En savoir plus

3 619 m² divisible dès 17 m²
HT HC
Location bureau - 3619 m²
Paris 9 (75009)
Dernière mise à jour : Il y a 1 mois
Bureaux à louer dans le quartier Paris Opéra Grands Boulevard au Coeur de Paris et à toute proximité du hub transports RER A métro ligne 8 et 3.
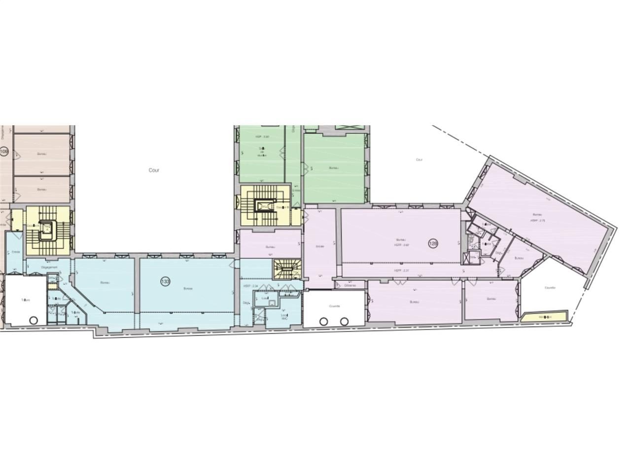
Différents lots: 471 m², 1498 m² ou 2137 m².
Situés au 6 boulevard des Capucines dans le 9ème arrondissement de Paris.
Ces bureaux à la location se trouvent dans un immeuble haussmannien. Les locaux sont neufs et les prestations de grande qualité.
Vous profiterez de parties communes d'un très haut standing, avec un magnifique escalier. Tous les niveaux sont desservit par ascenseur.
Vous découvrez au 3ème et 4ème étages, ces 2 surfaces de Bureaux à louer de 1.500 m² contigus . Un ensemble d 2137 m² avec accès indépendant est disponible au 1er et 2nd étage.
Décloisonnés, ces bureaux à louer permettent un usage aussi bien cloisonné qu'en open space, favorisant les échanges entre les collaborateurs. Ils sont donc facilement modulables et adaptés aux nouvelles tendances de bureaux : "flexibilité, coworking, flex office."
Très rare sur ce secteur, lourdement rénové, surface livrée neuve. Nous contacter pour organiser une visite.
Plateaux de bureaux à louer. Rénovation lourde, prestations haut de gamme.
Impôt Foncier : 35 €//m²/an
Régime Fiscal : T.V.A.
Dépôt de garantie : 3 mois de loyer HT/HC
Paiement Loyer : Trimestriel
Honoraires : à la charge du preneur
Taxe Bureau : 27,06 €/m²/an
Prestations :
Accessibilité:
Métro Chaussée d'Antin-La Fayette (lignes 7, 9)
Métro Opéra (lignes 3, 7, 8)
RER Auber (RER A)
Bus Lignes 20-21-27-29-32-45-52-66-68-95
Les informations sur les risques auxquels ce bien est exposé sont disponibles sur le site Géorisques : www.georisques.gouv.fr
Différents lots: 471 m², 1498 m² ou 2137 m².
Situés au 6 boulevard des Capucines dans le 9ème arrondissement de Paris.
Ces bureaux à la location se trouvent dans un immeuble haussmannien. Les locaux sont neufs et les prestations de grande qualité.
Vous profiterez de parties communes d'un très haut standing, avec un magnifique escalier. Tous les niveaux sont desservit par ascenseur.
Vous découvrez au 3ème et 4ème étages, ces 2 surfaces de Bureaux à louer de 1.500 m² contigus . Un ensemble d 2137 m² avec accès indépendant est disponible au 1er et 2nd étage.
Décloisonnés, ces bureaux à louer permettent un usage aussi bien cloisonné qu'en open space, favorisant les échanges entre les collaborateurs. Ils sont donc facilement modulables et adaptés aux nouvelles tendances de bureaux : "flexibilité, coworking, flex office."
Très rare sur ce secteur, lourdement rénové, surface livrée neuve. Nous contacter pour organiser une visite.
Plateaux de bureaux à louer. Rénovation lourde, prestations haut de gamme.
| Étage | Type | Surfaces | Dispo | Loyer | Charges | Type de bailRév. annuelle |
|---|---|---|---|---|---|---|
| Arch./Reser. | 42 | Après accord | 200 HT/HC/m²/an | 40 HT/m²/an | 6-9 ansSur l'indice ILAT | |
| 4 | Bureaux | 1027 | Avril 2026 | 900 HT/HC/m²/an | 40 HT/m²/an | 6-9 ansSur l'indice ILAT |
| 3 | Bureaux | 471 | Immédiate | 880 HT/HC/m²/an | 40 HT/m²/an | 6-9 ansSur l'indice ILAT |
| 2 | Bureaux | 1055 | Après accord | 920 HT/HC/m²/an | 40 HT/m²/an | 6-9 ansSur l'indice ILAT |
| 1 | Bureaux | 1049 | Après accord | 920 HT/HC/m²/an | 40 HT/m²/an | 6-9 ansSur l'indice ILAT |
| Entre-Sol | Bureaux | 17 | Après accord | 920 HT/HC/m²/an | 40 HT/m²/an | 6-9 ansSur l'indice ILAT |
Impôt Foncier : 35 €//m²/an
Régime Fiscal : T.V.A.
Dépôt de garantie : 3 mois de loyer HT/HC
Paiement Loyer : Trimestriel
Honoraires : à la charge du preneur
Taxe Bureau : 27,06 €/m²/an
Prestations :
- Immeuble Haussmannien à proximité immédiate de la place de l'Opéra
- Accès sécurisé par digicode
- Ascenseur
- Cour commune
- Surfaces livrées rénovées
- Prestations haut de gamme
- Locaux climatisés
- Technique neuve
- Divisions possibles : 471 m² (3è), 1 498 m² (3è et 4ème)
- Surface indépendante possible au R+2 de 2 137 m²
- Capacitaire 1p/10 m²
- Le programme des travaux répondra aux exigences environnementales en terme de consommation énergétique
- Parking de vélos
- Surface RDC : 33 m²
Accessibilité:
Métro Chaussée d'Antin-La Fayette (lignes 7, 9)
Métro Opéra (lignes 3, 7, 8)
RER Auber (RER A)
Bus Lignes 20-21-27-29-32-45-52-66-68-95
Les informations sur les risques auxquels ce bien est exposé sont disponibles sur le site Géorisques : www.georisques.gouv.fr
Voir plus
Afficher les consommations énergétiques
Localisation et transport aux alentours
- Opéra138m (2min à pied)378
- Chaussée d'Antin La Fayette248m (4min à pied)79
- Quatre Septembre342m (5min à pied)3
- Auber476m (7min à pied)A
Favoris
Exporter
Appeler
Contacter
Signaler cette annonce










