Conseil en immobilier d'entreprise, Cushman & Wakefield est un acteur incontournable au rayonnement international. Cushman & Wakefield offre des solutions dans toutes les étapes que comporte un p ...
En savoir plus

471 m²
HT HC
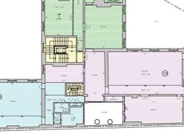
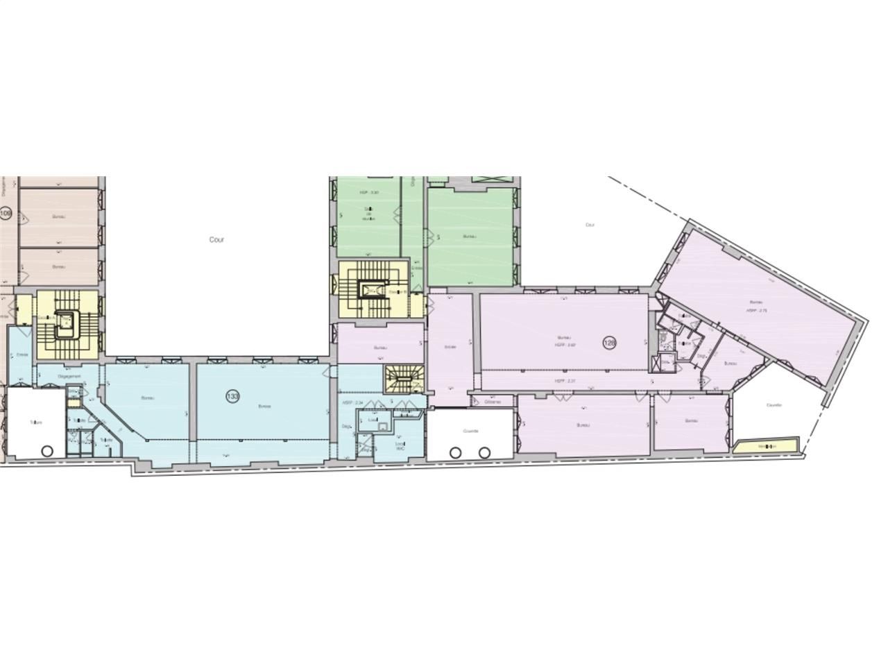
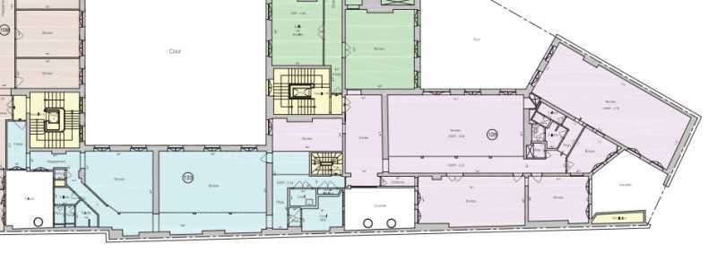
Location bureau - 471 m²
Paris 9 (75009)
Dernière mise à jour : Il y a 2 jours
Bureaux à louer dans le quartier Paris Opéra Grands Boulevard au Coeur de Paris et à toute proximité du hub transports RER A métro ligne 8 et 3.
Situés au 6 boulevard des Capucines dans le 9ème arrondissement de Paris.
Ces bureaux à la location sont aux 3ème d'un immeuble haussmannien. Locaux neufs, prestations de très grande qualité.
Vous profiterez de parties communes d'un très haut standing, avec un magnifique escalier. Tous les niveaux sont desservit par ascenseur.
Décloisonnés, ces bureaux à louer permettent un usage aussi bien cloisonné qu'en open space, favorisant les échanges entre les collaborateurs. Ils sont donc facilement modulables et adaptés aux nouvelles tendances de bureaux : "flexibilité, coworking, flex office."
Très rare sur ce secteur, lourdement rénové, surface livrée neuve. Nous contacter pour organiser une visite.
Plateaux de bureaux à louer. Rénovation lourde, prestations haut de gamme.
Impôt Foncier : 30 €//m²/an
Régime Fiscal : T.V.A.
Dépôt de garantie : 3 mois de loyer HT/HC
Paiement Loyer : Trimestriel
Honoraires : à la charge du preneur
Taxe Bureau : 25,31 €/m²/an
Prestations :
Accessibilité:
Métro Chaussée d'Antin-La Fayette (lignes 7, 9)
Métro Opéra (lignes 3, 7, 8)
RER Auber (RER A)
Bus Lignes 20-21-27-29-32-45-52-66-68-95
Les informations sur les risques auxquels ce bien est exposé sont disponibles sur le site Géorisques : www.georisques.gouv.fr
Situés au 6 boulevard des Capucines dans le 9ème arrondissement de Paris.
Ces bureaux à la location sont aux 3ème d'un immeuble haussmannien. Locaux neufs, prestations de très grande qualité.
Vous profiterez de parties communes d'un très haut standing, avec un magnifique escalier. Tous les niveaux sont desservit par ascenseur.
Décloisonnés, ces bureaux à louer permettent un usage aussi bien cloisonné qu'en open space, favorisant les échanges entre les collaborateurs. Ils sont donc facilement modulables et adaptés aux nouvelles tendances de bureaux : "flexibilité, coworking, flex office."
Très rare sur ce secteur, lourdement rénové, surface livrée neuve. Nous contacter pour organiser une visite.
Plateaux de bureaux à louer. Rénovation lourde, prestations haut de gamme.
| Étage | Type | Surfaces | Dispo | Loyer | Charges | Type de bailRév. annuelle |
|---|---|---|---|---|---|---|
| 3 | Bureaux | 471 | 880 HT/HC/m²/an | 40 HT/m²/an | 6-9 ansSur l'indice ILAT |
Impôt Foncier : 30 €//m²/an
Régime Fiscal : T.V.A.
Dépôt de garantie : 3 mois de loyer HT/HC
Paiement Loyer : Trimestriel
Honoraires : à la charge du preneur
Taxe Bureau : 25,31 €/m²/an
Prestations :
- Immeuble Haussmannien à proximité immédiate de la place de l'Opéra
- Accès sécurisé par digicode
- Ascenseur
- Cour commune
- Surfaces livrées rénovées
- Capacitaire 1p/10 m²
- Prestations haut de gamme
- Locaux climatisés
- Technique neuve
- Parking vélo
- Le programme des travaux répondra aux exigences environnementales en terme de consommation énergétique
Accessibilité:
Métro Chaussée d'Antin-La Fayette (lignes 7, 9)
Métro Opéra (lignes 3, 7, 8)
RER Auber (RER A)
Bus Lignes 20-21-27-29-32-45-52-66-68-95
Les informations sur les risques auxquels ce bien est exposé sont disponibles sur le site Géorisques : www.georisques.gouv.fr
Voir plus
Afficher les consommations énergétiques
Localisation et transport aux alentours
Favoris
Exporter
Appeler
Contacter
Signaler cette annonce










