Conseil en immobilier d'entreprise, Cushman & Wakefield est un acteur incontournable au rayonnement international. Cushman & Wakefield offre des solutions dans toutes les étapes que comporte un p ...
En savoir plus

620 m²
HT HC
Location bureau - 620 m²
Paris 9 (75009)
Dernière mise à jour : Il y a 2 jours
Découvrez une opportunité exceptionnelle proposée par CW : des bureaux à louer à Paris, offrant un total de 619 m².
Ces plateaux, livrés rénovés, dans un immeuble repondant aux certifications environnementales HQE très performant, se distinguent par leur parquet en Pointe de Hongrie et à l'anglaise, leurs faux plafonds acoustiques, la climatisation CPCU et la fraîcheur naturelle de Paris.
Chaque plateau dispose de 7 sanitaires, 2 douches, 2 espaces déjeunatoires, un double accès,
- un local à vélo,
- une conciergerie automatique.
Ne manquez pas cette opportunité d'installer votre entreprise dans un environnement de travail de qualité .
Impôt Foncier : 14,65 €//m²/an
Régime Fiscal : T.V.A.
Honoraires : à la charge du preneur
Taxe Bureau : 25,77 €/m²/an
Information sur le Bail :
Assurance : 2 euros HT/m²/an
Prestations :
Accessibilité:
Métro Chaussée d'Antin La Fayette (lignes 7-9)
Métro Richelieu-Drouot (lignes 8-9)
Bus Lignes 20-39-42-48-67-74-85
Les informations sur les risques auxquels ce bien est exposé sont disponibles sur le site Géorisques : www.georisques.gouv.fr
Ces plateaux, livrés rénovés, dans un immeuble repondant aux certifications environnementales HQE très performant, se distinguent par leur parquet en Pointe de Hongrie et à l'anglaise, leurs faux plafonds acoustiques, la climatisation CPCU et la fraîcheur naturelle de Paris.
Chaque plateau dispose de 7 sanitaires, 2 douches, 2 espaces déjeunatoires, un double accès,
- un local à vélo,
- une conciergerie automatique.
Ne manquez pas cette opportunité d'installer votre entreprise dans un environnement de travail de qualité .
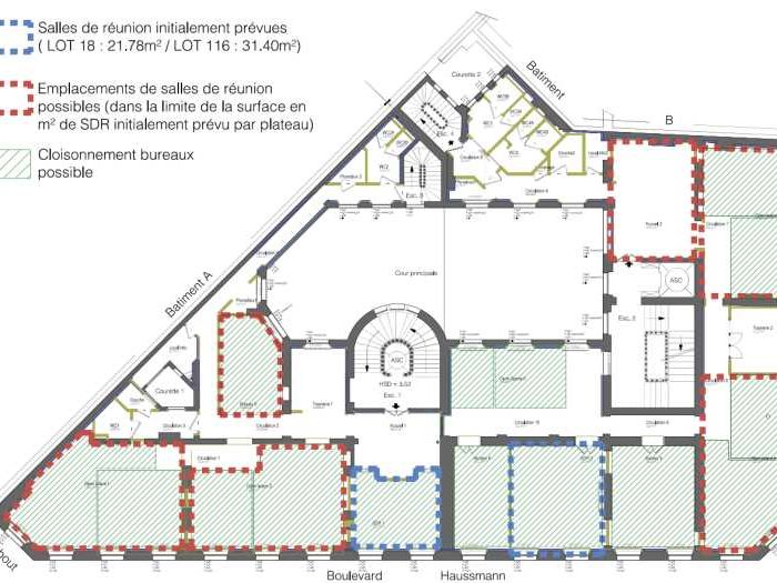
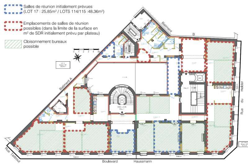
| Étage | Type | Surfaces | Dispo | Loyer | Charges | Type de bailRév. annuelle |
|---|---|---|---|---|---|---|
| Sous-Sol | Arch./Reser. | 114,9 | 3-6-9 ansSur l'indice ILAT | |||
| 3 | Bureaux | 619,9 | 900 HT/HC/m²/an | 77 HT/m²/an | 3-6-9 ansSur l'indice ILAT |
Impôt Foncier : 14,65 €//m²/an
Régime Fiscal : T.V.A.
Honoraires : à la charge du preneur
Taxe Bureau : 25,77 €/m²/an
Information sur le Bail :
Assurance : 2 euros HT/m²/an
Prestations :
- Immeuble Haussmannien
- Double Entrée de l'immeuble
- Parties communes de haut standing
- Ascenseur
- Accès sécurisé
- Gardienne
- Nombreux parkings à proximité
- Plateaux livrés rénovés
- Parquet Pointe de Hongrie & à l'angalise
- Faux plafonds acoustiques
- CPCU & Fraicheur de Paris
- 7 sanitaires par plateau
- 2 douches
- 2 espaces déjeunatoires
- Double accès
- Local à vélo
- Conciergerie automatique
- Excellent capacitaire
- Certification HQE Très Performant
Accessibilité:
Métro Chaussée d'Antin La Fayette (lignes 7-9)
Métro Richelieu-Drouot (lignes 8-9)
Bus Lignes 20-39-42-48-67-74-85
Les informations sur les risques auxquels ce bien est exposé sont disponibles sur le site Géorisques : www.georisques.gouv.fr
Voir plus
Afficher les consommations énergétiques
Localisation et transport aux alentours
Favoris
Exporter
Appeler
Contacter
Signaler cette annonce










