Créée en mai 2012, Wellstone est une société de conseil en immobilier d'entreprise qui accompagne ses clients propriétaires, investisseurs et utilisateurs dans leurs différents projets immobiliers ...
En savoir plus

1 094 m²
HT HC
Location bureau - 1094 m²
Paris 9 (75009)
Dernière mise à jour : Il y a 2 jours
En plein coeur des grands boulevards, à quelques pas du GRAND REX, Wellstone vous propose à la location un très bel immeuble indépendant sur cour d'environ 1100m² situé rue du faubourg poissonnière. Ces locaux en excellent état conviendront parfaitement en outre à toutes activités liées à la communication, au marketing, au web et d'un point vue général à toutes activités liées aux conseils. La localisation, la rationalité des plateaux et sa terrasse baignée de lumière sauront vous séduire au premier coup d'oeil.
Impôt Foncier : 15 €/m²/an
Régime Fiscal : T.V.A.
Dépôt de garantie : 3 mois de loyer HT/HC
Honoraires : A la charge du preneur.
Taxe Bureau : 25,77 €/m²/an
Information sur le Bail :
Ascenseur et contrat de la climatisation : 4600 euros /an Possibilité de livrer l'immeuble clés en main dans le cadre d'un contrat de prestation de services pour 140 postes à 110 000 euros /mois
Prestations :
Accessibilité:
Metro Bonne Nouvelle (8, 9)
Metro Grands Boulevards (8, 9)
Les informations sur les risques auxquels ce bien est exposé sont disponibles sur le site Géorisques : www.georisques.gouv.fr
| Étage | Type | Surfaces | Dispo | Loyer | Charges | Type de bailRév. annuelle |
|---|---|---|---|---|---|---|
| 3 | Bureaux | 181,69 | Après accord | 640,44 m²/an HT HC | 30,66 m²/an HT | 3-6-9 ansILAT |
| 2 | Bureaux | 305,8 | Après accord | 640,44 m²/an HT HC | 30,66 m²/an HT | 3-6-9 ansILAT |
| 1 | Bureaux | 312,6 | Après accord | 640,44 m²/an HT HC | 30,66 m²/an HT | 3-6-9 ansILAT |
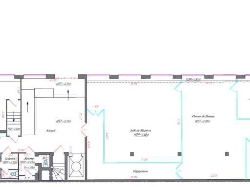
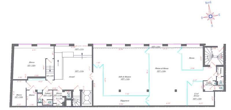
| RDCH | Bureaux | 293,7 | Après accord | 640,44 m²/an HT HC | 30,66 m²/an HT | 3-6-9 ansILAT |
Impôt Foncier : 15 €/m²/an
Régime Fiscal : T.V.A.
Dépôt de garantie : 3 mois de loyer HT/HC
Honoraires : A la charge du preneur.
Taxe Bureau : 25,77 €/m²/an
Information sur le Bail :
Ascenseur et contrat de la climatisation : 4600 euros /an Possibilité de livrer l'immeuble clés en main dans le cadre d'un contrat de prestation de services pour 140 postes à 110 000 euros /mois
Prestations :
- Parties communes de bon standing
- Locaux en bon état
- Surfaces organisées en espaces ouverts
- Capacitaire code du travail : 150 personnes
- Capacitaire incendie : 200 personnes
- Terrasse de 54 m² au 3ème étage
- Surface RDC : 293,7 m²
Accessibilité:
Metro Bonne Nouvelle (8, 9)
Metro Grands Boulevards (8, 9)
Les informations sur les risques auxquels ce bien est exposé sont disponibles sur le site Géorisques : www.georisques.gouv.fr
Voir plus
Afficher les consommations énergétiques
Localisation et transport aux alentours
- Bonne Nouvelle203m (3min à pied)89
- Grands Boulevards333m (5min à pied)89
- Sentier484m (7min à pied)3
Favoris
Exporter
Appeler
Contacter
Signaler cette annonce










