Créée en mai 2012, Wellstone est une société de conseil en immobilier d'entreprise qui accompagne ses clients propriétaires, investisseurs et utilisateurs dans leurs différents projets immobiliers ...
En savoir plus

124 m²
HT HC
Location bureau - 124 m²
Paris 9 (75009)
Dernière mise à jour : Il y a 2 jours
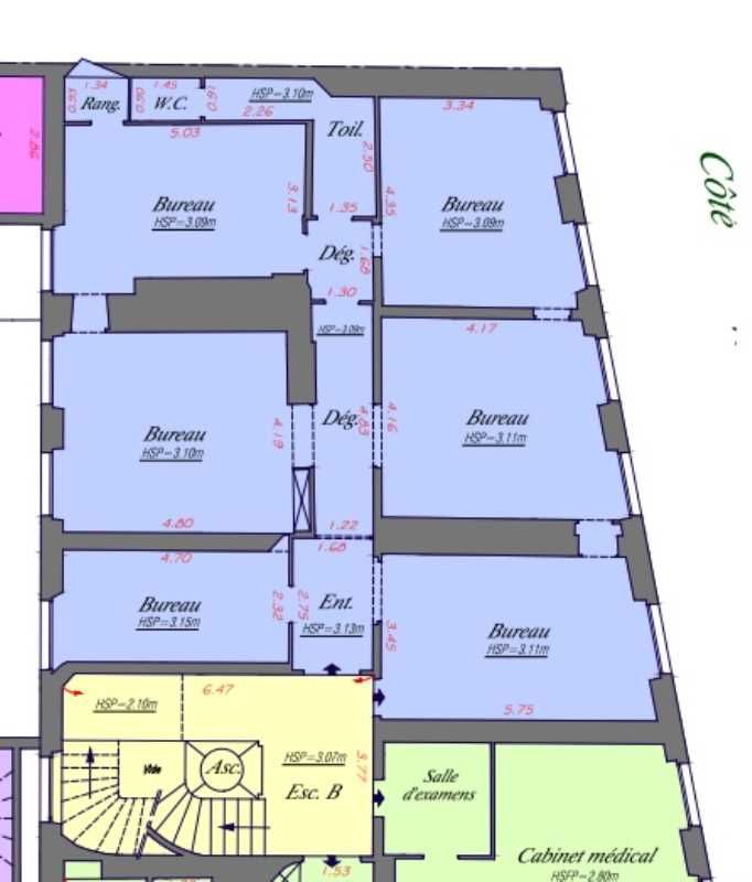
En plein coeur des grands boulevards, à quelques pas du GRAND REX, Wellstone vous propose à la location un bureau situé rue du faubourg poissonnière. Ces locaux conviendront parfaitement en outre à toutes activités liées à la communication, au marketing et d'un point vue général à toutes activités liées aux conseils. La hauteur sous plafond, la luminosité et le charme de l'ancien sont autant d'atouts qui vous séduiront au premier coup d'oeil.
Régime Fiscal : T.V.A.
Dépôt de garantie : 3 mois de loyer HT/HC
Honoraires : A la charge du preneur.
Taxe Bureau : 25,77 €/m²/an
Prestations :
Accessibilité:
Metro Bonne Nouvelle (8, 9)
Metro Grands Boulevards (8, 9)
Les informations sur les risques auxquels ce bien est exposé sont disponibles sur le site Géorisques : www.georisques.gouv.fr
| Étage | Type | Surfaces | Dispo | Loyer | Charges | Type de bailRév. annuelle |
|---|---|---|---|---|---|---|
| 2 | Bureaux | 124 | 1er juillet 2026 | 566 m²/an HT HC | 58 m²/an HT | 3-6-9 ansILAT |
Régime Fiscal : T.V.A.
Dépôt de garantie : 3 mois de loyer HT/HC
Honoraires : A la charge du preneur.
Taxe Bureau : 25,77 €/m²/an
Prestations :
- Parties communes de bon standing
- Locaux en bon état
- Surface organisée en 5 bureaux cloisonnés
- Belle hauteur sous plafond
- Parquet, moulures
Accessibilité:
Metro Bonne Nouvelle (8, 9)
Metro Grands Boulevards (8, 9)
Les informations sur les risques auxquels ce bien est exposé sont disponibles sur le site Géorisques : www.georisques.gouv.fr
Voir plus
Afficher les consommations énergétiques
Localisation et transport aux alentours
Favoris
Exporter
Appeler
Contacter
Signaler cette annonce
