Size Real Estate est une société de conseil en immobilier d’entreprise. Nous vous accompagnons dans tous vos projets immobiliers à Paris ou en première couronne. De la recherche de bureaux à la loc ...
En savoir plus

630 m²
HT HC
Location bureau - 630 m²
Paris 9 (75009)
Dernière mise à jour : Il y a 4 jours
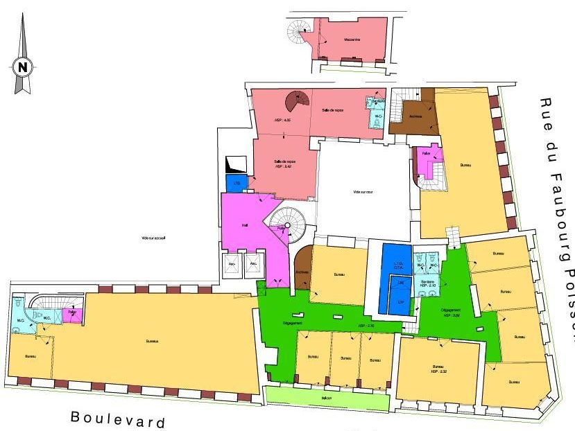
Bureaux à louer de 630,40m2
En face du Grand Rex et au pied du métro Bonne Nouvelle, SIZE Real Estate vous propose une surface de bureaux à la location au 5ème étage d'un immeuble tertiaire avec hôtesse d'accueil. Les bureaux bénéficient de beaux volumes, d'espaces traversants et d'une belle terrasse orientée plein sud. Disponible immédiatement.
Construction : Immeuble d'angle
Parkings (commentaires) : Local vélo
Date (dernière mise à jour) : 2026-03-19
Bail : Commercial 3 6 9
Honoraires / Location: 15 % HT du loyer annuel HT HC À la charge du preneur
Commentaires: - Provision de charges travaux d'entretien courant 2026 : 5,35 EUR/m2/an HT ;
- Primes d'assurance 2026 : 0,70 EUR/m2/an HT ;
Prestations :
- Immeuble d'angle
-
- Accès PMR
- Hall double hauteur
- Accueil avec hôtesse
- Duplex d'ascenseurs
- Balcon filant sur le Bd Poissonnière
-
- État des locaux : A rafraîchir
- Locaux à rafraîchir
- Plateau traversant
- Grand espace informel
- Plusieurs salles de réunion
- Open Space par Zone
- Climatisation
- Câblage informatique Cat. 6/ Goulotte périphérique
Tableau de Surfaces :
Conditions juridiques et financères :
Charges : 3101.568
Accessibilité :
Métro : Bonne Nouvelle ou Grands Boulevards (8, 9) au pied de l'immeuble (30 m), Sentier (3), à 400 m
- Bus : 20, 32, 39
- Accès routiers : Boulevard Montmartre, Boulevard Poissonnière, Boulevard Bonne Nouvelle
- Parkings publics Onepark Grands Boulevard et Interparking Rex à 100 m
En face du Grand Rex et au pied du métro Bonne Nouvelle, SIZE Real Estate vous propose une surface de bureaux à la location au 5ème étage d'un immeuble tertiaire avec hôtesse d'accueil. Les bureaux bénéficient de beaux volumes, d'espaces traversants et d'une belle terrasse orientée plein sud. Disponible immédiatement.
Construction : Immeuble d'angle
Parkings (commentaires) : Local vélo
Date (dernière mise à jour) : 2026-03-19
Bail : Commercial 3 6 9
Honoraires / Location: 15 % HT du loyer annuel HT HC À la charge du preneur
Commentaires: - Provision de charges travaux d'entretien courant 2026 : 5,35 EUR/m2/an HT ;
- Primes d'assurance 2026 : 0,70 EUR/m2/an HT ;
Prestations :
- Immeuble d'angle
-
- Accès PMR
- Hall double hauteur
- Accueil avec hôtesse
- Duplex d'ascenseurs
- Balcon filant sur le Bd Poissonnière
-
- État des locaux : A rafraîchir
- Locaux à rafraîchir
- Plateau traversant
- Grand espace informel
- Plusieurs salles de réunion
- Open Space par Zone
- Climatisation
- Câblage informatique Cat. 6/ Goulotte périphérique
Tableau de Surfaces :
| Etage | Type de bien | Surface | Dispo | |
| 5 | Bureaux | 630 m² | Immédiate |
Conditions juridiques et financères :
Charges : 3101.568
Accessibilité :
Métro : Bonne Nouvelle ou Grands Boulevards (8, 9) au pied de l'immeuble (30 m), Sentier (3), à 400 m
- Bus : 20, 32, 39
- Accès routiers : Boulevard Montmartre, Boulevard Poissonnière, Boulevard Bonne Nouvelle
- Parkings publics Onepark Grands Boulevard et Interparking Rex à 100 m
Voir plus
Afficher les consommations énergétiques
Localisation et transport aux alentours
Favoris
Exporter
Appeler
Contacter
Signaler cette annonce










