Conseil en immobilier d'entreprise, Cushman & Wakefield est un acteur incontournable au rayonnement international. Cushman & Wakefield offre des solutions dans toutes les étapes que comporte un p ...
En savoir plus

241 m²
HT HC
Location bureau - 241 m²
Paris 8 (75008)
Dernière mise à jour : Il y a 2 jours
Cushman & Wakefield vous propose en exclusivité des bureaux d'apparat à louer au coeur du 8ème arrondissement de Paris à un loyer défiant toutes concurrences !
Dans un immeuble en pierre de taille, vous profiterez de parties communes de bon standing avec gardiennage.
Les locaux sont lumineux, en très bon état, et bénéficient d'une belle hauteur sous plafond.
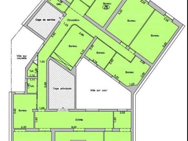
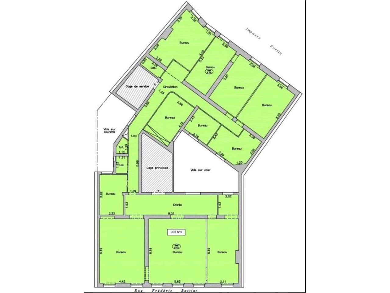
Ils sont actuellement composés de 10 volumes pouvant servir de bureaux individuels , open space pour 2 à 6 personnes ou grande salle de réunion. Cuisine équipé, câblage informatique, parquet, moulures et cheminées.
Disponibles immédiatement en bail commercial 3-6-9.
Impôt Foncier : 34,04 €//m²/an
Régime Fiscal : T.V.A.
Honoraires : à la charge du preneur
Prestations :
Accessibilité:
Métro George V (ligne 1)
Métro Miromesnil (lignes 9-13)
Métro Saint-Philippe du Roule (ligne 9)
RER Charles de Gaulle Etoile (RER A)
Bus Lignes 22-32-52-93
Les informations sur les risques auxquels ce bien est exposé sont disponibles sur le site Géorisques : www.georisques.gouv.fr
Dans un immeuble en pierre de taille, vous profiterez de parties communes de bon standing avec gardiennage.
Les locaux sont lumineux, en très bon état, et bénéficient d'une belle hauteur sous plafond.
Ils sont actuellement composés de 10 volumes pouvant servir de bureaux individuels , open space pour 2 à 6 personnes ou grande salle de réunion. Cuisine équipé, câblage informatique, parquet, moulures et cheminées.
Disponibles immédiatement en bail commercial 3-6-9.
| Étage | Type | Surfaces | Dispo | Loyer | Charges | Type de bailRév. annuelle |
|---|---|---|---|---|---|---|
| 1 | Bureaux | 241 | 610 HT/HC/m²/an | 22,9 HT/m²/an | 3-6-9 ansselon indice INSEE du coût de la construction |
Impôt Foncier : 34,04 €//m²/an
Régime Fiscal : T.V.A.
Honoraires : à la charge du preneur
Prestations :
- Immeuble Haussmannien en pierre de taille
- Parties communes en cours de rénovation
- Ascenseur
- Gardien
- Parking public à proximité
- Bureaux en très bon état d'usage
- Belle lumière naturelle
- 10 beaux volumes (bureaux individuels ou open space de 2 à 6 personnes)
- 1 grande salle de réunion
- Cuisine
- Belle hauteur sous plafond
- Parquet / moquette / moulures / cheminées
- 1 cave
- Surface en cours de rénovation : peinture / sol /luminaire
Accessibilité:
Métro George V (ligne 1)
Métro Miromesnil (lignes 9-13)
Métro Saint-Philippe du Roule (ligne 9)
RER Charles de Gaulle Etoile (RER A)
Bus Lignes 22-32-52-93
Les informations sur les risques auxquels ce bien est exposé sont disponibles sur le site Géorisques : www.georisques.gouv.fr
Voir plus
Afficher les consommations énergétiques
Localisation et transport aux alentours
Favoris
Exporter
Appeler
Contacter
Signaler cette annonce










