Créée en mai 2012, Wellstone est une société de conseil en immobilier d'entreprise qui accompagne ses clients propriétaires, investisseurs et utilisateurs dans leurs différents projets immobiliers ...
En savoir plus

189 m²
HT HC
Location bureau - 189 m²
Paris 20 (75020)
Dernière mise à jour : Il y a 2 jours
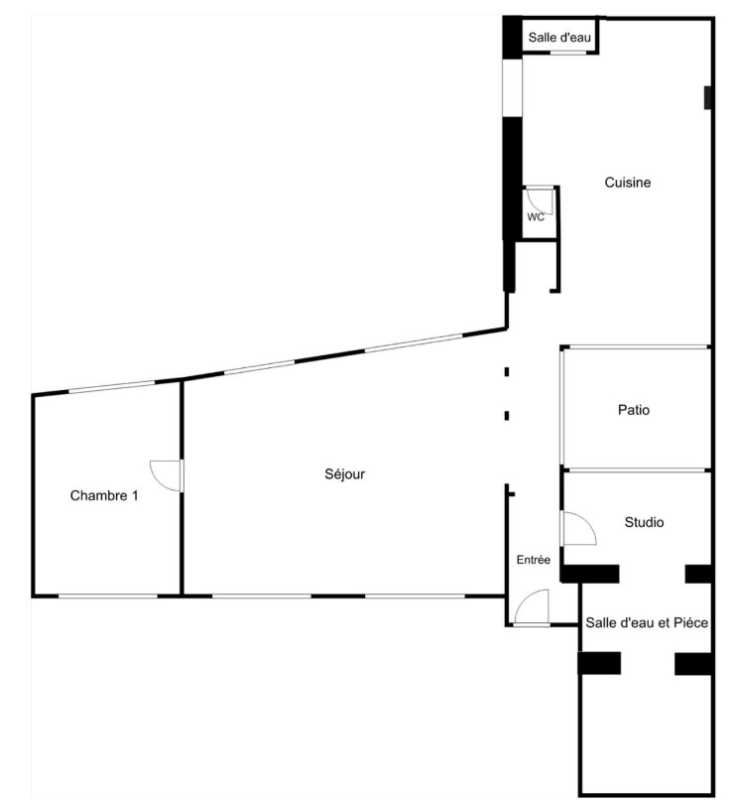
En plein coeur du quartier de Ménilmontant, Wellstone vous propose à la location, un espace atypique de 188 m² fraîchement rénové avec des matériaux de qualité. Ce bien bénéficiant de beaux volumes, d'une belle hauteur sous plafond et d'une magnifique terrasse de 11 m² conviendra parfaitement, entre autres à toutes activités liées à la communication, à l'architecture, à la mode et à l'art.
Régime Fiscal : T.V.A.
Dépôt de garantie : 3 mois de loyer HT/HC
Taxe Bureau : 21,7 €/m²/an
Information sur le Bail :
Bail dérogatoire de 36 mois maximum
Prestations :
Accessibilité:
Metro Jourdain (11)
Metro Pyrénnées (11)
Les informations sur les risques auxquels ce bien est exposé sont disponibles sur le site Géorisques : www.georisques.gouv.fr
| Étage | Type | Surfaces | Dispo | Loyer | Charges | Type de bailRév. annuelle |
|---|---|---|---|---|---|---|
| RDC | Bureaux | 188,64 | Immédiate | 350 m²/an HT HC | DérogatoireILAT |
Régime Fiscal : T.V.A.
Dépôt de garantie : 3 mois de loyer HT/HC
Taxe Bureau : 21,7 €/m²/an
Information sur le Bail :
Bail dérogatoire de 36 mois maximum
Prestations :
- Parties communes en excellent état
- Locaux rénovés
- Surface atypique en duplex organisée en 1 espace ouvert et 4 bureaux
- Belle hauteur sous plafond
- Terrasse de 11 m²
- Surface RDC : 188,64 m²
Accessibilité:
Metro Jourdain (11)
Metro Pyrénnées (11)
Les informations sur les risques auxquels ce bien est exposé sont disponibles sur le site Géorisques : www.georisques.gouv.fr
Voir plus
Afficher les consommations énergétiques
Localisation et transport aux alentours
Favoris
Exporter
Appeler
Contacter
Signaler cette annonce
