Size Real Estate est une société de conseil en immobilier d’entreprise. Nous vous accompagnons dans tous vos projets immobiliers à Paris ou en première couronne. De la recherche de bureaux à la loc ...
En savoir plus

678 m²
HT HC
Location bureau - 678 m²
Paris 17 (75017)
Dernière mise à jour : Il y a 4 jours
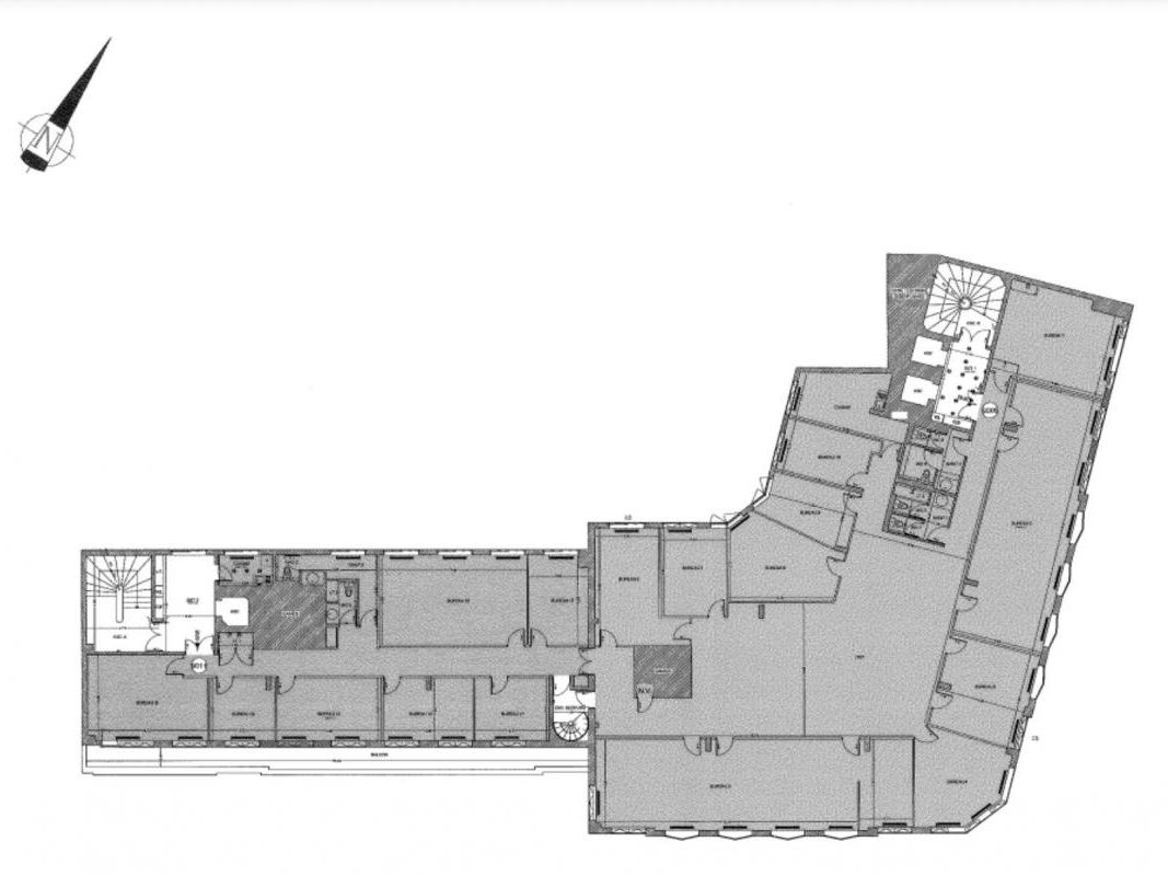
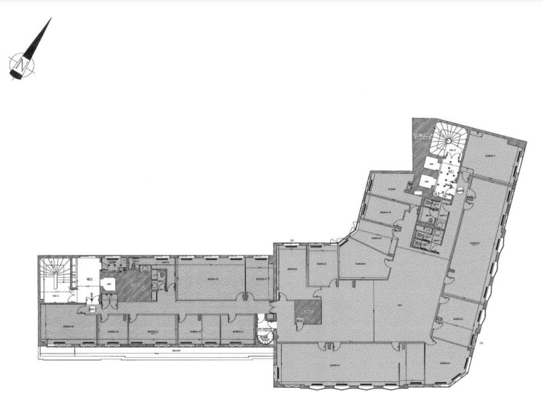
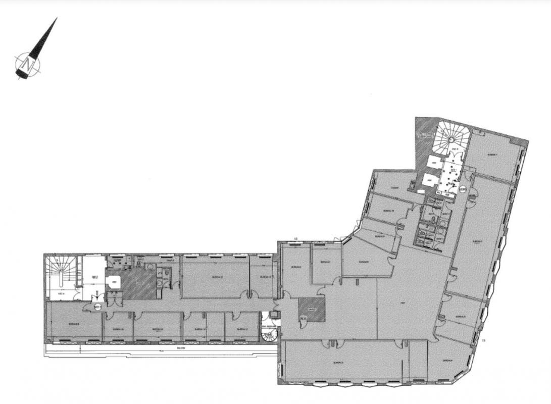
Bureaux à louer de 678,70m2
Au sein d'un immeuble tertiaire avec hôtesse d'accueil, SIZE Real Estate vous propose une surface de bureaux en très bon état, fonctionnelle, lumineuse et traversante. Le lot bénéficie d'un très grand balcon d'environ 28m² et d'un plan sans contraintes porteuses.
Disponible immédiatement.
Contact : Benjamin Bonfils au 06.68.38.11.22
Construction : Immeuble tertiaire de très bon standing
Double adresse
État de l'immeuble : Bon état
Parking intérieur : 66
Date (dernière mise à jour) : 2025-09-03
Disponibilité : Immédiate
Bail : Commercial 3 6 9
Honoraires / Location: 15 % HT du loyer annuel HT HC À la charge du preneur
Commentaires: Travaux récupérables : 25,72EUR/m²/an
Prévisionnel annuel pour primes d'assurance : 1,19 EUR/m² HT
Prestations :
- Immeuble tertiaire de très bon standing
- Double adresse
-
- Parties communes rénovées de qualité
- Accès PMR
- Hôtesse d'accueil et accès sécurisé
- Double batterie d'ascenseur
- Nombreuses places de parking disponibles et archives en sous-sol
-
- État des locaux : Très bon état
- Surfaces lumineuses
- Bureaux cloisonnés / Espaces ouverts
- Salles de réunions
- Cloisonnement amovible
- Peu de contraintes porteuses
- Plateaux traversants et lumineux
- Plafond brut style industriel
- Auditorium
- Climatisation réversible
- Sanitaires privatifs
- Balcon filant au R+4 d'environ 28m²
- Observations: Capacitaire sécuritaire R+4 : 90 personnes
Tableau de Surfaces :
Conditions juridiques et financères :
Charges : 5285.037
Accessibilité :
Métro : Place de Clichy (2, 13), La Fourche (13)
- RER : Porte de Clichy (C)
- SNCF : Saint-Lazare
- Bus : 30, 54, 68, 74, 80, 81, 95
Au sein d'un immeuble tertiaire avec hôtesse d'accueil, SIZE Real Estate vous propose une surface de bureaux en très bon état, fonctionnelle, lumineuse et traversante. Le lot bénéficie d'un très grand balcon d'environ 28m² et d'un plan sans contraintes porteuses.
Disponible immédiatement.
Contact : Benjamin Bonfils au 06.68.38.11.22
Construction : Immeuble tertiaire de très bon standing
Double adresse
État de l'immeuble : Bon état
Parking intérieur : 66
Date (dernière mise à jour) : 2025-09-03
Disponibilité : Immédiate
Bail : Commercial 3 6 9
Honoraires / Location: 15 % HT du loyer annuel HT HC À la charge du preneur
Commentaires: Travaux récupérables : 25,72EUR/m²/an
Prévisionnel annuel pour primes d'assurance : 1,19 EUR/m² HT
Prestations :
- Immeuble tertiaire de très bon standing
- Double adresse
-
- Parties communes rénovées de qualité
- Accès PMR
- Hôtesse d'accueil et accès sécurisé
- Double batterie d'ascenseur
- Nombreuses places de parking disponibles et archives en sous-sol
-
- État des locaux : Très bon état
- Surfaces lumineuses
- Bureaux cloisonnés / Espaces ouverts
- Salles de réunions
- Cloisonnement amovible
- Peu de contraintes porteuses
- Plateaux traversants et lumineux
- Plafond brut style industriel
- Auditorium
- Climatisation réversible
- Sanitaires privatifs
- Balcon filant au R+4 d'environ 28m²
- Observations: Capacitaire sécuritaire R+4 : 90 personnes
Tableau de Surfaces :
| Etage | Type de bien | Surface | Dispo | |
| SS | Archive | 31 m² | Immédiate | |
| 4 | Bureaux | 679 m² | Immédiate |
Conditions juridiques et financères :
Charges : 5285.037
Accessibilité :
Métro : Place de Clichy (2, 13), La Fourche (13)
- RER : Porte de Clichy (C)
- SNCF : Saint-Lazare
- Bus : 30, 54, 68, 74, 80, 81, 95
66 parking(s) extérieur
Voir plus
Afficher les consommations énergétiques
Localisation et transport aux alentours
Favoris
Exporter
Appeler
Contacter
Signaler cette annonce










