Alex Bolton, société de conseil en immobilier d’entreprise est spécialisée dans la transaction locative et la vente d’immeubles de bureaux.Dotée d’une équipe de collaborateurs expérimentés, la soci ...
En savoir plus

507 m²
HT HC
Location bureau - 507 m²
Paris 16 (75016)
Dernière mise à jour : Il y a 2 jours
Alex Bolton vous propose en exclusivité à la location, à deux pas du Trocadéro et de la place de l'Alma, un immeuble indépendant, lourdement rénové avec goût, offrant des prestations haut de gamme, des espaces lumineux, fonctionnels. Les équipements techniques (climatisation / CTA) ont été remplacés.
Une terrasse bénéficiant d'une vue imprenable sur la tour Eiffel complète le lot.
Impôt Foncier : 16,61 €//m²/an
Régime Fiscal : T.V.A.
Dépôt de garantie : 3 mois de loyer HT/HC
Honoraires : A la charge du preneur.
Taxe Bureau : 25,31 €/m²/an
Prestations :
Accessibilité:
Métro Iéna (Ligne 9)
RER Pont de l'Alma (Ligne C)
Bus Iéna (Ligne 82, Ligne 32, Ligne 63), Musée d'Art Moderne - Palais de Tokyo (Ligne 72), Albert de Mun (Ligne 30)
SNCF Pont-De-L'Alma (France)
Les informations sur les risques auxquels ce bien est exposé sont disponibles sur le site Géorisques : www.georisques.gouv.fr
Une terrasse bénéficiant d'une vue imprenable sur la tour Eiffel complète le lot.
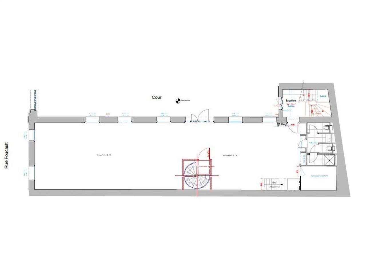
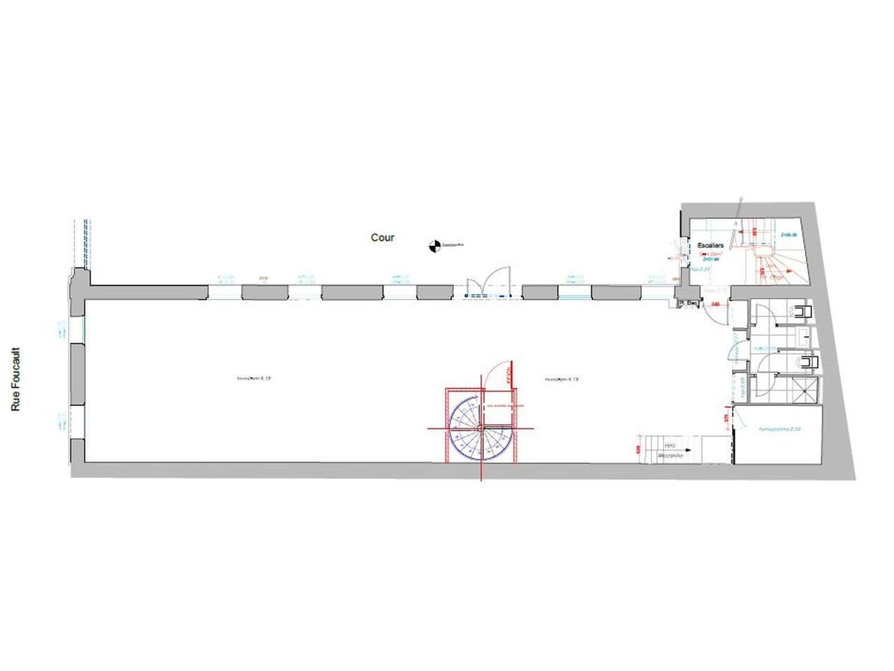
| Étage | Type | Surfaces | Dispo | Loyer | Charges | Type de bailRév. annuelle |
|---|---|---|---|---|---|---|
| 3 | Bureaux | 99 | Nous consulter | 820 HT/HC/m²/an | 3-6-9 ans ou DérogatoireINSEE | |
| 3 | Terrasse | 23 | Nous consulter | 3-6-9 ans ou DérogatoireINSEE | ||
| 2 | Bureaux | 125 | Nous consulter | 820 HT/HC/m²/an | 3-6-9 ans ou DérogatoireINSEE | |
| 1 | Bureaux | 138 | Nous consulter | 820 HT/HC/m²/an | 3-6-9 ans ou DérogatoireINSEE | |
| MEZ | Bureaux | 21 | Nous consulter | 820 HT/HC/m²/an | 3-6-9 ans ou DérogatoireINSEE | |
| RDC | Bureaux | 124 | Nous consulter | 820 HT/HC/m²/an | 3-6-9 ans ou DérogatoireINSEE |
Impôt Foncier : 16,61 €//m²/an
Régime Fiscal : T.V.A.
Dépôt de garantie : 3 mois de loyer HT/HC
Honoraires : A la charge du preneur.
Taxe Bureau : 25,31 €/m²/an
Prestations :
- Immeuble indépendant
- Cour intérieure
- Immeuble restructuré
- Climatisation neuve
- Peu de contraintes porteuses
- Surfaces rationnelles
- Capacitaire performant (100 postes)
- Patio privatif au R+1
- Terrasse privative au R+3 avec vue sur la Tour Eiffel
Accessibilité:
Métro Iéna (Ligne 9)
RER Pont de l'Alma (Ligne C)
Bus Iéna (Ligne 82, Ligne 32, Ligne 63), Musée d'Art Moderne - Palais de Tokyo (Ligne 72), Albert de Mun (Ligne 30)
SNCF Pont-De-L'Alma (France)
Les informations sur les risques auxquels ce bien est exposé sont disponibles sur le site Géorisques : www.georisques.gouv.fr
Voir plus
Afficher les consommations énergétiques
Localisation et transport aux alentours
Favoris
Exporter
Appeler
Contacter
Signaler cette annonce










