BNP Paribas Real Estate, N°1 de la transaction en immobilier d''entreprise en France, vous propose un accompagnement de qualité pour l''acquisition, la vente ou la location d''un bien immobilier.Vo ...
En savoir plus

2 976 m²
HT HC
Location bureau - 2976 m²
Paris 16 (75016)
Dernière mise à jour : Aujourd'hui
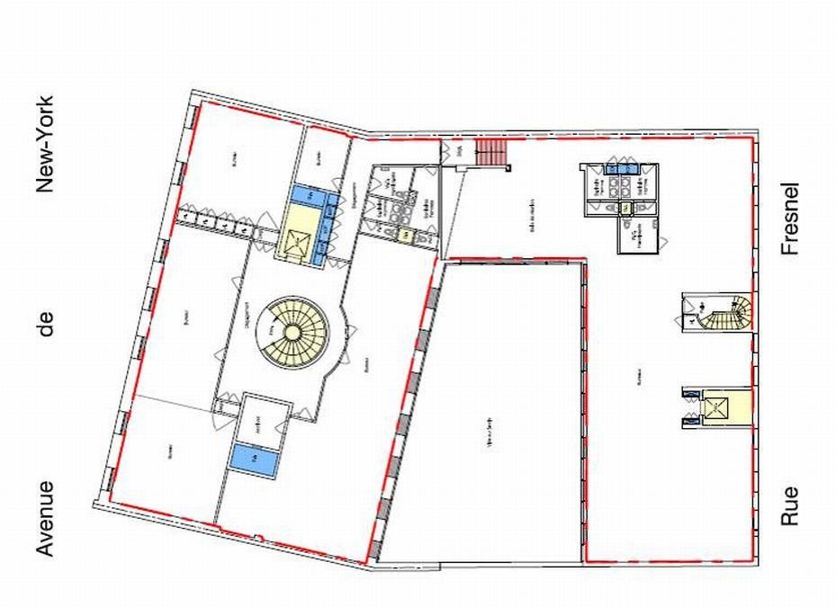
Paris 16ème, entre l'avenue d'Iéna et le Trocadéro, au 38-40 avenue de New York, nous vous proposons à la location ce superbe ensemble immobilier composé de deux batiments reliés entre eux à chaque niveau.
LOCATION DE BUREAUX PARIS 16
IMMEUBLE INDEPENDANT
2916 m² ENVIRON DE BUREAUX A LOUER
TERRASSES ACCESSIBLES
SITUATION ET DESSERTE
Emplacement exceptionnel
Proximité Trocadéro et Iéna
PRESTATIONS
Très bel ensemble immobilier
Climatisation réversible
Faux plafond
Plinthes techniques périphériques
Contrôle d'accès
Accès PMR
2 ascenseurs
57 parkings en sous-sol
Archives en sous-sol
Jardin au R-1
Rooftop au R+3 sur l'arrière
Terrasse en toiture du btiment avant
DISPONIBILITE : JUIN 2026
Disponibilité: 30/06/2026Honoraires: Nous consulter. à la signature du bail
| Fiche technique du bien | |
|---|---|
| Métro | M9 Station Iéna |
| RER | C Station pont de l'Alma |
| Bus | Lignes 32,42,63,72,80,82,92 |
| Desserte routière | Par les quais |
| Immeuble | Hôtel particulier |
| Etat de l'immeuble | Rénové |
| Parking(s) | 57 Places |
| Climatisation | Réversible Par ventilo-convecteurs |
| Accueil | Oui |
| Sécurité | Contrôle d'accès (pavillon 38 m² ) |
| Ascenseur(s) | 2 |
| Hall d'accueil | En poirier et marbre |
| Aménagement des bureaux | Cloisonnés/Ouverts |
| Faux plafond | Oui |
| Plinthes techniq.périphériques | Oui |
Afficher les consommations énergétiques
Localisation et transport aux alentours
Favoris
Exporter
Appeler
Contacter
Signaler cette annonce
