



Location bureau - 180 m²
FONCIA Bureaux Commerces vous propose des bureaux d'angle rénovés en 2019 dans une belle copropriété, en RDC surélevé = 1er étage.
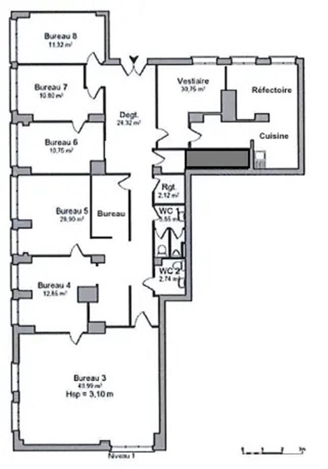
Les bureaux disposent d'une terrasse devant l'entrée avec une jouissance privative et se composent de :
- 8 bureaux, 2 WC, local info, coin repas et cuisine.
Les bureaux font entre 11 et 41 m²
Baie de brassage et câblage informatique de 2019.
2 caves possibles à la location.
Conditions financières :
LOYER PROGRESSIF: 300 €/m²/an la première année, 330 €/m²/an la seconde année et 350 €/m²/an la troisième année.
Dépôt de garantie : 3 mois de loyer
Honoraires preneur : 30 % HT du loyer annuel HT-HC
Charges locatives : 10 000 € HT/an
Taxe Foncière : 3 828 €/an
Taxe bureaux : 26 €/m²/an
Desserte :
Métro Plaisance ligne 13 à 500 mètres
Gare Montparnasse à 900 m (10 minutes à pied)
Bus ligne 95 à 50 mètres et 62 à 100 mètres.










