Créée en mai 2012, Wellstone est une société de conseil en immobilier d'entreprise qui accompagne ses clients propriétaires, investisseurs et utilisateurs dans leurs différents projets immobiliers ...
En savoir plus

580 m²
HT HC
Location bureau - 580 m²
Paris 11 (75011)
Dernière mise à jour : Il y a 3 jours
À deux pas de la place Voltaire, Wellstone vous invite à découvrir un bâtiment indépendant de caractère, développant environ 580 m² de bureaux au style résolument industriel. Anciennement occupé par une usine, ce lieu atypique séduit par ses volumes généreux et sa belle hauteur sous plafond. Entièrement aménagé en open space, il offre un cadre de travail inspirant, idéal pour des entreprises à la recherche d'un espace singulier et modulable. Un bien rare à visiter sans attendre !
Impôt Foncier : 25 €/m²/an
Régime Fiscal : T.V.A.
Dépôt de garantie : 3 mois de loyer HT/HC
Honoraires : A la charge du preneur.
Information sur le Bail :
Cession DAB : 200 000 euros Possibilité de loyer en contrat de prestations de services moyennant un montant de 280000 euros HT CC / an
Prestations :
Accessibilité:
Metro Charonne (9)
Metro Philippe Auguste (2)
Les informations sur les risques auxquels ce bien est exposé sont disponibles sur le site Géorisques : www.georisques.gouv.fr
| Étage | Type | Surfaces | Dispo | Loyer | Charges | Type de bailRév. annuelle |
|---|---|---|---|---|---|---|
| 1 | Bureaux | 220 | Immédiate | 275,86 m²/an HT HC | 3,5 m²/an HT | 3-6-9 ansILAT |
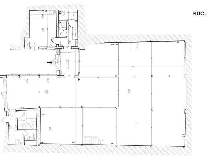
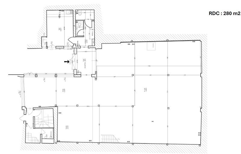
| RDC | Bureaux | 280 | Immédiate | 275,86 m²/an HT HC | 3,5 m²/an HT | 3-6-9 ansILAT |
| SS | Bureaux | 80 | Immédiate | 275,86 m²/an HT HC | 3,5 m²/an HT | 3-6-9 ansILAT |
Impôt Foncier : 25 €/m²/an
Régime Fiscal : T.V.A.
Dépôt de garantie : 3 mois de loyer HT/HC
Honoraires : A la charge du preneur.
Information sur le Bail :
Cession DAB : 200 000 euros Possibilité de loyer en contrat de prestations de services moyennant un montant de 280000 euros HT CC / an
Prestations :
- Bâtiment indépendant sur cour style ancienne usine
- Locaux en excellent état
- Surfaces atypiques réparties sur deux niveaux en duplex organisées en espaces ouverts/bureaux cloisonnés et 1 espace cuisine / coin détente
- Parquet et poutres métalliques et bois
- Belle hauteur sous plafond
- Trois entrées indépendantes
- Surface RDC : 280 m²
Accessibilité:
Metro Charonne (9)
Metro Philippe Auguste (2)
Les informations sur les risques auxquels ce bien est exposé sont disponibles sur le site Géorisques : www.georisques.gouv.fr
Voir plus
Afficher les consommations énergétiques
Localisation et transport aux alentours
Favoris
Exporter
Appeler
Contacter
Signaler cette annonce










