Conseil en immobilier d'entreprise, Cushman & Wakefield est un acteur incontournable au rayonnement international. Cushman & Wakefield offre des solutions dans toutes les étapes que comporte un p ...
En savoir plus

1 966 m²
HT HC
Location bureau - 1966 m²
Paris 11 (75011)
Dernière mise à jour : Il y a 4 jours
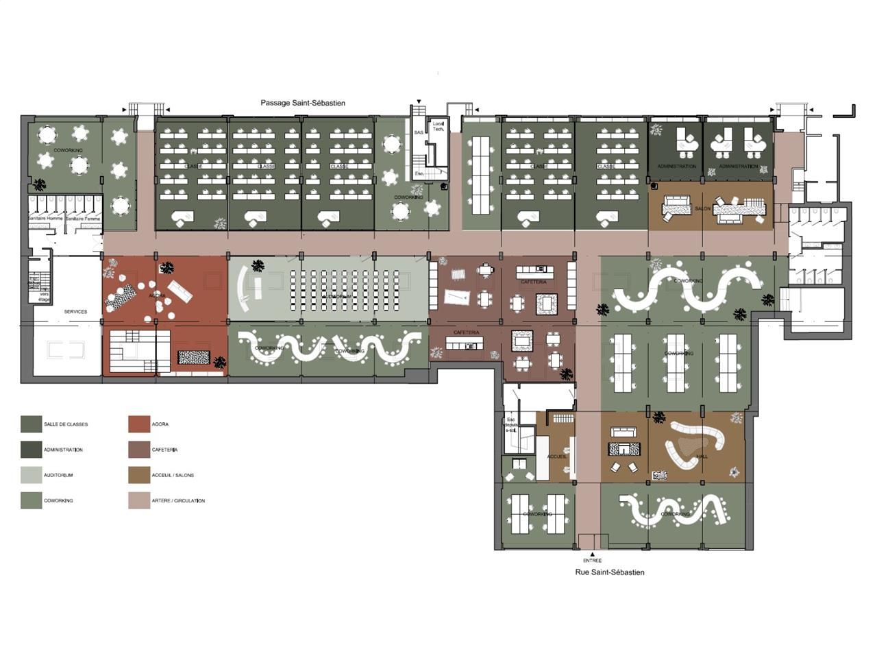
LOCAUX A LOUER/A VENDRE AU COEUR DU 11ème ARRONDISSEMENT DE PARIS
Dans un immeuble en copropriété, découvrez au coeur du 11ème arrondissement de Paris entre République et Bastille, un plateau de bureaux rénové en rez-de-chaussée de 1966 m² bénéficiant du classement Etablissement Recevant du Public 3 (ERP).
Cette surface rare bénéficie d'une grande souplesse d'aménagement pour tout type d'activité. Les locaux sont lumineux grâce à un double accès indépendant sur la rue Saint-Sébastien et le passage Saint-Sébastien. De grandes verrières permettent également de laisser entrer la lumière du jour.
La hauteur sous plafond est supérieure à 3,60 mètres.
Les locaux sont situés à 4 minutes à pied de la ligne 8 (Saint-Sébastien - Froissart), à 3 minutes à pied de la ligne 9 (Saint-Ambroise) et à 7 minutes à pied des lignes de métro 3, 5, 8, 9 et 11 (République).
Un grand local vélos est accessible.
5 emplacements de parkings voiture sont également disponibles
PRIX DE VENTE SUR DEMANDE
Impôt Foncier : 23,34 €//m²/an
Régime Fiscal : T.V.A.
Honoraires : à la charge du preneur
Information sur le Bail :
Location possible en état d'usage ou rénovée
Prestations :
Accessibilité:
Métro Richard-Lenoir (ligne 5)
Métro Saint-Ambroise (ligne 9)
Métro Saint-Sébastien-Froissart (ligne 8)
Métro Parmentier (ligne 3)
Bus Lignes 56-91-96
Les informations sur les risques auxquels ce bien est exposé sont disponibles sur le site Géorisques : www.georisques.gouv.fr
Dans un immeuble en copropriété, découvrez au coeur du 11ème arrondissement de Paris entre République et Bastille, un plateau de bureaux rénové en rez-de-chaussée de 1966 m² bénéficiant du classement Etablissement Recevant du Public 3 (ERP).
Cette surface rare bénéficie d'une grande souplesse d'aménagement pour tout type d'activité. Les locaux sont lumineux grâce à un double accès indépendant sur la rue Saint-Sébastien et le passage Saint-Sébastien. De grandes verrières permettent également de laisser entrer la lumière du jour.
La hauteur sous plafond est supérieure à 3,60 mètres.
Les locaux sont situés à 4 minutes à pied de la ligne 8 (Saint-Sébastien - Froissart), à 3 minutes à pied de la ligne 9 (Saint-Ambroise) et à 7 minutes à pied des lignes de métro 3, 5, 8, 9 et 11 (République).
Un grand local vélos est accessible.
5 emplacements de parkings voiture sont également disponibles
PRIX DE VENTE SUR DEMANDE
| Étage | Type | Surfaces | Dispo | Loyer | Charges | Type de bailRév. annuelle |
|---|---|---|---|---|---|---|
| RdC | Bureaux | 1966,19 | 520 HT/HC/m²/an | 3-6-9 ansSur l'indice ILAT | ||
| SS | Parkings | 1800 HT/HC/place/an | 3-6-9 ansSur l'indice ILAT |
Impôt Foncier : 23,34 €//m²/an
Régime Fiscal : T.V.A.
Honoraires : à la charge du preneur
Information sur le Bail :
Location possible en état d'usage ou rénovée
Prestations :
- ERP : ERP possible
- Immeuble en copropriété
- Parkings en sous-sol
- Local vélos
- Grand plateau en RdC
- Locaux indépendants
- Verrières rénovées
- HSP > 3,60 m
- ERP 3 Type R de 550 pers.
- Accès PMR
- Location possible en l'état
- Immeuble indépendant
- Surface RDC : 1966,19 m²
Accessibilité:
Métro Richard-Lenoir (ligne 5)
Métro Saint-Ambroise (ligne 9)
Métro Saint-Sébastien-Froissart (ligne 8)
Métro Parmentier (ligne 3)
Bus Lignes 56-91-96
Les informations sur les risques auxquels ce bien est exposé sont disponibles sur le site Géorisques : www.georisques.gouv.fr
Voir plus
Afficher les consommations énergétiques
Localisation et transport aux alentours
- Richard Lenoir156m (2min à pied)5
- Saint-Ambroise370m (6min à pied)9
- Oberkampf445m (7min à pied)59
- Saint-Sébastien Froissart446m (7min à pied)8
- Bréguet Sabin533m (8min à pied)5
- Filles du Calvaire540m (8min à pied)8
- Parmentier549m (8min à pied)3
Favoris
Exporter
Appeler
Contacter
Signaler cette annonce










