BNP Paribas Real Estate, N°1 de la transaction en immobilier d''entreprise en France, vous propose un accompagnement de qualité pour l''acquisition, la vente ou la location d''un bien immobilier.Vo ...
En savoir plus



3 210 m² divisible dès 1 192 m²
HT HC
Location bureau - 3210 m²
Paris 10 (75010)
Dernière mise à jour : Il y a 1 mois
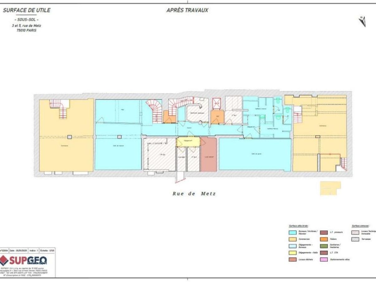
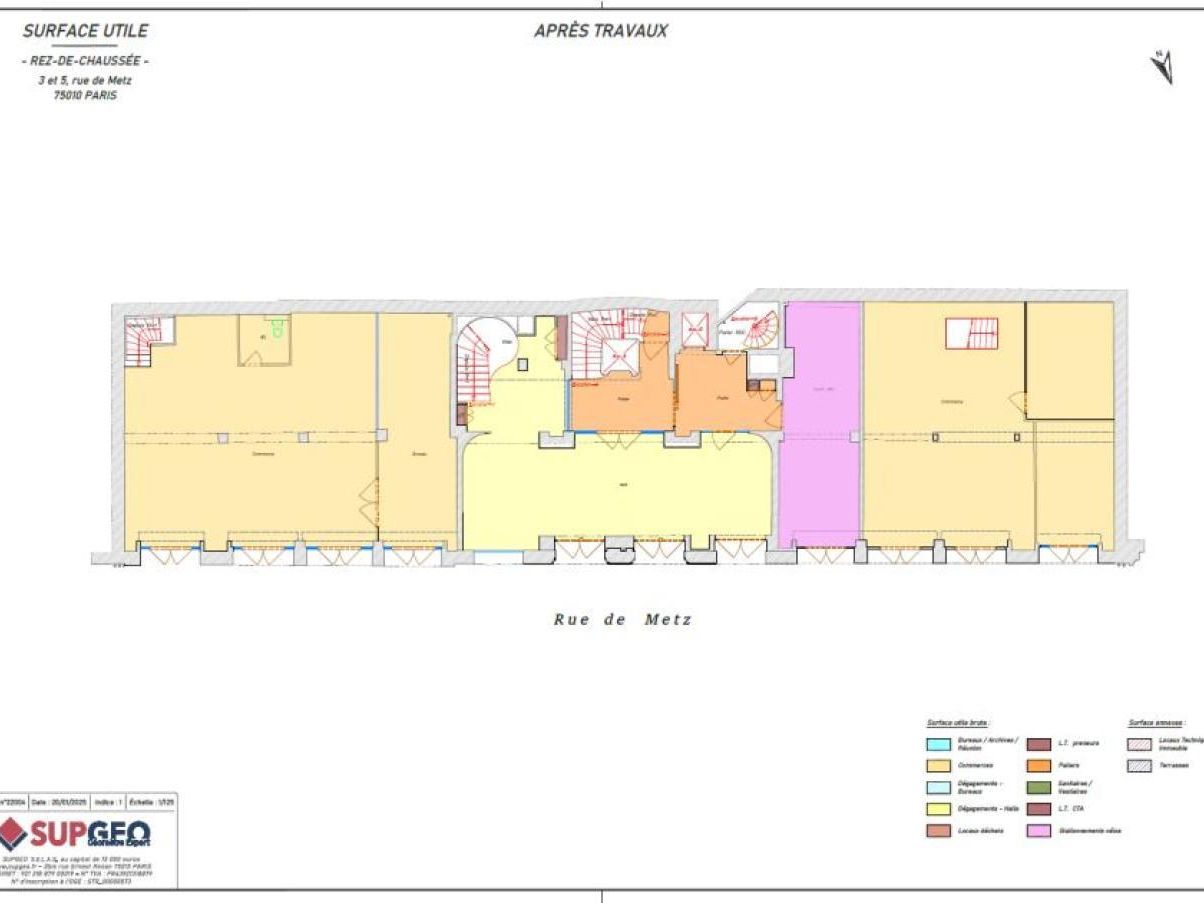
Votre nouveau siège au coeur du 10ème Au coeur du 10ème Arrondissement, nous vous proposons à la location un magnifique immeuble haussmannien restructuré, rationnalisé et avec beaucoup de cachet. Rooftop en dernier étage et socle serviciel possible en R-1. Magnifique immeuble art-déco, d'une superficie totale de 3 210 m² et avec un linéaire de facade de 40 mètres. Labels : R2S 1 Etoile / Ready to Osmoz /Conforme décret tertiaire
Magnifique immeuble art-déco, d'une superficie totale de 3 210 m² et avec un linéaire de facade de 40 mètres.
290 m² d'espaces extérieurs dont :
Un rooftop de 108 m² avec vue à 360 sur Paris et vue Sacré-Coeur
Une terrasse filante de 75 m² au R+9
Nombreux services :
- 1 espace accueil
- 1 parking vélo de 30 places
- 1 salle fitness (mesures conservatoires)
- 1 salle multifonction avec foyer de 30 personnes
Surfaces lumineuses, efficaces et avec très peu de contraintes porteuses.
Deux locaux commerciaux d'environ 300m² disponibles.
Labels :
- HQE Excellent
- R2S 1 Etoile
- Ready to Osmoz
- Wiredscore SILVER
Honoraires: Nous consulter. à la signature du bail
| Fiche technique du bien | |
|---|---|
| Métro | M4 M8 & M9 "Strasbourg Saint Denis" 210 m |
| RER | E Gare Magenta 1200 m |
| Bus | Oui |
| Gare | Gare de l'Est 750 m |
| Accès Pers. Mobilité Réduite | Oui |
| Etat de l'immeuble | Rénové |
| Etat des locaux | Rénové |
| Climatisation | Oui |
| Ascenseur(s) | 3 |
| Hall d'accueil | Collectif |
| Fenêtres | Oui |
| Aménagement des bureaux | Espaces Ouverts |
| Sol bureaux | Parquet |
| Autre élément bureau | Salle de fitness |
| Autre élément bureau | 1 salle multifonction avec foyer de 30 personnes |
Voir plus
Afficher les consommations énergétiques
Surfaces divisibles : 9
| Surface | LoyerHT/HC/m²/an | Étage / Batiment | Infos complémentaires |
| 158 m² | N.C | R+9 | OLBUR2107353/1 |
| 391 m² | N.C | R+1 | OLBUR2107353/1 |
| 399 m² | N.C | R+2 | OLBUR2107353/1 |
| 401 m² | N.C | R+3 | OLBUR2107353/1 |
| 402 m² | N.C | R+4 | OLBUR2107353/1 |
| 403 m² | N.C | R+5 | OLBUR2107353/1 |
| 388 m² | N.C | R+6 | OLBUR2107353/1 |
| 373 m² | N.C | R+7 | OLBUR2107353/1 |
| 294 m² | N.C | R+8 | OLBUR2107353/1 |
Favoris
Exporter
Appeler
Contacter
Signaler cette annonce










