Créée en mai 2012, Wellstone est une société de conseil en immobilier d'entreprise qui accompagne ses clients propriétaires, investisseurs et utilisateurs dans leurs différents projets immobiliers ...
En savoir plus

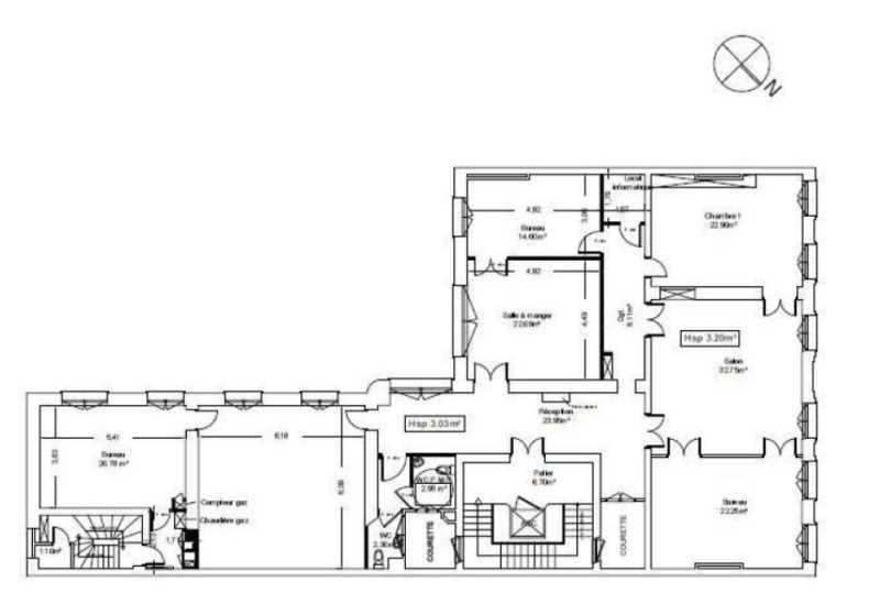
231 m²
HT HC
Location bureau - 231 m²
Paris 8 (75008)
Dernière mise à jour : Il y a 2 jours
Située à toute proximité de la gare Saint Lazare dans le coeur du QCA, Wellstone vous propose une surface de bureaux rénovée d'excellent standing.
Excellente desserte en transport en commun. La qualité des prestations proposées alliée au dynamisme du quartier viendront assurer le confort de leurs futurs occupants.
Impôt Foncier : 13,85 €/m²/an
Régime Fiscal : T.V.A.
Dépôt de garantie : 3 mois de loyer HT/HC
Honoraires : A la charge du preneur.
Taxe Bureau : 25,77 €/m²/an
Prestations :
Accessibilité:
Metro Liège (13)
Metro Saint-Lazare (3,12,13,14)
Les informations sur les risques auxquels ce bien est exposé sont disponibles sur le site Géorisques : www.georisques.gouv.fr
Excellente desserte en transport en commun. La qualité des prestations proposées alliée au dynamisme du quartier viendront assurer le confort de leurs futurs occupants.
| Étage | Type | Surfaces | Dispo | Loyer | Charges | Type de bailRév. annuelle |
|---|---|---|---|---|---|---|
| 2 | Bureaux | 231 | Après accord | 630 m²/an HT HC | 23,75 m²/an HT | 3-6-9 ansILAT |
Impôt Foncier : 13,85 €/m²/an
Régime Fiscal : T.V.A.
Dépôt de garantie : 3 mois de loyer HT/HC
Honoraires : A la charge du preneur.
Taxe Bureau : 25,77 €/m²/an
Prestations :
- Locaux rénovés
- Surface organisée en 7 bureaux et 1 cuisine
- Belle hauteur sous plafond
- Parquet, moulures et cheminées
Accessibilité:
Metro Liège (13)
Metro Saint-Lazare (3,12,13,14)
Les informations sur les risques auxquels ce bien est exposé sont disponibles sur le site Géorisques : www.georisques.gouv.fr
Voir plus
Afficher les consommations énergétiques
Localisation et transport aux alentours
- Liège234m (4min à pied)13
- Place de Clichy387m (6min à pied)213
- Rome416m (6min à pied)2
- Europe431m (6min à pied)3
- Paris Saint-Lazare474m (7min à pied)JL
Favoris
Exporter
Appeler
Contacter
Signaler cette annonce
