Conseil en immobilier d'entreprise, Cushman & Wakefield est un acteur incontournable au rayonnement international. Cushman & Wakefield offre des solutions dans toutes les étapes que comporte un p ...
En savoir plus

2 068 m² divisible dès 291 m²
HT HC
Location bureau - 2068 m²
Paris 8 (75008)
Dernière mise à jour : Il y a 4 jours
Bureaux plug & play
Cushman & Wakefield vous propose ce très bel immeuble Haussmannien de bon standing, idéalement situé et offrant des prestations de qualité.
L'immeuble bénéficie d'un ascenseur et d'un contrôle d'accès sécurisé via digicode et interphone.
Les plateaux fonctionnels sont conçus pour répondre à tous types d'aménagements, tout en offrant des locaux lumineux et une très belle hauteur sous plafond.
Il n'y a aucune contrainte porteuse, garantissant ainsi des espaces de travail efficaces et modulables.
L'immeuble est équipé d'une climatisation, assurant un confort optimal tout au long de l'année.
PRESTATIONS
. Plateaux fonctionnels répondant à tous les aménagements
. Locaux lumineux
. Très belle hauteur sous plafond
. aucune contrainte porteuse, plateaux
. efficaces, climatisation
Prenez possession de ces bureaux dès maintenant. A partir de 330 m² jusqu'à 1400 m².
Locaux livré meublés, câblés, prêts à l'emploi.
Impôt Foncier : 15,44 €//m²/an
Régime Fiscal : T.V.A.
Dépôt de garantie : 3 mois de loyer HT/HC
Paiement Loyer : Trimestriel
Honoraires : à la charge du preneur
Taxe Bureau : 16,57 €/m²/an
Information sur le Bail :
Bail dérogatoire de 24 mois Locaux livrés plug & play
Prestations :
Accessibilité:
Métro Miromesnil (lignes 9-13)
Bus Lignes 22-28-32-43-52-80-83-84-93
SNCF Gare Saint-Lazare à 10 minutes à pied
Les informations sur les risques auxquels ce bien est exposé sont disponibles sur le site Géorisques : www.georisques.gouv.fr
Cushman & Wakefield vous propose ce très bel immeuble Haussmannien de bon standing, idéalement situé et offrant des prestations de qualité.
L'immeuble bénéficie d'un ascenseur et d'un contrôle d'accès sécurisé via digicode et interphone.
Les plateaux fonctionnels sont conçus pour répondre à tous types d'aménagements, tout en offrant des locaux lumineux et une très belle hauteur sous plafond.
Il n'y a aucune contrainte porteuse, garantissant ainsi des espaces de travail efficaces et modulables.
L'immeuble est équipé d'une climatisation, assurant un confort optimal tout au long de l'année.
PRESTATIONS
. Plateaux fonctionnels répondant à tous les aménagements
. Locaux lumineux
. Très belle hauteur sous plafond
. aucune contrainte porteuse, plateaux
. efficaces, climatisation
Prenez possession de ces bureaux dès maintenant. A partir de 330 m² jusqu'à 1400 m².
Locaux livré meublés, câblés, prêts à l'emploi.
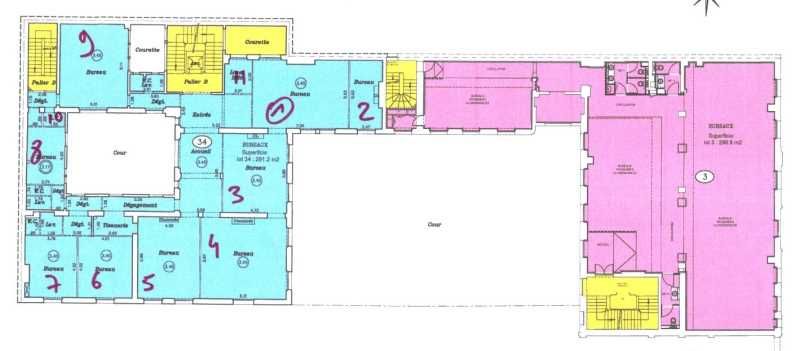
| Étage | Type | Surfaces | Dispo | Loyer | Charges | Type de bailRév. annuelle |
|---|---|---|---|---|---|---|
| RdC | Bureaux | 400 | 6-9 ansSur l'indice ILAT | |||
| 1 | Bureaux | 331 | 6-9 ansSur l'indice ILAT | |||
| 1 | Bureaux | 291,2 | 6-9 ansSur l'indice ILAT | |||
| 2 | Bureaux | 378 | 6-9 ansSur l'indice ILAT | |||
| 3 | Bureaux | 307 | 6-9 ansSur l'indice ILAT | |||
| 4 | Bureaux | 361 | 6-9 ansSur l'indice ILAT |
Impôt Foncier : 15,44 €//m²/an
Régime Fiscal : T.V.A.
Dépôt de garantie : 3 mois de loyer HT/HC
Paiement Loyer : Trimestriel
Honoraires : à la charge du preneur
Taxe Bureau : 16,57 €/m²/an
Information sur le Bail :
Bail dérogatoire de 24 mois Locaux livrés plug & play
Prestations :
- Très bel immeuble Haussmannien de bon standing
- Ascenseur
- Contrôle d'accès : digicode, interphone
- Plateaux fonctionnels répondant à tous les aménagements
- Locaux lumineux
- Très belle hauteur sous-plafond
- Lot côté Haussmann : aucune contrainte porteuse, plateaux
- efficaces, climatisation
- Lot sur cour : Parquet, moulures, cheminées
- Surface RDC : 400 m²
Accessibilité:
Métro Miromesnil (lignes 9-13)
Bus Lignes 22-28-32-43-52-80-83-84-93
SNCF Gare Saint-Lazare à 10 minutes à pied
Les informations sur les risques auxquels ce bien est exposé sont disponibles sur le site Géorisques : www.georisques.gouv.fr
Voir plus
Afficher les consommations énergétiques
Localisation et transport aux alentours
- Miromesnil289m (4min à pied)913
- Saint-Philippe du Roule420m (6min à pied)9
Favoris
Exporter
Appeler
Contacter
Signaler cette annonce
