Nous sommes Immprove, une grande équipe de plus de 200 experts en immobilier d’entreprise, implantés localement avec plus de 20 agences sur tout le territoire.Depuis 2009, notre proximité, notre ét ...
En savoir plus

247 m²
HT HC
MONCEY - Location bureau - 247 m²
Paris 9 (75009)
Dernière mise à jour : Il y a 4 jours
A visiter !
Immeuble MONCEY
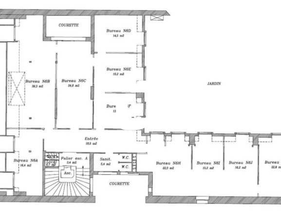
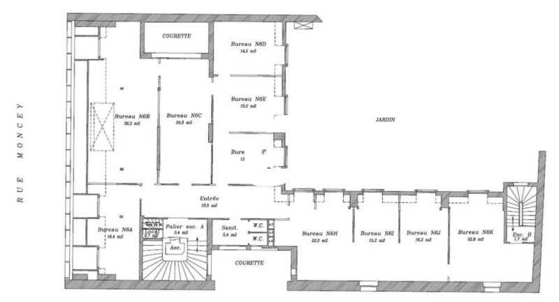
Dans le quartier Saint-Georges du 9ème arrondissement, Immprove vous propose une surface de bureaux d'environ 247 m² à la location, climatisée et rénovée au 1er février 2025, en étage élevé sans vis-à-vis et avec une vue dégagée comptant 7 bureaux, un espace ouvert et une cafétaria. Cloisonnement de qualité. Possibilité d'aménagement. Parking disponible dans l'immeuble en sus.
Impôt Foncier : 13 €/m²/an
Régime Fiscal : T.V.A. (20%)
Dépôt de garantie : 3 mois de loyer HT HC
Honoraires : 20% HT du loyer annuel HT HC à la charge du preneur
Taxe Bureau : 25,77 €/m²/an
Information sur le Bail :
Sous-location de longue durée (30 juin 2030)
Prestations :
Accessibilité:
Bus La Bruyère (BUS-74), Liège (BUS-95, BUS-21, BUS-N02), Moncey (BUS-68)
Metro Liège (13)
RER Haussmann Saint-Lazare (E)
Metro Saint-Lazare (3, 12, 13, 14)
Train Gare Saint-Lazare
Les informations sur les risques auxquels ce bien est exposé sont disponibles sur le site Géorisques : www.georisques.gouv.fr
Immeuble MONCEY
Dans le quartier Saint-Georges du 9ème arrondissement, Immprove vous propose une surface de bureaux d'environ 247 m² à la location, climatisée et rénovée au 1er février 2025, en étage élevé sans vis-à-vis et avec une vue dégagée comptant 7 bureaux, un espace ouvert et une cafétaria. Cloisonnement de qualité. Possibilité d'aménagement. Parking disponible dans l'immeuble en sus.
| Étage | Type | Surfaces | Dispo | Loyer | Charges | Type de bailRév. annuelle |
|---|---|---|---|---|---|---|
| 6 | Bureaux | 247 | Immédiate | 600 m²/an HT HC | 48 m²/an HT | Bail Commercialselon l'indice des loyers des activités tertiaires (ILAT) |
Impôt Foncier : 13 €/m²/an
Régime Fiscal : T.V.A. (20%)
Dépôt de garantie : 3 mois de loyer HT HC
Honoraires : 20% HT du loyer annuel HT HC à la charge du preneur
Taxe Bureau : 25,77 €/m²/an
Information sur le Bail :
Sous-location de longue durée (30 juin 2030)
Prestations :
- Immeuble de bon standing
- 2 places de parking accessible par l'ascenseur en sus
- Digicode
- Interphone
- Accès sécurisé par badge
- Climatisation réversible
- Chauffage collectif
- Fibre optique
- Locaux lumineux livrés rénovés (peinture, moquette)
- Un espace ouvert
- 7 bureaux
- Une belle et grande cafétaria centrale équipée
- Climatisation
- Cloisonnement de qualité
- Belle hauteur sous plafond
- Faux plafonds
- Moquette
- Câblage informatique et téléphonique
- 2 sanitaires
Accessibilité:
Bus La Bruyère (BUS-74), Liège (BUS-95, BUS-21, BUS-N02), Moncey (BUS-68)
Metro Liège (13)
RER Haussmann Saint-Lazare (E)
Metro Saint-Lazare (3, 12, 13, 14)
Train Gare Saint-Lazare
Les informations sur les risques auxquels ce bien est exposé sont disponibles sur le site Géorisques : www.georisques.gouv.fr
Voir plus
Afficher les consommations énergétiques
Localisation et transport aux alentours
Favoris
Exporter
Appeler
Contacter
Signaler cette annonce










