Créée en mai 2012, Wellstone est une société de conseil en immobilier d'entreprise qui accompagne ses clients propriétaires, investisseurs et utilisateurs dans leurs différents projets immobiliers ...
En savoir plus

247 m²
HT HC
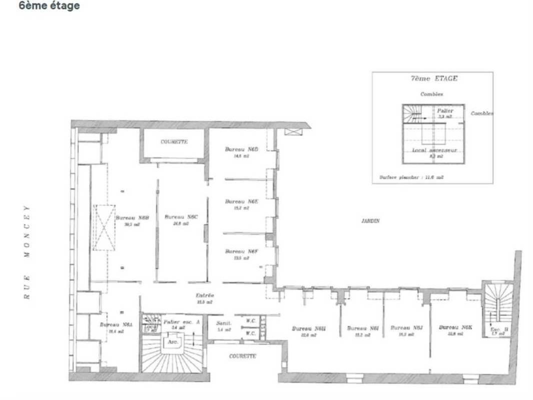
Location bureau - 247 m²
Paris 9 (75009)
Dernière mise à jour : Il y a 2 jours
Dans un immeuble de bon standing, nous vous proposons des bureaux à louer en plein coeur du 9ème arrondissement.
Impôt Foncier : 13 €/m²/an
Régime Fiscal : T.V.A.
Dépôt de garantie : 3 mois de loyer HT/HC
Honoraires : A la charge du preneur.
Taxe Bureau : 25,77 €/m²/an
Information sur le Bail :
12 mois de GAPD (Garantie à Première Demande) émanant d'une banque française de premier plan
Prestations :
Accessibilité:
Metro Liège (13)
Metro Saint-Lazare (3,12,13,14)
Les informations sur les risques auxquels ce bien est exposé sont disponibles sur le site Géorisques : www.georisques.gouv.fr
| Étage | Type | Surfaces | Dispo | Loyer | Charges | Type de bailRév. annuelle |
|---|---|---|---|---|---|---|
| 6 | Bureaux | 247 | Immédiate | 600 m²/an HT HC | 48 m²/an HT | 3-6-9 ansILAT |
| Parkings | Immédiate | 2000 place/an HT HC | 3-6-9 ansILAT |
Impôt Foncier : 13 €/m²/an
Régime Fiscal : T.V.A.
Dépôt de garantie : 3 mois de loyer HT/HC
Honoraires : A la charge du preneur.
Taxe Bureau : 25,77 €/m²/an
Information sur le Bail :
12 mois de GAPD (Garantie à Première Demande) émanant d'une banque française de premier plan
Prestations :
- Parties communes de bon standing
- Locaux livrés rénovés
- Surface organisée en 1 entrée/accueil, espaces ouverts/bureaux cloisonnés et 1 coin kitchenette
- Climatisation double flux
Accessibilité:
Metro Liège (13)
Metro Saint-Lazare (3,12,13,14)
Les informations sur les risques auxquels ce bien est exposé sont disponibles sur le site Géorisques : www.georisques.gouv.fr
Voir plus
Afficher les consommations énergétiques
Localisation et transport aux alentours
Favoris
Exporter
Appeler
Contacter
Signaler cette annonce










