Conseil en immobilier d'entreprise, Cushman & Wakefield est un acteur incontournable au rayonnement international. Cushman & Wakefield offre des solutions dans toutes les étapes que comporte un p ...
En savoir plus

148 m²
HT HC
Location bureau - 148 m²
Paris 9 (75009)
Dernière mise à jour : Il y a 3 jours
Cushman & Wakefield vous propose 148 m2 de bureaux à louer à proximité du quartier dynamique d'Opéra.
Les locaux se situent au 2 rue de Sèze dans le 9ème arrondissement de Paris, proche de l'Olympia et à toute proximité de la Madeleine
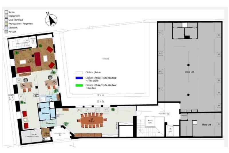
Dans un immeuble de standing Haussmannien, au 6ème étage, profitez de deux grands open space et un double sanitaire
La surface entièrement rénovée & climatisée permet l'épanouissement de vos collaborateurs. Situés autour d'une cour, profitez du calme en plein coeur de Paris.
Disponible Immédiatement
Bail Commercial 3/6/9
Contactez-nous vite pour visiter.
Impôt Foncier : 29,18 €//m²/an
Régime Fiscal : T.V.A.
Dépôt de garantie : 3 mois de loyer HT/HC
Paiement Loyer : Trimestriel
Honoraires : à la charge du preneur
Taxe Bureau : 20,14 €/m²/an
Information sur le Bail :
Honoraires de gestion technique, administrative (hors loyer), charges, contentieux 2024 : 5,60 euros/HT/m²/an Prime d'assurance 2024 : 1,79 euros/HT/m²/an
Prestations :
Accessibilité:
Métro Opéra (lignes 3-7-8)
RER Auber (RER A)
SNCF Gare Saint-Lazare
Bus Lignes 20-21-22-27-29-42-52-68-95
velib 13 rue Daunou
Les informations sur les risques auxquels ce bien est exposé sont disponibles sur le site Géorisques : www.georisques.gouv.fr
Les locaux se situent au 2 rue de Sèze dans le 9ème arrondissement de Paris, proche de l'Olympia et à toute proximité de la Madeleine
Dans un immeuble de standing Haussmannien, au 6ème étage, profitez de deux grands open space et un double sanitaire
La surface entièrement rénovée & climatisée permet l'épanouissement de vos collaborateurs. Situés autour d'une cour, profitez du calme en plein coeur de Paris.
Disponible Immédiatement
Bail Commercial 3/6/9
Contactez-nous vite pour visiter.
| Étage | Type | Surfaces | Dispo | Loyer | Charges | Type de bailRév. annuelle |
|---|---|---|---|---|---|---|
| 6 | Bureaux | 148 | 620 HT/HC/m²/an | 29,98 HT/m²/an | 3-6-9 ansSur l'indice ILAT | |
| Sous-Sol | Arch./Reser. | 36 | 250 HT/HC/m²/an | 3-6-9 ansSur l'indice ILAT | ||
| Parkings | 2500 HT/HC/U/an | 3-6-9 ansSur l'indice ILAT |
Impôt Foncier : 29,18 €//m²/an
Régime Fiscal : T.V.A.
Dépôt de garantie : 3 mois de loyer HT/HC
Paiement Loyer : Trimestriel
Honoraires : à la charge du preneur
Taxe Bureau : 20,14 €/m²/an
Information sur le Bail :
Honoraires de gestion technique, administrative (hors loyer), charges, contentieux 2024 : 5,60 euros/HT/m²/an Prime d'assurance 2024 : 1,79 euros/HT/m²/an
Prestations :
- Immeuble Haussmannien donnant sur l'Opéra Garnier
- Les parties communes de très bon standing ont été rénovées ainsi que les paliers et les ascenseurs
- Contrôle d'accès intérieur
- Visiophone
- 2 ascenseurs
- Fibre optique
- Bureaux lourdement rénovés en espace ouvert
- Surfaces lumineuses et fonctionnelles présentant beaucoup de flexibilité
- Climatisation réversible
- Belle hauteur sous plafond
Accessibilité:
Métro Opéra (lignes 3-7-8)
RER Auber (RER A)
SNCF Gare Saint-Lazare
Bus Lignes 20-21-22-27-29-42-52-68-95
velib 13 rue Daunou
Les informations sur les risques auxquels ce bien est exposé sont disponibles sur le site Géorisques : www.georisques.gouv.fr
Voir plus
Afficher les consommations énergétiques
Localisation et transport aux alentours
- Auber174m (3min à pied)A
- Opéra257m (4min à pied)378
- Havre Caumartin315m (5min à pied)39
- Chaussée d'Antin La Fayette401m (6min à pied)79
- Haussmann - Saint-Lazare463m (7min à pied)E
- Madeleine512m (8min à pied)81214
Favoris
Exporter
Appeler
Contacter
Signaler cette annonce
