Size Real Estate est une société de conseil en immobilier d’entreprise. Nous vous accompagnons dans tous vos projets immobiliers à Paris ou en première couronne. De la recherche de bureaux à la loc ...
En savoir plus

2 121 m² divisible dès 306 m²
HT HC
Location bureau - 2121 m²
Paris 9 (75009)
Publiée : Il y a 4 mois
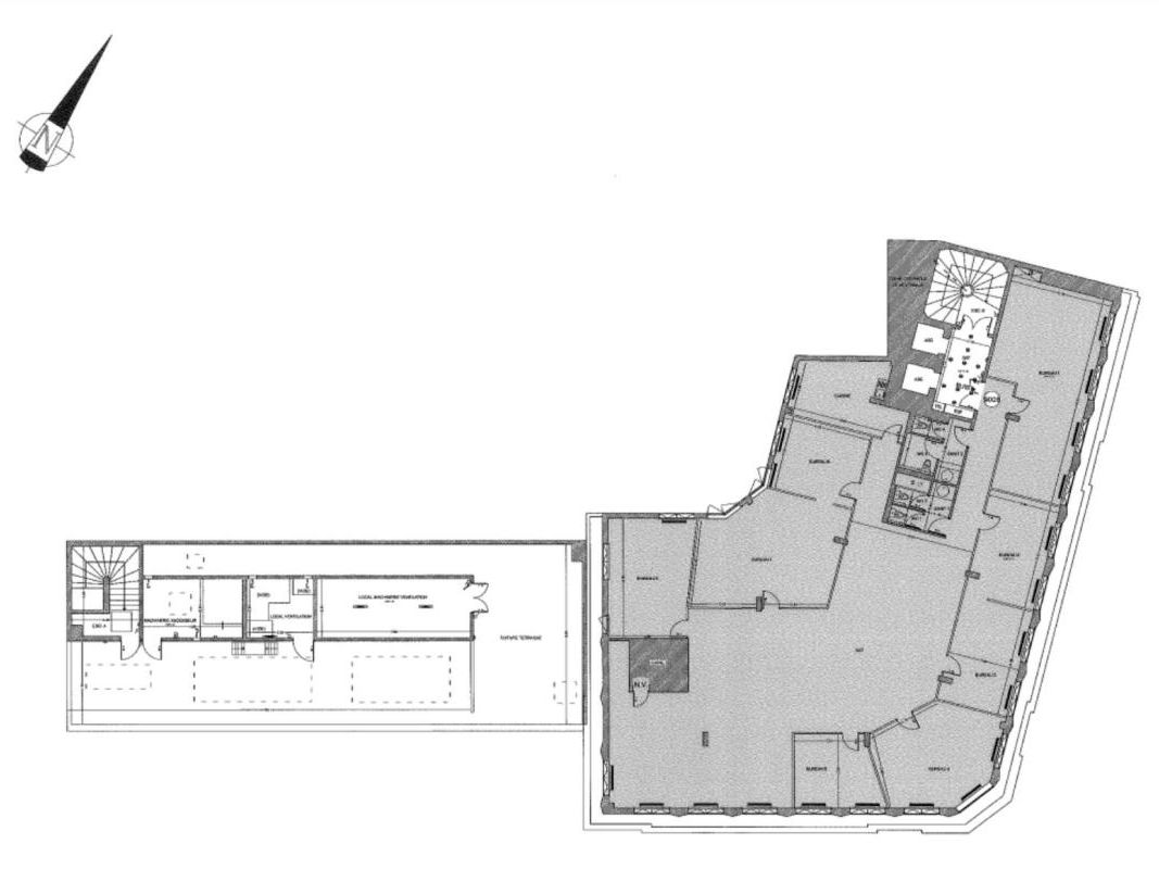
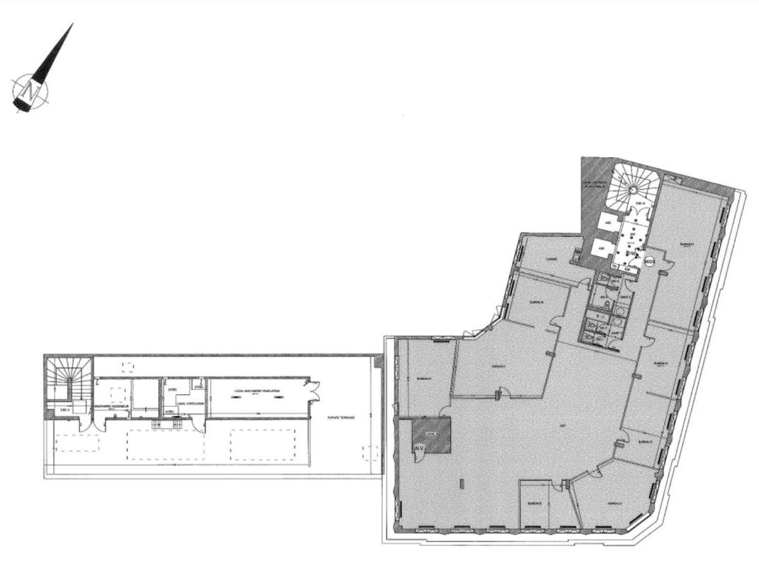
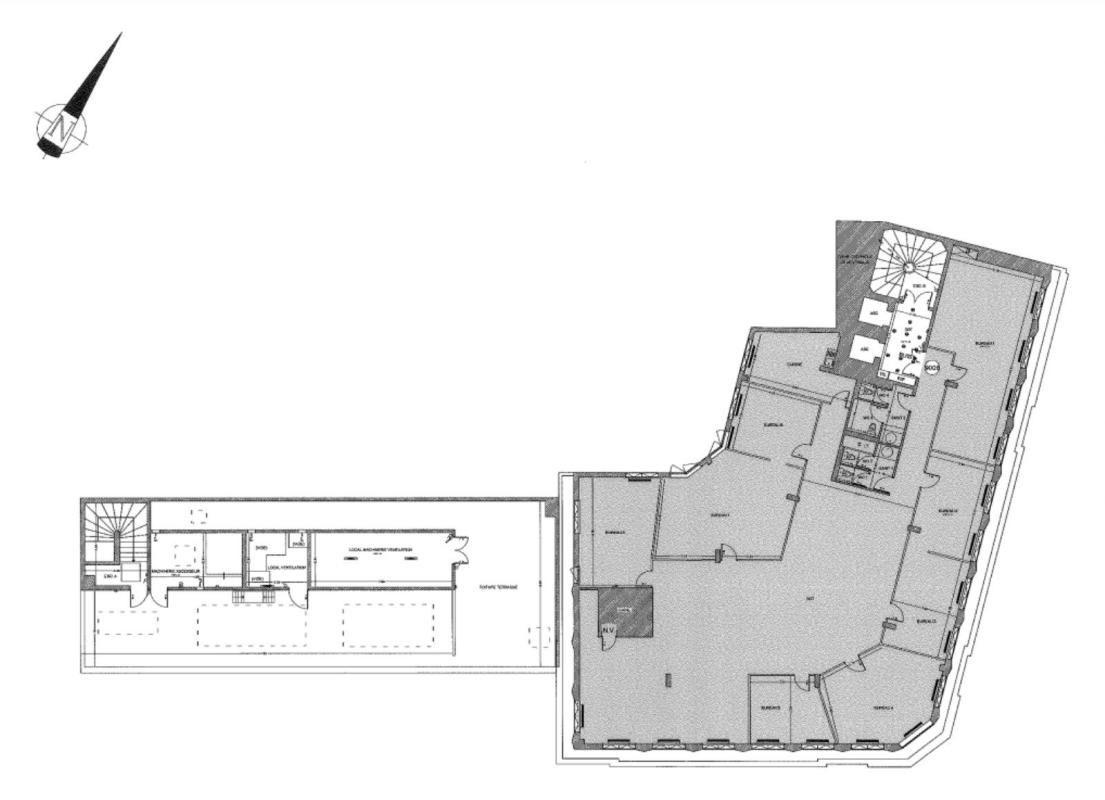
Bureaux à louer de 2 121,20m2
Au sein d'un immeuble tertiaire avec hôtesse d'accueil, SIZE Real Estate vous propose des surfaces de bureaux en très bon état, fonctionnelles, lumineuses et traversantes. Les lots ont été rénovés en 2021 et bénéficient d'un plan optimal, de beaux volumes et d'un aménagement flexible. Nombreux espaces extérieurs, terrasses, balcons.
Terrasse d'environ 100m² au R+6, balcon filant d'environ 28m² au R+4 et terrasse d'environ 90m² au R+3.
Des douches sont présentes dans le lot du R+5.
Magnifique vue Tour Eiffel et sur Paris depuis le R+6.
Disponible immédiatement.
Contact : Benjamin Bonfils au 06.68.38.11.22
Construction : Immeuble tertiaire de très bon standing
Double adresse
État de l'immeuble : Bon état
Parking intérieur : 66
Date (dernière mise à jour) : 2025-12-23
Disponibilité : Immédiate
Bail : Commercial 3 6 9
Honoraires / Location: 15 % HT du loyer annuel HT HC À la charge du preneur
Commentaires: Travaux récupérables : 25,72EUR/m²/an
Prévisionnel annuel pour primes d'assurance : 1,19 EUR/m² HT
Prestations :
- Immeuble tertiaire de très bon standing
- Double adresse
-
- Parties communes rénovées de qualité
- Accès PMR
- Hôtesse d'accueil et accès sécurisé
- Double batterie d'ascenseur
- Nombreuses places de parking disponibles et archives en sous-sol
-
- État des locaux : Très bon état
- Surfaces lumineuses
- Bureaux cloisonnés / Espaces ouverts
- Salles de réunions
- Cloisonnement amovible
- Peu de contraintes porteuses
- Plateaux traversants et lumineux
- Plafond brut style industriel
- Auditorium
- Climatisation réversible
- Sanitaires privatifs
- Terrasse privative au R+3 et R+6
- Balcon au R+4
- Observations: Capacitaire R+3 au R+6 : 220 personnes
Tableau de Surfaces :
Conditions juridiques et financères :
Charges : 16517.784
Accessibilité :
Métro : Place de Clichy (2, 13)
- RER : Porte de Clichy (C)
- SNCF : Saint-Lazare
- Bus : 30, 54, 68, 74, 80, 81, 95
Au sein d'un immeuble tertiaire avec hôtesse d'accueil, SIZE Real Estate vous propose des surfaces de bureaux en très bon état, fonctionnelles, lumineuses et traversantes. Les lots ont été rénovés en 2021 et bénéficient d'un plan optimal, de beaux volumes et d'un aménagement flexible. Nombreux espaces extérieurs, terrasses, balcons.
Terrasse d'environ 100m² au R+6, balcon filant d'environ 28m² au R+4 et terrasse d'environ 90m² au R+3.
Des douches sont présentes dans le lot du R+5.
Magnifique vue Tour Eiffel et sur Paris depuis le R+6.
Disponible immédiatement.
Contact : Benjamin Bonfils au 06.68.38.11.22
Construction : Immeuble tertiaire de très bon standing
Double adresse
État de l'immeuble : Bon état
Parking intérieur : 66
Date (dernière mise à jour) : 2025-12-23
Disponibilité : Immédiate
Bail : Commercial 3 6 9
Honoraires / Location: 15 % HT du loyer annuel HT HC À la charge du preneur
Commentaires: Travaux récupérables : 25,72EUR/m²/an
Prévisionnel annuel pour primes d'assurance : 1,19 EUR/m² HT
Prestations :
- Immeuble tertiaire de très bon standing
- Double adresse
-
- Parties communes rénovées de qualité
- Accès PMR
- Hôtesse d'accueil et accès sécurisé
- Double batterie d'ascenseur
- Nombreuses places de parking disponibles et archives en sous-sol
-
- État des locaux : Très bon état
- Surfaces lumineuses
- Bureaux cloisonnés / Espaces ouverts
- Salles de réunions
- Cloisonnement amovible
- Peu de contraintes porteuses
- Plateaux traversants et lumineux
- Plafond brut style industriel
- Auditorium
- Climatisation réversible
- Sanitaires privatifs
- Terrasse privative au R+3 et R+6
- Balcon au R+4
- Observations: Capacitaire R+3 au R+6 : 220 personnes
Tableau de Surfaces :
| Etage | Type de bien | Surface | Dispo | |
| SS | Archive | 31 m² | Immédiate | |
| 4 | Bureaux | 679 m² | Immédiate | |
| 6 | Bureaux | 307 m² | Immédiate | |
| 3 | Bureaux | 713 m² | Immédiate | |
| 5 | Bureaux | 423 m² | Immédiate |
Conditions juridiques et financères :
Charges : 16517.784
Accessibilité :
Métro : Place de Clichy (2, 13)
- RER : Porte de Clichy (C)
- SNCF : Saint-Lazare
- Bus : 30, 54, 68, 74, 80, 81, 95
66 parking(s) extérieur
Voir plus
Afficher les consommations énergétiques
Localisation et transport aux alentours
Favoris
Exporter
Appeler
Contacter
Signaler cette annonce










