Créée en mai 2012, Wellstone est une société de conseil en immobilier d'entreprise qui accompagne ses clients propriétaires, investisseurs et utilisateurs dans leurs différents projets immobiliers ...
En savoir plus

165 m²
HT HC
Location bureau - 165 m²
Paris 9 (75009)
Dernière mise à jour : Il y a 2 jours
Bureaux à louer - Paris 9
En plein coeur des Grands Boulevards, Wellstone vous propose à la location une surface de bureaux en bon état. Cet espace conviendra parfaitement à toute activité liée au web, au digital, à la communication et au marketing, à visiter sans tarder!
Impôt Foncier : 14,37 €/m²/an
Régime Fiscal : T.V.A.
Dépôt de garantie : 3 mois de loyer HT/HC
Honoraires : A la charge du preneur.
Taxe Bureau : 20,43 €/m²/an
Prestations :
Accessibilité:
Metro Grands Boulevards (8, 9)
Metro Bonne Nouvelle (8, 9)
Metro Bourse (3)
Les informations sur les risques auxquels ce bien est exposé sont disponibles sur le site Géorisques : www.georisques.gouv.fr
En plein coeur des Grands Boulevards, Wellstone vous propose à la location une surface de bureaux en bon état. Cet espace conviendra parfaitement à toute activité liée au web, au digital, à la communication et au marketing, à visiter sans tarder!
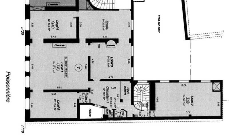
| Étage | Type | Surfaces | Dispo | Loyer | Charges | Type de bailRév. annuelle |
|---|---|---|---|---|---|---|
| 1 | Bureaux | 165,2 | Immédiate | 450 m²/an HT HC | 25,42 m²/an HT | 3-6-9 ansILAT |
Impôt Foncier : 14,37 €/m²/an
Régime Fiscal : T.V.A.
Dépôt de garantie : 3 mois de loyer HT/HC
Honoraires : A la charge du preneur.
Taxe Bureau : 20,43 €/m²/an
Prestations :
- Parties communes de bon standing
- Locaux en bon état
- Surface organisée en :
- 1 accueil
- 5 bureaux
- 1 cuisine
- Parquet, moulures et cheminées
Accessibilité:
Metro Grands Boulevards (8, 9)
Metro Bonne Nouvelle (8, 9)
Metro Bourse (3)
Les informations sur les risques auxquels ce bien est exposé sont disponibles sur le site Géorisques : www.georisques.gouv.fr
Voir plus
Afficher les consommations énergétiques
Localisation et transport aux alentours
Favoris
Exporter
Appeler
Contacter
Signaler cette annonce
